EasyManua.ls Logo

HELLER SHF 18 E - Page 3

HELLER SHF 18 E
Print Icon
To Next Page IconTo Next Page
To Next Page IconTo Next Page
To Previous Page IconTo Previous Page
To Previous Page IconTo Previous Page
Loading...
5
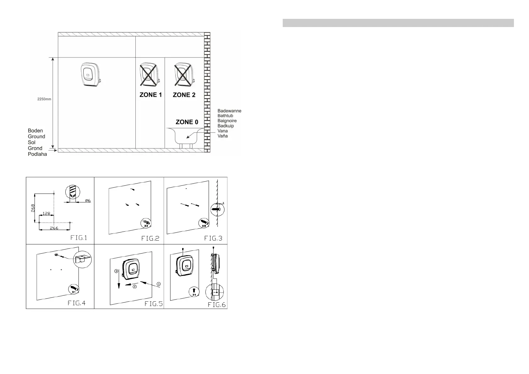
Abb. 3
Abb. 4
6
D
Sehr geehrter Kunde,
bitte lesen Sie folgende Hinweise vor Inbetriebnahme aufmerksam durch, sie geben wichtige
Informationen für Ihre Sicherheit und den Gebrauch des Gerätes.
Sicherheitsvorschriften
Das Gerät darf nur, wie in der Bedienungsanleitung beschrieben,
verwendet werden! Jeder andere Gebrauch ist unzulässig! Bei
Schäden durch falsche Bedienung oder Nichtbeachten der
Sicherheitsvorschriften erlischt jegliche Haftung und Garantie!
Achten Sie darauf, dass das Gerät, Netzkabel oder Netzstecker keine
Beschädigung aufweist. Benutzen Sie das Heizgerät niemals mit einem
beschädigten Netzkabel oder Netzstecker. Schützen Sie das Netzkabel
unbedingt vor scharfen Kanten sowie vor jeder Hitzeeinwirkung und legen
Sie es niemals über oder um das Heizgerät.
Für Frostschäden, die durch eine für die Raumgröße zu geringe Heiz-
leistung, schlechte Wärmeisolierung des Raumes, falsche Bedienung oder
höhere Gewalt (z.B. Stromausfall) verursacht werden, kann keine Haftung
übernommen werden.
Zur Frostfreihaltung eines Raumes benutzen Sie bitte ein spezielles
Frostschutzgerät!
Das Gerät darf nur mit der bereits montierten Netzanschlussleitung und
dem Netzstecker an einer einphasigen Steckdose mit der auf dem
Typenschild angegebenen Netzspannung angeschlossen werden.
Achtung: Brennbare Materialien oder Gegenstände wie Vorhänge,
Gardinen, Möbel Kissen, Papier, Kleidung, Regale etc. oder Wände aus
brennbaren Materialien und Baulichkeiten usw. mindestens 100 cm vom
Heizgerät entfernt halten. Brandgefahr!
Das Gerät darf nicht unmittelbar unterhalb einer Wandsteckdose
angebracht werden.
Warnung: Das Gerät nicht abdecken, da sonst Überhitzungs- und
Brandgefahr besteht.
Keine Kleidungsstücke, Handtücher oder ähnliches zum Trocknen über
das Gerät legen. Überhitzungs- und Brandgefahr!
Wenn das Gerät nicht gebraucht wird, stets den Netzstecker ziehen.

Related product manuals