EasyManua.ls Logo

HERON 2.2 - Choosing a Position for the Con;set

HERON 2.2
24 pages
Print Icon
To Next Page IconTo Next Page
To Next Page IconTo Next Page
To Previous Page IconTo Previous Page
To Previous Page IconTo Previous Page
Loading...
3
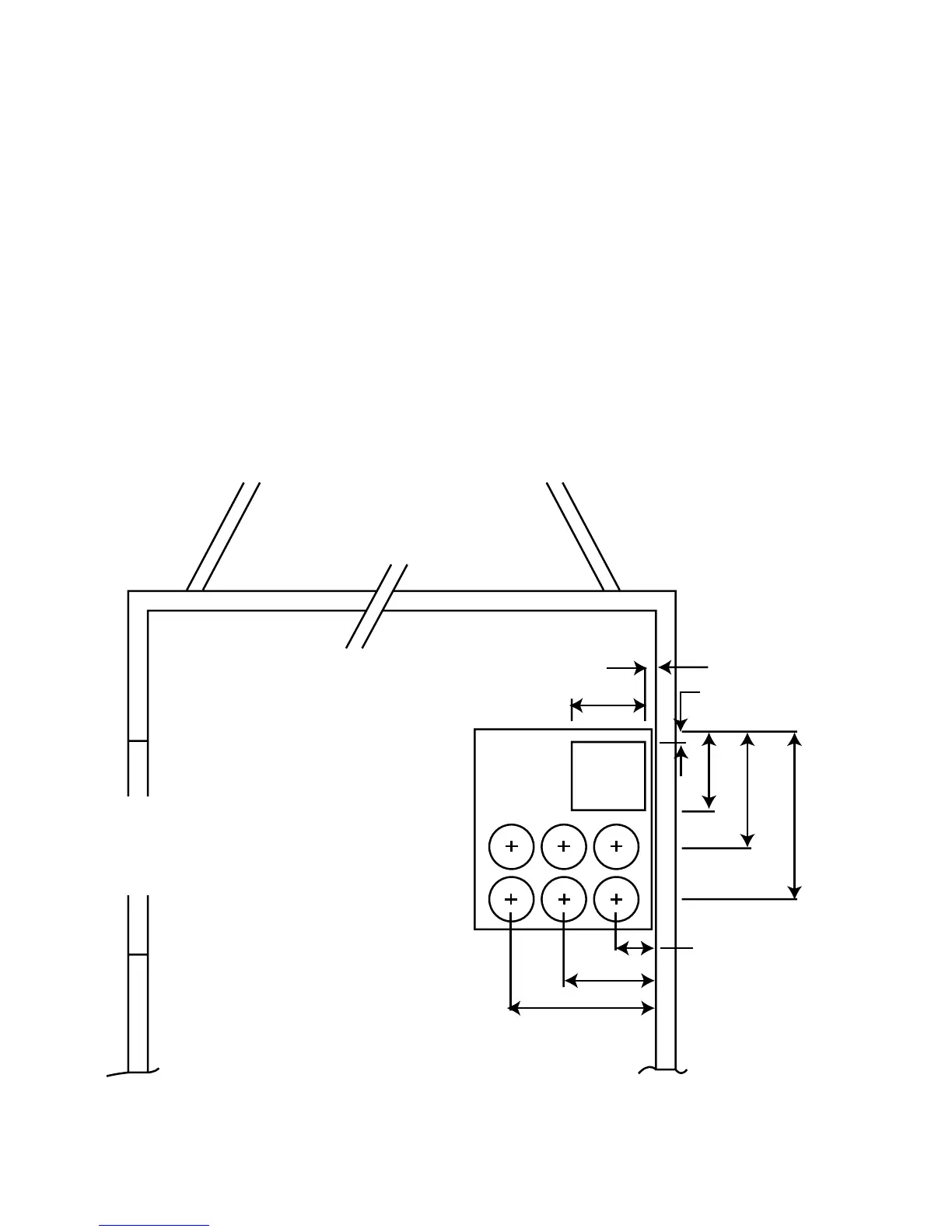
Choosing a position for the con/set
Generally, avoid installation on the left hand side (annex side), as the condenser
set will discharge hot air into this space.
It is usual to install the con/set on the right hand side, either under a bunk, settee,
or at the bottom of a floor cupboard.
NOTE: Ensure that wherever the con/set is installed, reasonable access to the
top of the unit is always available, for service, and any shelving etc. above, must
be easily removed. Also, the two line valves on the back of the unit must be easily
accessed.
The maximum length of pipework between the Con/set and the A/H is 5 metres.
Installations exceeding this may require extra refrigerant to be added to the
system.
Figure 3
372
237
107
390
265
180
50
10
178
Comp.
well
Normally install condenser
set opposite to annexe