EasyManua.ls Logo

Himoinsa STANDARD - Page 25

Himoinsa STANDARD
48 pages
Print Icon
To Next Page IconTo Next Page
To Next Page IconTo Next Page
To Previous Page IconTo Previous Page
To Previous Page IconTo Previous Page
Loading...
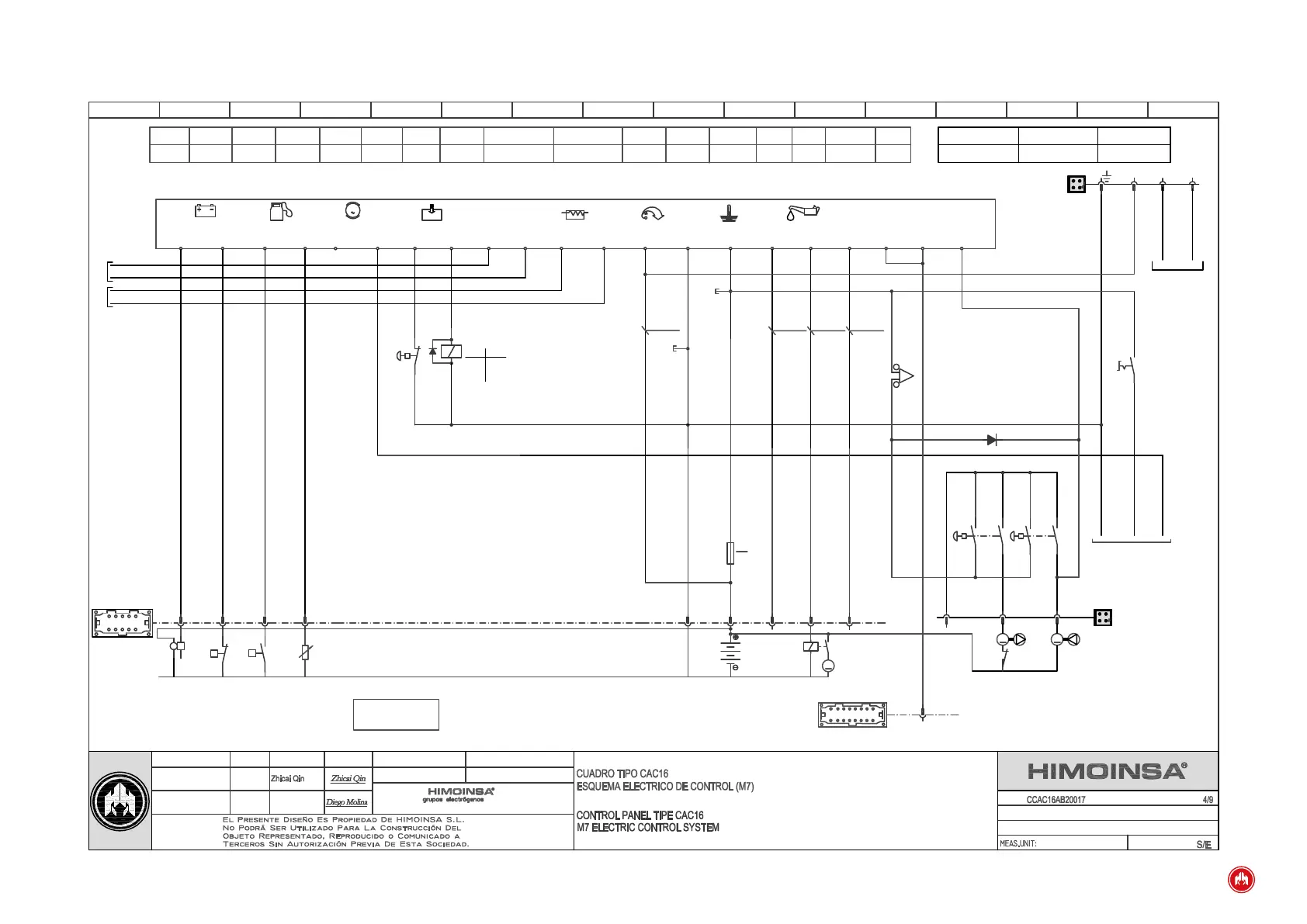
WIRING DIAGRAM | PAGE 25
M7
19
F1
4A
5 1 2 4 3
D+
ATA
G
START
RC
BPA
RC
AEMA
SVE
T
G
+B
D+
RT
W
BPA
P
+B
M
D+
ATA
BT ARR
230V
SINGLE PHASE
6 7 8
D+ BPA ATA NC AE PEM CON VG1 + BAT PC ARR PR MC
1
01
001
01
002
002
5
6 7 16 19
46
033
1 4 3
UP CONTROL DOWN CONTROL
MANDO SUBIDA MANDO BAJADA
20
01
2
J1 CONNECTOR
J3 CONNECTOR
1 3
2
M M
001
1
SQ
09
1
01
091
(4.14)
033
46
020
3
K3
18
1
K3
NO NC
(4.2)
6 7
21
8
9 10
5
4
3
www.himoinsa.com
1 2 3 54 76 8 9 10 1211 1413 15 16
Telf. 968 191 128
APPROVED:
OLD CODE:
NEW CODE:
DESIGN:
REVISED/
NAME:
DATE:
SIGNATURE
DESCRIPATION:
Nº P.:
REVISION:
SCALE:
CODE:
CTRA.MURCIA-SAN JAVIER KM 23.600 C.P. 30730 - MURCIA - ESPAÑA
05/12/16
05/12/16
mm
00
Diego Molina
CCAC16AB20017-R0
202
4.0 mm
2
2.5 mm
2
11
10
4.0 mm
2
NC
PD
- +
8 - 36 vdc
4.0 mm
2
2
2
20
H01
+
-
P1
P2
12
(5.2)
(5.2)
20
1
09
1
S1
(5.12)
20
020
SOLOR SWTICH
SOLOR SWTICH
(4.10)
1
N1
1
1 3
2
21
2
3
L
J5 CONNECTOR
*
*S1 ----OPTIONAL UNDER REQUEST
017
01 01
MNA
002
11
J2 CONNECTOR
10 119
3
1
2
12
1513 14 16
7 8654
20
017
017
20
017
01 01
ENT1
12
002
IG1
30
IGN
0
(4.11)
30
0
VGN
TEMPERATURA
AGUA
ALTA
BATERIA
CARGA
ACEITE
BAJA PRESION
COMBUSTIBLE
EXTERNO
ARRANQUE
EMERGEN
PARADA
CONTACTOR
ACTIVACION
CURRENT
ENTRADA
BATERIA
NEGATIVO
BATERIA
POSITIVO
PARADA
MANDO
ACUSTICA
ALARMA
GENERADOR
ENTRADA
TEMPERATURE
WATER
HIGH
CHARGER
BATTERY
PRESSURE
LOW OIL
GAUGE
FUEL LEVEL
EXTERNAL
START
STOP
EMERGEN
ACTIVATION
CONTACTOR
INPUT
CURRENT
NEGATIVE
BATTERY
POSITIVE
BATTERY
CONTROL
STOP
ALARM
ACUSTIC
INPUT
GENERATOR
INYECCION
INJECTION
PUMP
BOMBA
CALENTAMIENTO
PRE
HEATING
PRE
CALENTAMIENTO
PRE
HEATING
PRE
ENTRADA NIVEL
ENTRADA
POSITIVO
BATERIA
POSITIVE
BATTERY
INPUT
50HZ
*S1 ----OPCIÓN BAJO PEDIDO