EasyManua.ls Logo

Hitachi S1-00073HFE - Page 211

Hitachi S1-00073HFE
235 pages
To Next Page IconTo Next Page
To Next Page IconTo Next Page
To Previous Page IconTo Previous Page
To Previous Page IconTo Previous Page
Loading...
S1 series standard inverter
-206-
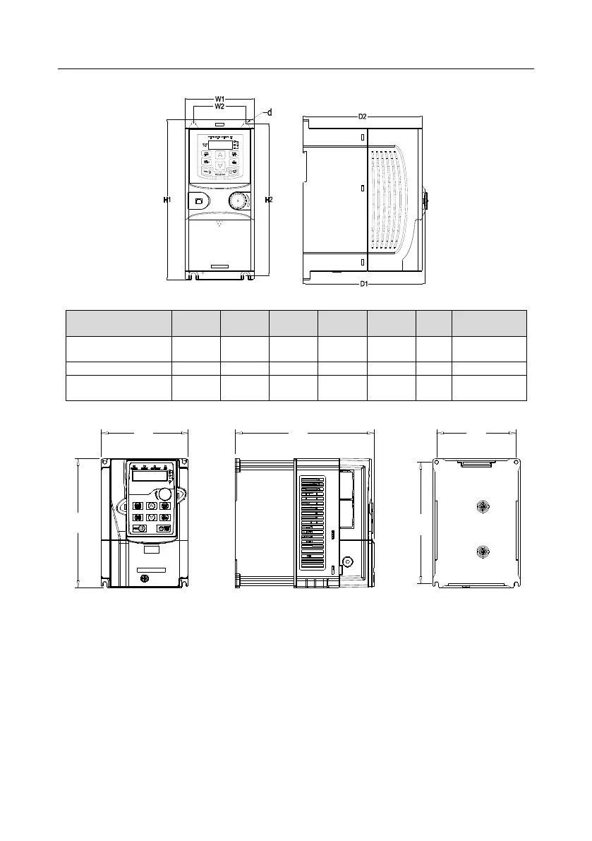
11.4.2 Wall-mounting dimensions
Fig 11.5 Wall-mounting diagram of inverters 230V/400 V, up to 2.2 kW
Model
W1
W2
H1
H2
D1
D2
Installation
hole diameter
0.4kW -0.75kW,
230V
80.0
60.0
160.0
150.0
123.5
120.3
5
1.5kW -2.2kW, 230V
80.0
60.0
185.0
175.0
140.5
137.3
5
0.75kW -2.2kW,
400V
80.0
60.0
185.0
175.0
140.5
137.3
5
W2D1
W1
H1
H2
Fig 11.6 Wall-mounting diagram of inverters of 400 V, 4 to 37 kW

Table of Contents

Related product manuals