EasyManua.ls Logo

Hitecsa ACHA 201 - Model 351; Models 351 - 501

Hitecsa ACHA 201
38 pages
Print Icon
To Next Page IconTo Next Page
To Next Page IconTo Next Page
To Previous Page IconTo Previous Page
To Previous Page IconTo Previous Page
Loading...
13
IOM ACHA-ACHBA_201a1201_208000_180901_EN
INSTALLATION
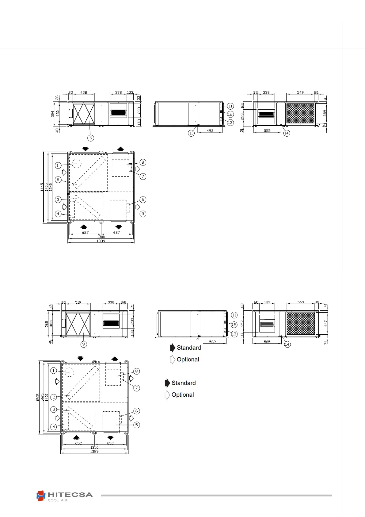
DIMENSIONS
Model 351
Models 351 501
LEGEND
1. Compressor
2. Outdoor heat exchanger
3. Indoor heat exchanger
4. Electrical panel
5. Indoor turbine
6. Motor indoor turbine
7. Motor outdoor turbine
8. Outdoor turbine
9. Air filter
10. Indoor drainage Ø 3/4”
11. External pressure intakes
12. Main switch
13. Electrical supply input
14. Outdoor drainage Ø 3/4”
LEGEND
1. Compressor
2. Outdoor heat exchanger
3. Indoor heat exchanger
4. Electrical panel
5. Indoor turbine
6. Motor indoor turbine
7. Motor outdoor turbine
8. Outdoor turbine
9. Air filter
10. Indoor drainage Ø 3/4”
11. External pressure intakes
12. Main switch
13. Electrical supply input
14. Outdoor drainage Ø 3/4”