EasyManua.ls Logo

Hitecsa ACHA 201 - Modelos 701 - 801; Model 1001

Hitecsa ACHA 201
38 pages
Print Icon
To Next Page IconTo Next Page
To Next Page IconTo Next Page
To Previous Page IconTo Previous Page
To Previous Page IconTo Previous Page
Loading...
14
IOM ACHA-ACHBA_201a1201_208000_180901_EN
ACHA / ACHBA
PACKAGED COMPACT
HORIZONTAL AIR - AIR
INSTALLATION
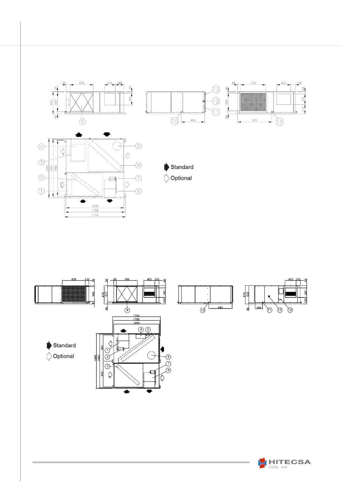
DIMENSIONS
Modelos 701 801
Model 1001
LEGEND
1. Electrical panel
2. Indoor heat exchanger
3. Motor outdoor turbine
4. Outdoor turbine
5. Air filter
6. Indoor turbine
7. Motor indoor turbine
8. Batería exterior
9. Compressor
10. Indoor drainage Ø 3/4”
11. Electrical supply input
12. Main switch
13. External pressure intake
14. Outdoor drainage Ø 3/4 “
LEGEND
1. Outdoor turbine
2. Motor outdoor turbine
3. Indoor heat exchanger
4. Electrical panel
5. External pressure intake
6. Compressor
7. Motor indoor turbine
8. Indoor turbine
9. Air filter
10. Indoor drainage Ø 3/4”
11. Outdoor drainage Ø 3/4 “
12. Electrical supply input
13. Main switch