EasyManua.ls Logo

Hobart FX - Printed Circuit Board; Hobart Main Board A1 Overview

Hobart FX
58 pages
Print Icon
To Next Page IconTo Next Page
To Next Page IconTo Next Page
To Previous Page IconTo Previous Page
To Previous Page IconTo Previous Page
Loading...
!,$?%=,("$#%&%&'(=,&",$
CEFGHIJKFJJHF@<% STR@T%U%SQR@Q%%R%%Q15+%KK
!"
#
!
"
#$"
%&'()"
%&'()"
#
$
*
+
"
"
!"#$
#
,
"
#
-
"
#."
#
/"
#0"
#1"
#2
"
#!*"
34,"
35!6!"
35$"
3
5
-
"
3
5.
"
35/"
3
5
!
"
#
!
!
+
"
""7!"
""
899:;<&"=<(;'>?"
35!*"
352"
341"
350"
5@
A
"!
5@
A
"$
5@
A
",
!"
!"
!"
#!1"
#!0"
!"
#!/"
#!."
!"
!"
#*"
B
.
C
"
D"
#
!
$
"
#
!
,
"
#!-"
!"
!"
E"
5"
!"
!"
!
"
!
"
F@"
GH%"
IE"
5!
"
E"
E"
5!"
"
J!"
J$"
!
"
$"
!
"
$
"
"
!
"
$
"
"
!"
$
"
"
!
"
$
"
"
!"
$
"
"
!"
$
"
!"
$
"
#"
$"
#"
$"
E"
5"
E"
5"
E"
5"
E"
5"
E"
5"
E"
5"
E"
5"
%&'()*+,-*),.()/,
!0,,!"#$%&'"(&(%)"*"%#*+
!1,,(%,%!-%#,&(%)"*"%#*+
!2,,!%$%!.%
!3,,!%$%!.%
!4,,$,!'"#%!
!5,,(%)"*"%#*+&/)&$'0,
!6,,"12%00%!&$3",*4
!7,,(//!&$3",*4
,%125&2!/6%,,87
6//$,%!
,%125&2!/6%,,86
,'#7
2!%$$8!%
,!'#$1",,%!,,85
6//$,%!
2!%$$8!%
,!'#$1",,%!,,84
,'#7
,/&/2%!',"/#&2'#%0
96
4'#(0%,,:7
"#,%!)'*%
231
;;<=#>,0?1341@AA
K('>"89(&LM"120.-.D!
6//$,%!&&B7
!"#$%&2812&&
>6
(!'"#&2812&&
>3
)"00&.'0.%&&C7
!"#$%&'"(&("$25&&
>5
(%,%!-%#,&("$25&&
>4
(!+"#-
(!+"#-&9
,'#7&4%',"#-
,,;6
3'$4&2812
,,>7
!"#$%&'()*#+,-#.#/012#233345#/3617682
!"#$%&'()*#+,-#9#/012#:;;;45#/3617681
!"#!)<&*(=>5#/36176827
!?@A?@A"#$%&'()*#+,-#.#/012#233345#/3617682
!?@A?@A"#!)<&*(=>5#/3617682B
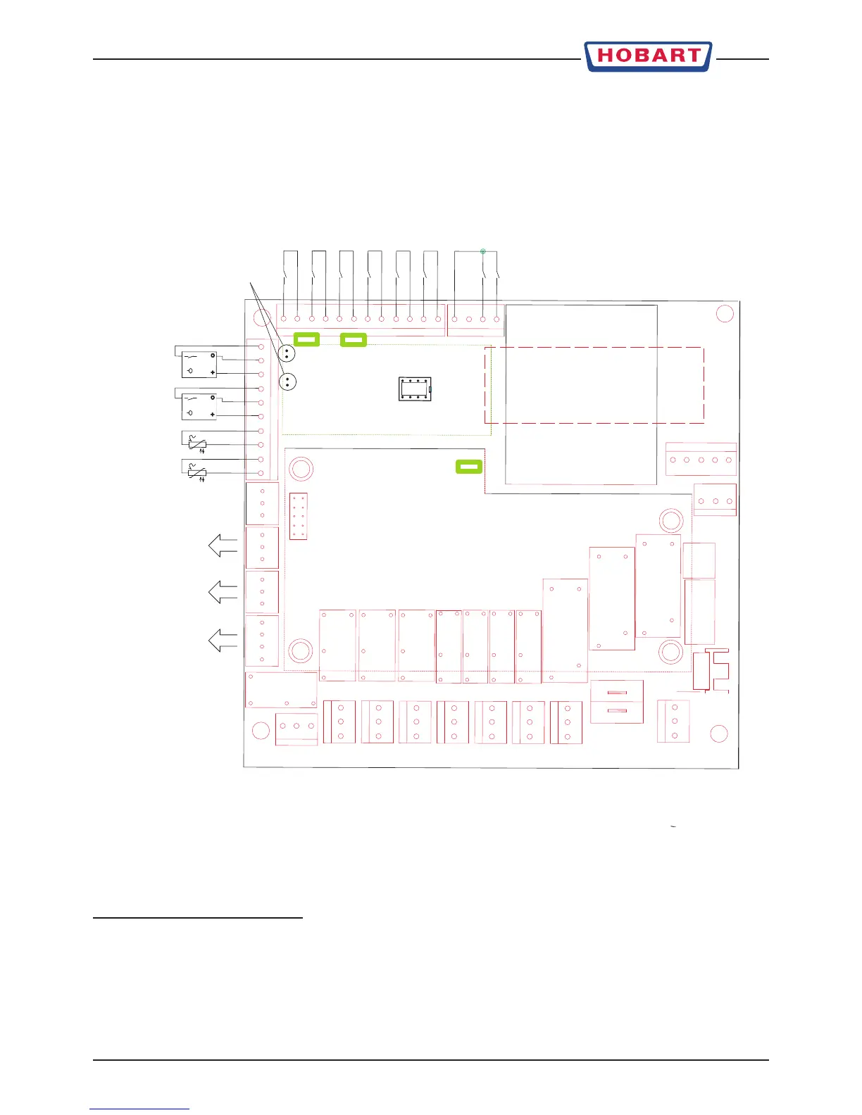
&*",F
<1$#(1223B%1%.1/-#1223%+8)#..+&%QD<%\STR@T^%'/%-"+%0)223%+8)#..+&%QD<%\SQR@Q^%#$%7)#2-F#,4%=$%/+.21(+*+,-B%%
',23%-"+%0)223%+8)#..+&%QD<%4<E6;6H9%#$%161#2172+4%
,,2$*+(4<E6;EH9...H6[(H9>[(H9;(QZVN(eP(LMTPMPT(VP^RMRNPSb4
!"+%(',-/'2%?'/g$%?#-"%'/%?#-"')-%.2)55+&%NNQ>;E%4<E6;EH94
"L(UWVNRSS(R(WPa(VLXNaRMP(MPSPRVPF
H4% @UVYLWWPYN(YLWNMLS(XZVP()9.
#"",&"%*&F(NOPMP(RMP(7>8(?LSN(RN(^SZ_(/7(1NRW`(OPRNUW_3(aOPW()9(UV(TUVYLWWPYNPT.
G4% Q2)5%#,%-"+%,+?%NNQ>;E%1,&%/+(',,+(-%SH4%%
=%("+(g%#$%(1//#+&%')-%1,&%-"+%$-'/+&%$'0-?1/+%?#22%7+%).&1-+&%1)-'*1-#(1223%\-"+%./'5/+$$%#$%#,&#(1-+&%1-%-"+%
&#$.213%73%XIB%XYB%444^4
K4% C+-%*1("#,+%-3.+%m%$++%.15+%GIB%*+,)%B89%\12$'%-'%7+%&',+%10-+/%/+.21(#,5%-"+%QD<^4
]4% [#$(',,+(-%(',-/'2%0)$+%SHB%/+*'6+%NNQ>;E%1,&%/+(',,+(-%SH4
2$%&",@(=%$=B%"(I*#$@
+#%&(I*#$@(#9

Related product manuals