EasyManua.ls Logo

Honeywell SDC 9-21 - Page 53

Honeywell SDC 9-21
92 pages
Print Icon
To Next Page IconTo Next Page
To Next Page IconTo Next Page
To Previous Page IconTo Previous Page
To Previous Page IconTo Previous Page
Loading...
SDC Εφαρμογές θέρμανσης / Heating applications
MU1H-0438GE51 R0313 53
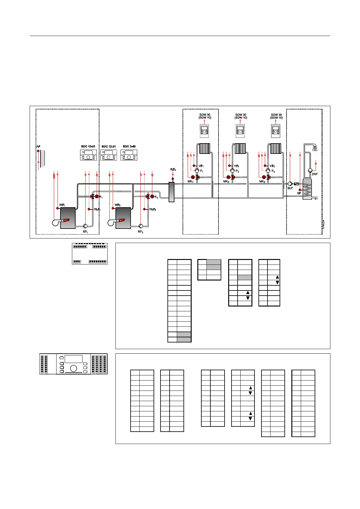
10.7 Υδραυλικά συστήματα 0305 (2 x SDC 12-31, 1 x SDC 3-40)
Hydraulics 0305 (2 x SDC 12-31, 1 x SDC 3-40)
10.7.1 Υδραυλικό σύστημα 0305.1 (SDC 12-31)
Hydraulics 0305.1 (SDC 12-31)
X 1 X 2 X 3 X 4
23 GND 19 1 T2 10
24 BUS A 20 2 T1 11
25 BUS B 21 N 3 ZKP 12 L1
26 AF 22 L1 4 13 R1
27 WF1 5 SLP 14 R1
28 SF 6 L 1 15 KP1
29 VF1 7 MK1 16 T7
30 VFLS 8 MK1 17 T8
31 9 P1 18 T6
32
33 RLF1
34
35
36
37
38
X 5 X 6 X 7 X 8 X 9 X 10
1 Bus B 1 Bus A 1 T1 1 T2 1 N 1 PE
2 GND 2 AF 2 2 ZKP 2 N 2 PE
3 GND 3 WF 1 3 3 SLP 3 N 3 PE
4 GND 4 SF 4 4 MK1 4 N 4 PE
5 GND 5 VF 1 5 L 1 5 MK1 5 N 5 PE
6 GND 6 VFLS 6 6 P 1 6 N 6 PE
7 GND 7 7 7 7 N 7 PE
8 GND 8 8 8 8 N 8 PE
9 GND 9 RLF1 9 T6 9 R1 9 N 9 PE
10 GND 10 10 T8 10 R1 10 N 10 PE
11 GND 11 11 T7 11 KP1 11 N 11 PE
12 GND 12 12 N 12 PE
13 N 13 PE
Εισαγωγή παραμέτρων βλ 10.7.1.1 σελ. 54
For parameter entry, see 10.7.1.1 pg. 54
X1X2
X4
X3
ΥΠΟΔΕΙΞΗ
NOTE

Table of Contents

Related product manuals