EasyManua.ls Logo

Honeywell SDC 9-21 - Page 65

Honeywell SDC 9-21
92 pages
Print Icon
To Next Page IconTo Next Page
To Next Page IconTo Next Page
To Previous Page IconTo Previous Page
To Previous Page IconTo Previous Page
Loading...
SDC Εφαρμογές θέρμανσης / Heating applications
MU1H-0438GE51 R0313 65
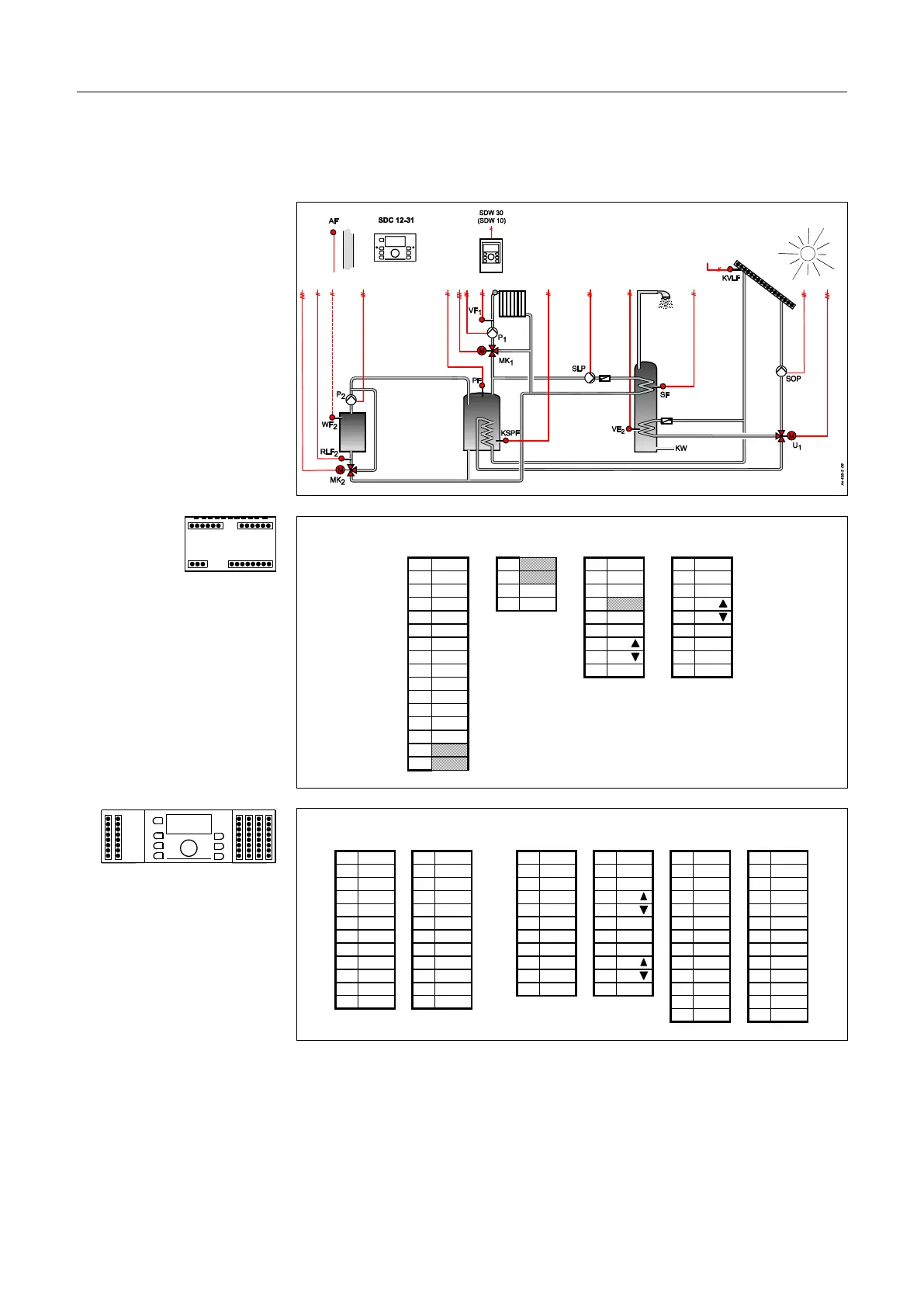
10.11 Υδραυλικό σύστημα 0405 (SDC 12-31)
Hydraulics 0405 (SDC 12-31)
X 1 X 2 X 3 X 4
23 GND 19 1 T2 10 P2
24 BUS A 20 2 T1 11 U1
25 BUS B 21 N 3 SOP 12 L1
26 AF 22 L1 4 13 MK2
27 5 SLP 14 MK2
28 SF 6 L 1 15
29 VF1 7 MK1 16
30 WF2 8 MK1 17
31 VE2 9 P1 18
32 PF
33 RLF2
34 KVLF
35 KSPF
36
37
38
X 5 X 6 X 7 X 8 X 9 X 10
1 Bus B 1 Bus A 1 T1 1 T2 1 N 1 PE
2 GND 2 AF 2 2 SOP 2 N 2 PE
3 GND 3 3 3 SLP 3 N 3 PE
4 GND 4 SF 4 4 MK1 4 N 4 PE
5 GND 5 VF 1 5 L 1 5 MK1 5 N 5 PE
6 GND 6 WF2 6 6 P 1 6 N 6 PE
7 GND 7 VE2 7 7 P2 7 N 7 PE
8 GND 8 PF 8 8 U1 8 N 8 PE
9 GND 9 RLF2 9 9 MK2 9 N 9 PE
10 GND 10 KVLF 10 10 MK2 10 N 10 PE
11 GND 11 KSPF 11 11 11 N 11 PE
12 GND 12 12 N 12 PE
13 N 13 PE
Εισαγωγή παραμέτρων βλ. 10.11.1 σελ. 66.
For parameter entry, see 10.11.1 pg. 66.
X1X2
X4
X3
ΥΠΟΔΕΙΞΗ
NOTE

Table of Contents

Related product manuals