EasyManua.ls Logo

Honeywell SDC 9-21 - Page 75

Honeywell SDC 9-21
92 pages
Print Icon
To Next Page IconTo Next Page
To Next Page IconTo Next Page
To Previous Page IconTo Previous Page
To Previous Page IconTo Previous Page
Loading...
SDC Εφαρμογές τηλεθέρμανσης / District heating applications
MU1H-0438GE51 R0313 75
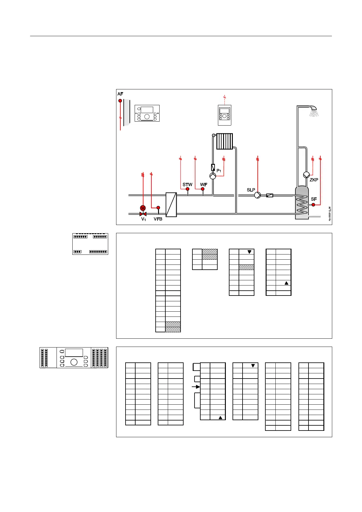
11.3 Υδραυλικό σύστημα 0502 (SDC 7-21 / SDC 9-21, τρόπος
λειτουργίας DHC)
Hydraulics 0502 (SDC 7-21 / SDC 9-21, DHC mode)
X 1 X 2 X 3 X 4
23 GND 19 1 V 1 10
24 BUS A 20 2 L 1 11
25 BUS B 21 N 3 ZKP 12
26 AF 22 L 1 4 13
27 WF 5 SLP 14
28 SF 6 L 1 15
29 7 16 V 1
30 8 17
31 9 P 1 18 L 1
32 VFB
33
34
35
36
37
38
X 5 X 6 X 7 X 8 X 9 X 10
1 Bus B 1 Bus A 1 1 V 1 1 N 1 PE
2 GND 2 AF 2 2 ZKP 2 N 2 PE
3 GND 3 WF 3 3 SLP 3 N 3 PE
4 GND 4 SF 4 4 4 N 4 PE
5 GND 5 5 L1 5 5 N 5 PE
6 GND 6 6 6 P1 6 N 6 PE
7 GND 7 7 7 7 N 7 PE
8 GND 8 VFB 8 8 8 N 8 PE
9 GND 9 9 9 9 N 9 PE
10 GND 10 10 10 10 N 10 PE
11 GND 11 11 V 1 11 11 N 11 PE
12 GND 12 12 N 12 PE
13 N 13 PE
Pos: 35 /156-Honeywell/ Montage/050 3/SDC7-21 @ 1\mod_120765 3216010_2 58.doc @ 104 66
X1X2
X4
X3

Table of Contents

Related product manuals