EasyManua.ls Logo

Honeywell Smoke Alarm - Installation using IPENC or HP300 ULX; Mounting IPBRKT inside HP300 ULX

Honeywell Smoke Alarm
15 pages
To Next Page IconTo Next Page
To Next Page IconTo Next Page
To Previous Page IconTo Previous Page
To Previous Page IconTo Previous Page
Loading...
5/19/2008 5 of 15
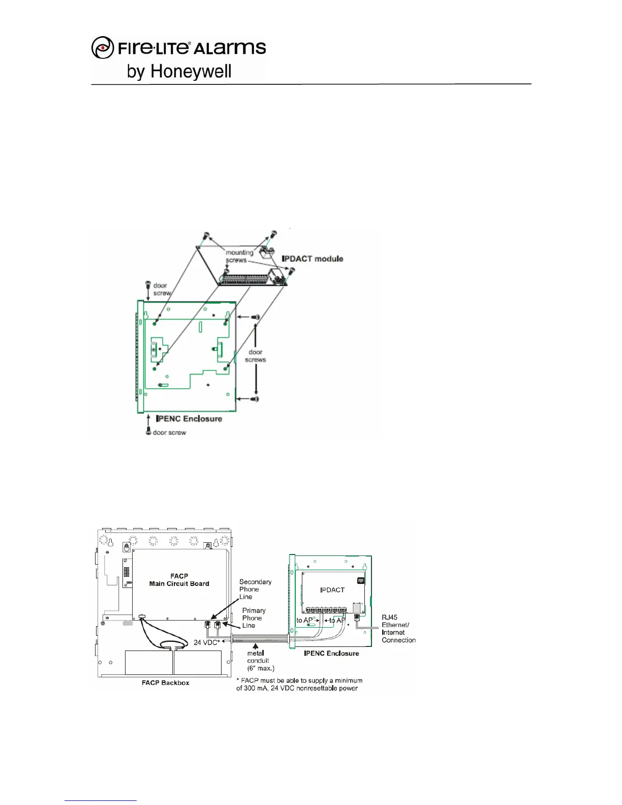
2. Installation using IPENC or HP300ULX
The IPENC is used for mounting the IPDACT next to panels that cannot accept
the IPBRKT directly inside the enclosure. Examples of these include the MS-
9200UD and MS-9600.
Install the IPDACT onto the factory mounted IPBRKT inside the IPENC using the
4 supplied ¼”X 6-32 machine screws as shown below. The four black screws
will be used to secure the enclosure door following IPDACT wiring connections.
For complete information of all installation options, follow the wiring instructions
found in the included Product Installation Document.
Mount the IPENC next to the FACP as shown in the drawing below.
Mounting the IPBRKT inside the HP300ULX when more power is required

Related product manuals