EasyManua.ls Logo

HP ProLiant ML370 G6 - Page 91

HP ProLiant ML370 G6
172 pages
To Next Page IconTo Next Page
To Next Page IconTo Next Page
To Previous Page IconTo Previous Page
To Previous Page IconTo Previous Page
Loading...
Hardware options installation 91
17.
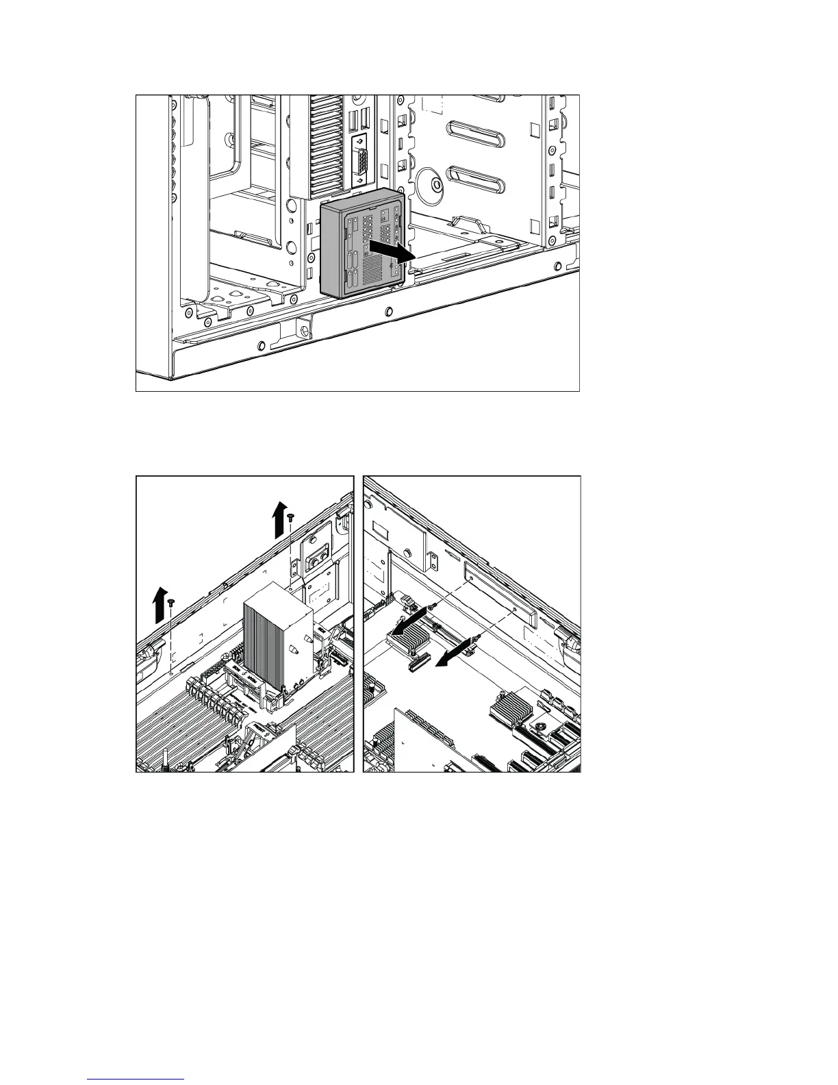
Extend the Systems Insight Display from the chassis.
For the remaining steps, the Systems Insight Display is not shown for clarity.
18. With a T-15 Torx screwdriver, remove the following seven screws:
o Inside (4)

Table of Contents

Other manuals for HP ProLiant ML370 G6

Related product manuals