EasyManua.ls Logo

Huawei SUN2000-20KTL-M5 - Preparing Cables

Huawei SUN2000-20KTL-M5
114 pages
To Next Page IconTo Next Page
To Next Page IconTo Next Page
To Previous Page IconTo Previous Page
To Previous Page IconTo Previous Page
Loading...
CA UTION
Stay away from the equipment when preparing cables to prevent cable scraps
from entering the equipment. Cable scraps may cause sparks and result in
personal injury and equipment damage.
When routing PV cables, the positive and negative PV string cables should be
routed in
dierent pipes to prevent cable damage and short circuits caused by
improper operations during construction.
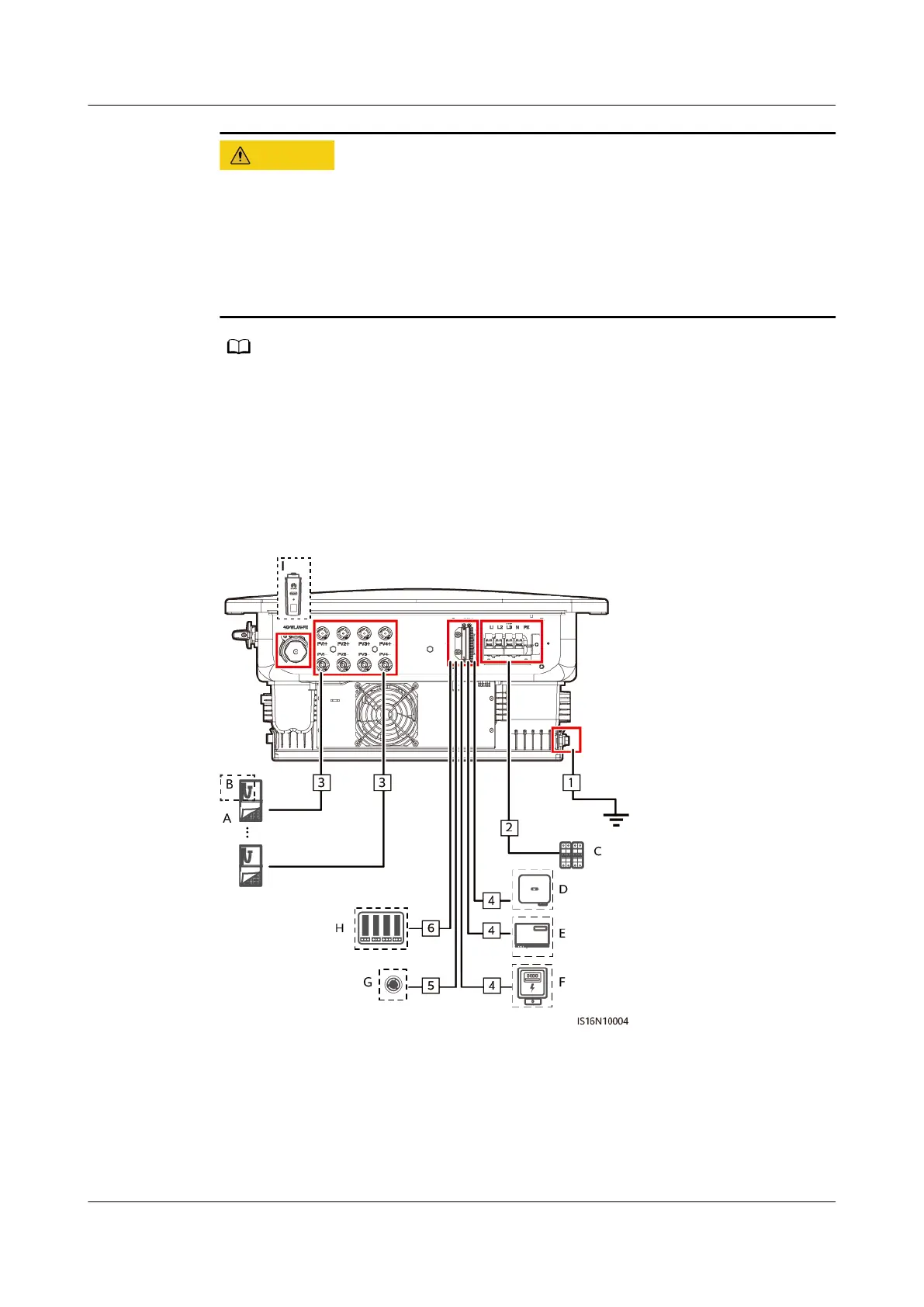
NO TE
The cable colors shown in the electrical connection diagrams provided in this chapter are
for reference only. Select cables in accordance with local cable specications (green-and-
yellow cables are only used for grounding).
5.2 Preparing Cables
Figure 5-1 SUN2000 cable connections (Components in the dashed boxes are
optional.)
SUN2000-(12KTL-25KTL)-M5 Series
User Manual 5 Electrical Connections
Issue 03 (2023-02-15) Copyright © Huawei Digital Power Technologies Co., Ltd. 32

Table of Contents

Other manuals for Huawei SUN2000-20KTL-M5

Related product manuals