EasyManua.ls Logo

Hussmann FWEG - Refrigeration Data; Defrost Data; NSF Certification

Hussmann FWEG
7 pages
Print Icon
To Next Page IconTo Next Page
To Next Page IconTo Next Page
To Previous Page IconTo Previous Page
To Previous Page IconTo Previous Page
Loading...
REFRIGERATION DATA
Note: This data is based on store temperature and
humidity that does not exceed 75°F and 55% R.H.
MED FF IC
Discharge Air (°F) +24 –12 –22
Evaporator(°F) +19 –20 –30
Unit Sizing (°F) +17 –23 –33
Btu/hr/case MED FF IC
Parallel 1610
2560 2730
Conventional 1680
2670 2850
DEFROST DATA
M
ED FF IC
Frequency (hr) 24 24 24
Defrost Water (lb/case/day) 6.6 6.3 5.4
(± 15% based on case configuration and product
loading).
E
LECTRIC
M
ED FF IC
Temp Term (°F) 48 48 48
Failsafe (minutes) 60 60 60
GAS
Duration (minutes) NA 15 18
O
FFTIME Not Recommended
Standard Defrost Thermostat
Close on rise: close 48°F — open 33°F
CONVENTIONAL CONTROLS
Low Pressure Backup Control — CI/CO *
M
ED +22°F / +10°F
FF –17°F / –29°F
IC –27°F / –39°F
Indoor Unit Only, Pressure Defrost Termination*
Not Recommended
*Use a Temperature Pressure Chart to determine PSIG
conversions.
Estimated Charge (lb)**
End 1.5
**This is an average for all refrigerant types. Actual
refrigerant charge may vary by approximately half a
pound.
Length Added to Lineup: 42 (1064)
This End Case is used in place of an End
Assembly. Partitions do not apply.
3 of 7P/N 0465903_D
HUSSMANN CORPORATION • BRIDGETON, MO 63044-2483 U.S.A. • WWW.HUSSMANN.COM
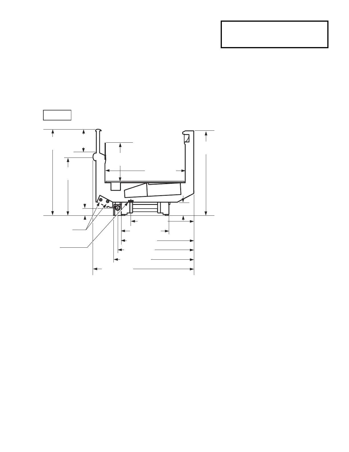
FAN
COIL
42 (1064)
15
7
/8
(404)
35
7
/8
(910)
33
3
/8 (848)
5
1
/2
(140)
3
1
/8
(79)
24
3
/8
(618)
26
1
/4 (665)
19
7
/8 (503)
31
5
/8 (804)
33
1
/2 (851)
FWEG
9
7
/8
(251)
30
1
/4 (767)
35
1
/4
(893)
Case-to-Case
Connection
Refrigeration
Outlet
Impact
Excel
FWEG
Low / Medium Temperature
Single Level End Display with Glass Front
Dimensions shown as inches & (mm).
NSF Certification
This merchandiser model is manufactured to meet ANSI/NSF
(National Sanitation Foundation) Standard #7 requirements for
construction, materials & cleanability.

Related product manuals