EasyManua.ls Logo

Hussmann IMPACT D5 - Plan Views; Engineering Plan Views

Hussmann IMPACT D5
6 pages
Print Icon
To Next Page IconTo Next Page
To Next Page IconTo Next Page
To Previous Page IconTo Previous Page
To Previous Page IconTo Previous Page
Loading...
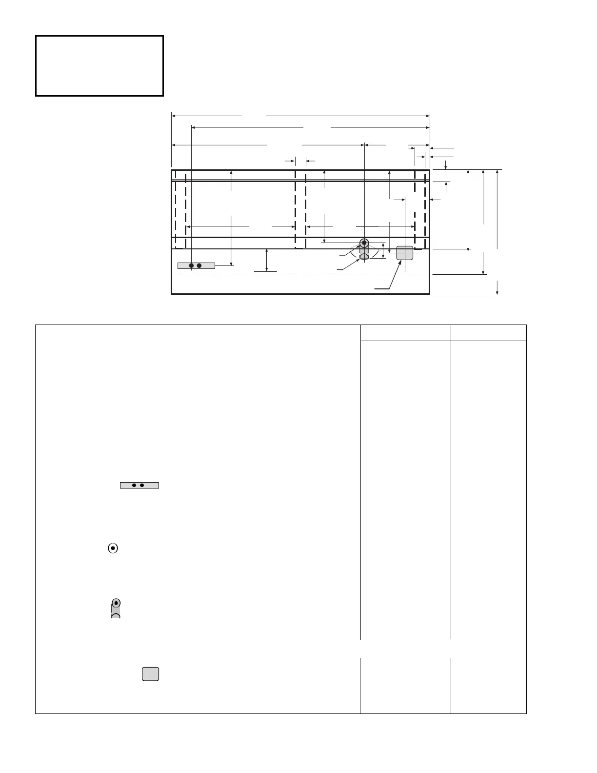
8 ft 12 ft
General
(A) Case Length (without ends or partitions) 96
3
/
8 (2448) 144
1
/
2 (3670)
Maximum O/S dimension of case back to front
(includes bumper) 46
1
/
4 (1174) 46
1
/
4 (1174)
Back of case to front of splashguard 38
5
/8 (981) 38
5
/8 (981)
Back of case to O/S edge of front skid rail 29
1
/
2 (749) 29
1
/
2 (749)
Width of skid rail 4
1
/
2 (114) 4
1
/
2 (114)
RH end of case to outside edge of external support 5
1
/2 (140) 5
1
/2 (140)
Distance between edges of external support and center support 40
5
/8 (1032) 40
5
/8 (1032)
Distance between edges of center supports NA 44 (1118)
Stub-up area between front skid rail and splashguard 7 (178) 7 (178)
Electrical Service (Electrical Field Wiring connection point)
(B) RH End of case to center of farthest knockout 88
3
/8 (2245) 136
1
/2 (3467)
Back of case to center of knockout 35
3
/8 (899) 35
3
/8 (899)
Length of electrical raceway 34
5
/8 (878) 34
5
/8 (878)
Waste Outlet
(C) RH End of case to the center of waste outlet 24
1
/8 (613) 72
1
/4 (1835)
LH End of case to the center of waste outlet 72
1
/4 (1835) 72
1
/4 (1835)
Back O/S of case to center of waste outlet 27
1
/2 (699) 27
1
/2 (699)
Water Seal
Edge of water seal to center of waste outlet 4 (102) 4 (102)
Outside diameter of the drip pipe 1
1
/2 (38) 1
1
/2 (38)
NOTE: Water seal outlet must clear front skid rail; water seal rotation in forward direction only due to low base.
Refrigeration Outlet
Back of case to center of refrigeration outlet 30
5
/8 (778) 30
5
/8 (778)
(D) RH end of case to center of refrigeration outlet 9 (230) 9 (230)
2 of 6 D5 Data Sheet
HUSSMANN CORPORATION, Bridgeton, MO 63044-2483 U.S.A.
Engineering
Plan Views
5
1
/2 (140)
1
3
/8 (35)
4
1
/4 (108)
27
1
/2
(699)
30
5
/8
(778)
46
1
/4
(1174)
38
5
/8
(981)
29
1
/2
(749)
4
1
/2 (114)
7 (178)
4 (102)
Waste Outlet
35
3
/8
(899)
40
5
/8
(1032)
40
5
/8
(1032)
Water Seal
(See note)
Refrigeration
Outlet
Electrical
A
Front
B
C
D
72
1
/4
(1835)
Dimensions shown as in. and (mm).
Dairy & Delicatessen
05-2003

Related product manuals