EasyManua.ls Logo

Hy-Security 222 EX - Page 44

Default Icon
78 pages
Print Icon
To Next Page IconTo Next Page
To Next Page IconTo Next Page
To Previous Page IconTo Previous Page
To Previous Page IconTo Previous Page
Loading...
Installation and Maintenance Manual
38
SLIDE GATE LOOP LAYOUT
seattle, washington
TITLE
DRAWING NUMBER
1 1
SHT OF
THIRD ANGLE PROJECTION
E96
REVDRAWN
APPROVED
CHECKED
DATE
DATE
DATE
05/15/00DB
A
--
--
--
DATE
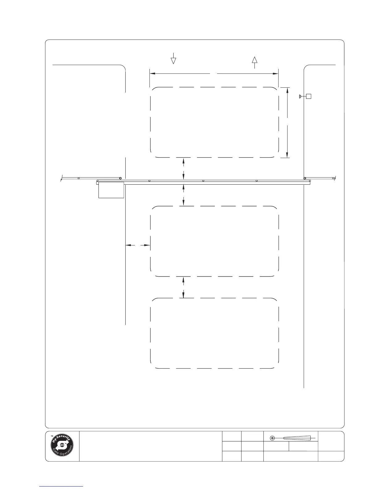
BI-DIRECTIONAL TRAFFIC SYSTEM
WITHCONTROLLED ACCESS ENTRY
(CARDREADER RADIO CONTROL, ETC.)
AND FREE EXIT GATE IS CLOSED BY A
"TIMER TO CLOSE". FOR A SINGLE
DIRECTIONAL SYSTEM OMIT EITHER
THE FREE EXIT LOOP OR THE ENTRY
CONTROL DEVICES.
GATE STARTS TIMING TO CLOSE AS
TIMER IS ADJUSTABLE FROM
1 TO 99 SECONDS.
DIMENSION "A" = 6 TO 20 FEET
DIMENSION "B" = 6 TO 8 FEET
DIMENSION "C" = MAINTAIN 4 FEET
DIMENSION "D" = MAINTAIN 5 FEET BETWEEN LOOP AND EDGE OF ROADWAY.
NO VEHICLE CAN PASS THROUGH SUCH A SMALL AREA AND ESCAPE DETECTION
DIMENSION "E" = LOCATED FOR CONVENIENCE OF USE.
FREE EXIT
LOOP
EXIT
ENTER
D
OBSTRUCTION
LOOP
C
A
OPTIONAL
B
ACCESS CONTROL
DEVICE, CARD
READER, ETC.
E
PUBLIC
SIDE
SECURE
SIDE
ALL LOOPS ARE CLEAR.
OPERATOR
C
LOOP
OBSTRUCTION
ERN NUMBER

Table of Contents

Related product manuals