EasyManua.ls Logo

Hy-Security 222 EX - Page 55

Default Icon
78 pages
Print Icon
To Next Page IconTo Next Page
To Next Page IconTo Next Page
To Previous Page IconTo Previous Page
To Previous Page IconTo Previous Page
Loading...
Installation and Maintenance Manual
49
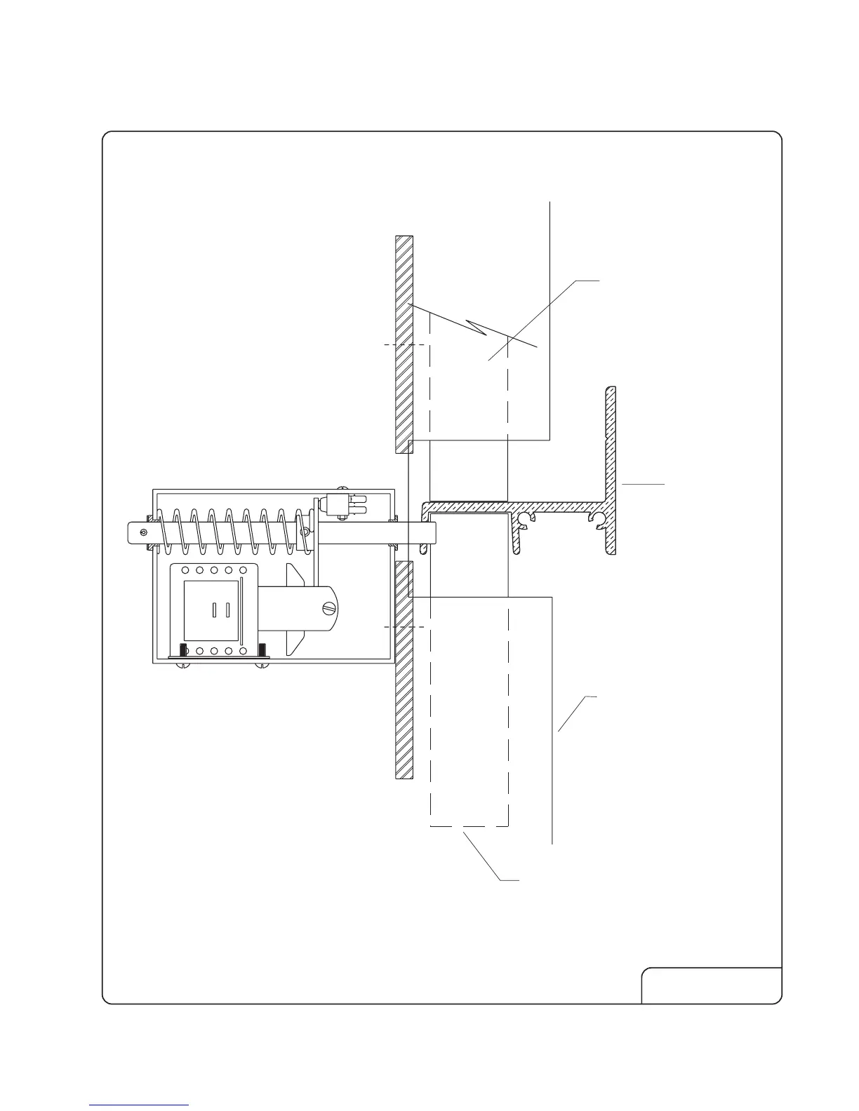
INTERNAL SOLENOID LOCK
S26b
UPPER DRIVE WHEEL
DRIVE RAIL
OUTLINE OF
OPERATOR HOUSING
LOWER DRIVE WHEEL

Table of Contents

Related product manuals