EasyManua.ls Logo

Hyster B233 - Page 20

Hyster B233
24 pages
Print Icon
To Next Page IconTo Next Page
To Next Page IconTo Next Page
To Previous Page IconTo Previous Page
To Previous Page IconTo Previous Page
Loading...
Troubleshooting 2200 SRM 1286
STATUS
CODE
DISPLAY MESSAGE LED CIRCUIT
High
Temp
(cont)
High Temp Solid Green Motor
DESCRIPTION SYMPTOM
Thermal cut-back due to high motor
temperature or high power bridge
temperature.
Traction system is operating at a reduced
performance level.
Probable Causes and Test Procedures
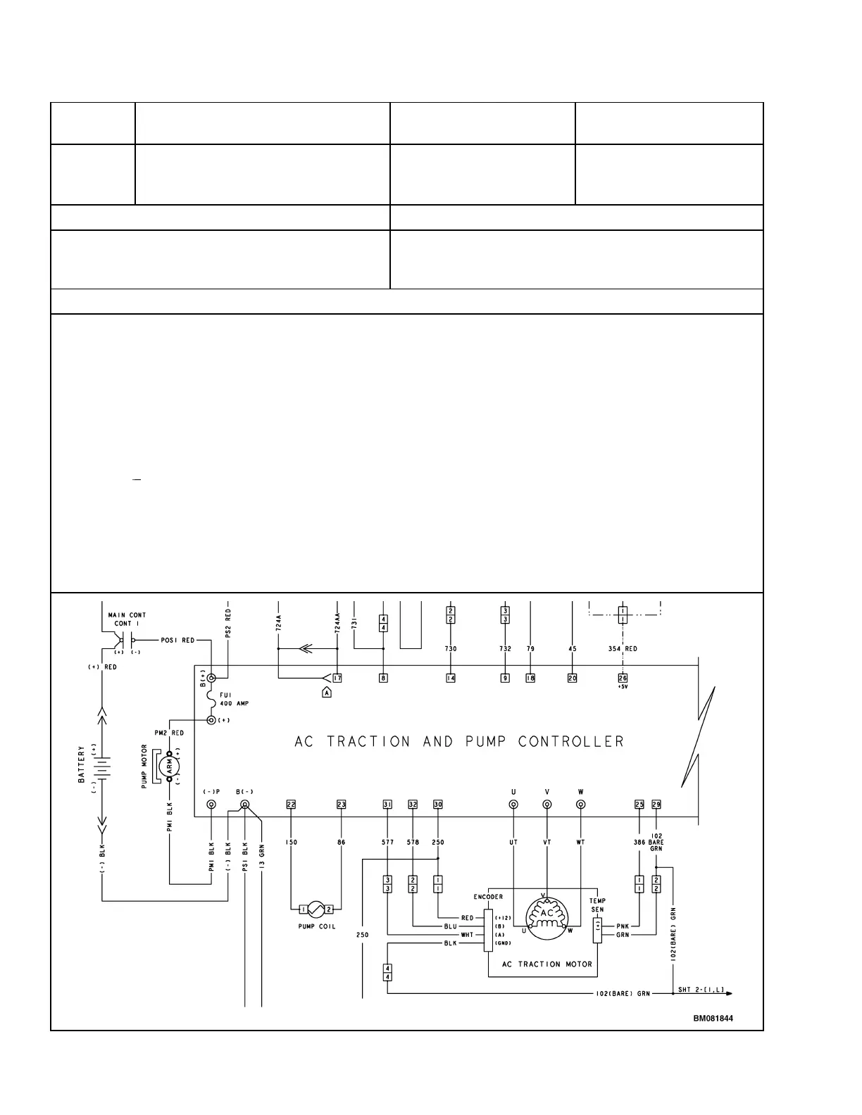
6. Check the resistance through the main contactor coil. Refer to the section Electrical System 2200 SRM
1451 or Electrical System 2200 SRM 1287, Contactor Coil Check.
a. The resistance should measure approximately 22 ohms ±10%.
Replace the coil.
7. Check for shorts with truck frame.
a. Check resistance between the following points for greater than 1Mohm:
CANH and truck frame
CANL and truck frame
B+ and truck frame
B
and truck frame
UT wire (traction motor) to truck frame
VT wire (traction motor) to truck frame
WT wire (traction motor) to truck frame
PS2 wire (steer motor) to truck frame (if applicable)
PM2 wire (pump motor) to truck frame
PM1 wire (pump motor) to truck frame
14

Related product manuals