EasyManua.ls Logo

Icematic F 125C - Adjustment, Removal, and Replacement Procedures; Evaporator Water Level Adjustment; Gear Motor Magnetic Sensor Replacement

Icematic F 125C
48 pages
Print Icon
To Next Page IconTo Next Page
To Next Page IconTo Next Page
To Previous Page IconTo Previous Page
To Previous Page IconTo Previous Page
Loading...
29

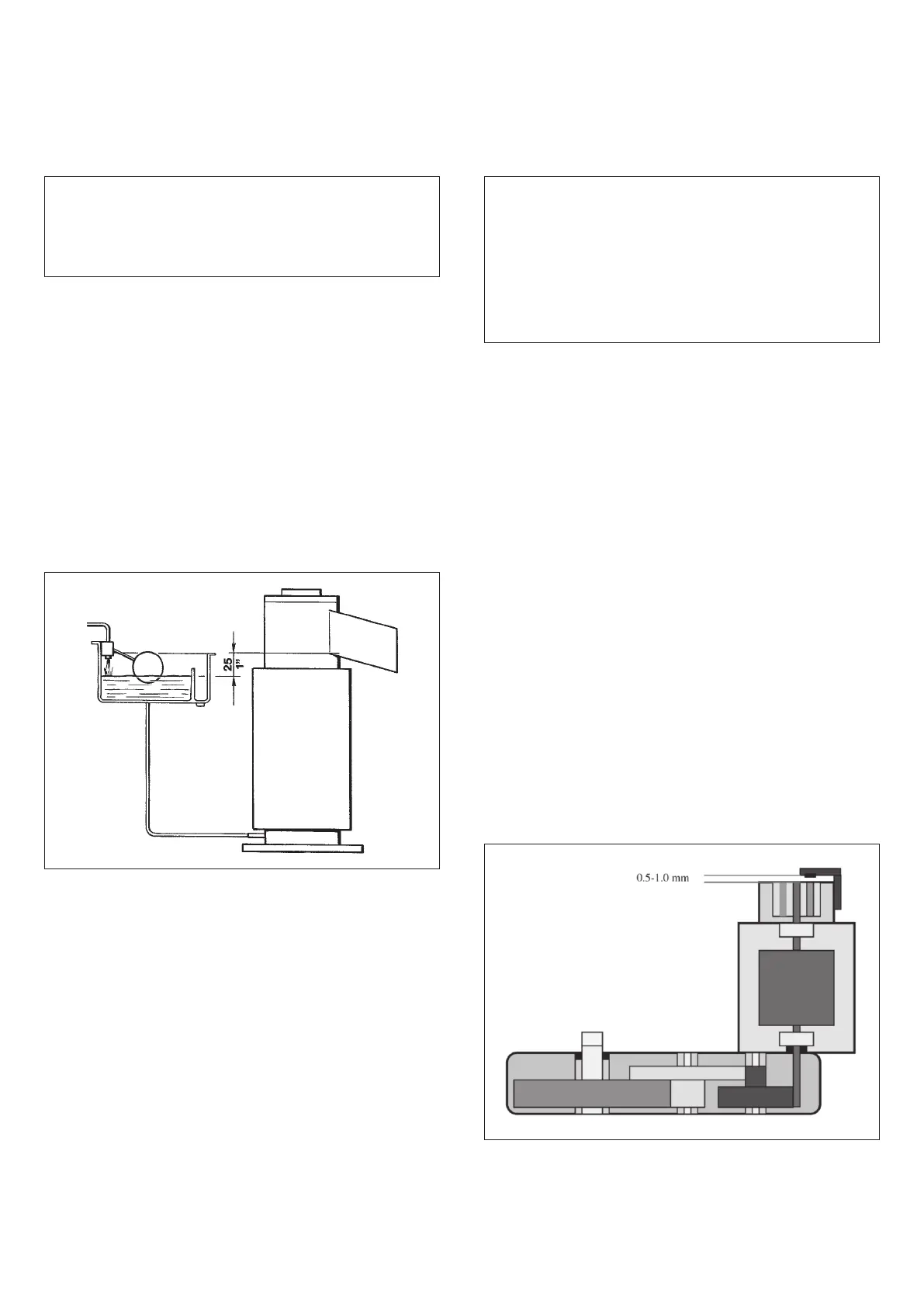
A ADJUSTEMENT OF THE EVAPORATOR
WATER LEVEL
The correct water level in the freezing cylinder
is about 20 mm. (1") below the ice discharge
opening. Low water level causes excessive
strain inside the freezer assembly due to a
faster freezing rate.
When the water level is above or below the cor-
rect one, adjustment can be performed by
raising or lowering at the measure required,
the water reservoir and its mounting bracket.
1 To Raise or Lower the water level:
a Loosen and remo-
ve the screw securing the mounting bracket
of the water reservoir to the unit cabinet and
raise the water reservoir to the correct level.
b Thread the moun-
ting screw in the corresponding hole and
tighten it.
B. REPLACEMENT OF THE GEAR MOTOR
MAGNETIC SENSOR
1 On F100-200, SF300-500 remove the
front/top and side/rear panels and on
SFN1000 remove the front, top and left side
panels.
2 Unloose the three screws securing the pla-
stic cover to the top of the gear motor and
remove it.
3 Unloose the two screws securing the magne-
tic sensor to the plastic housing and with-
draw it from its seat.
4 Trace the gear motor magnetic sensor termi-
nal plug on the rear side of the control box
(red with four terminal pins) and draw it out
from its socket by carefully slackening the
fastening tie.
5 To install the replacement gear motor
magnetic sensor follow the above steps in
reverse.
ADJUSTMENT, REMOVAL AND REPLACEMENT
PROCEDURES
NOTE. Read the instructions throughly befo-
re performing any of the following adjustment
or removal and replacement procedure
WARNING. Be sure the electrical power
supply circuit breaker and the inlet water
supply are OFF, before starting any of the
following Removal and Replacement pro-
cedures as a precaution to prevent possi-
ble personal injury or damage to the equip-
ments.

Related product manuals