EasyManua.ls Logo

IceTech FD Series - Wiring Diagrams

Default Icon
29 pages
Print Icon
To Next Page IconTo Next Page
To Next Page IconTo Next Page
To Previous Page IconTo Previous Page
To Previous Page IconTo Previous Page
Loading...
SERVICE MANUAL FD/HD
28
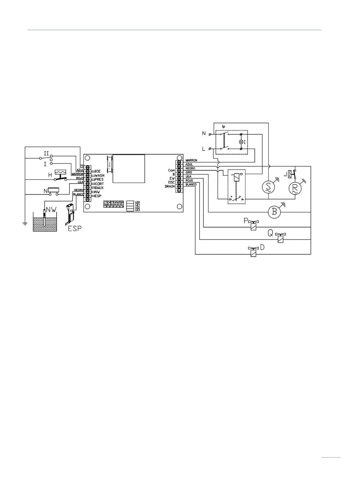
8. WIRING DIAGRAMS
8.1. FD/HD single-phase
COMPONENTS
H Safety pressostat
N Curtain sensor
I Ice - Wash (3 positions)
S Compressor.
R Fan motor
J Condensation pressostat (water condenser)
B Pump
P Water valve
Q Hot gas valve.
D Drain valve
NW Water level sensor
ESP Thickness detector
Ip ON/OFF switch

Related product manuals