EasyManua.ls Logo

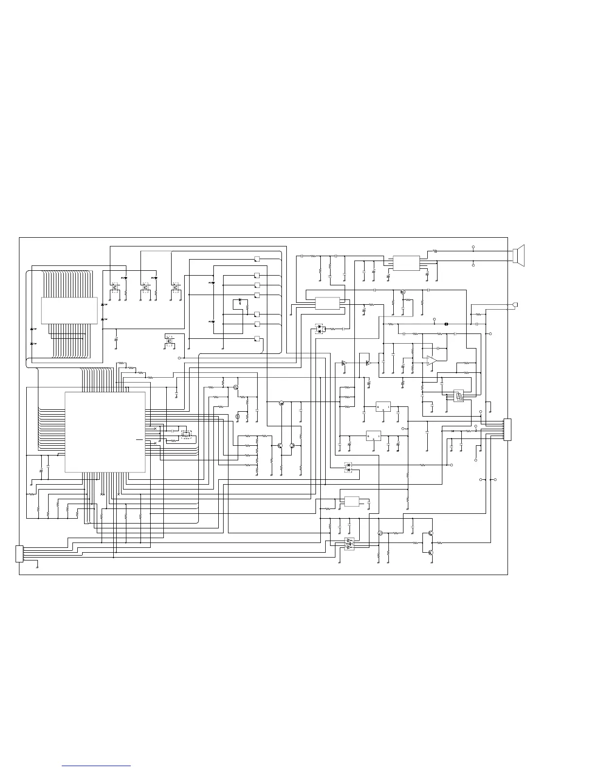
Icom IC-M402 - HM-127 Optional Unit Voltage Diagram

Icom IC-M402
42 pages
Print Icon
To Next Page IconTo Next Page
To Next Page IconTo Next Page
To Previous Page IconTo Previous Page
To Previous Page IconTo Previous Page
Loading...
11-3 HM-127 (OPTIONAL UNIT)
11 - 3
J2
6
5
4
3
2
1
GND
RXD
TXD
RESET
VPP
5V
STXD
SRXD
RESET
VPP
5V 5V
SRXD
STXD
47k
R55
1k
R54
TC7W14FU
IC8
8
7
6
5 4
3
2
1
2SA1576
Q11
47
R58
4.7k
R57
RRXDA
PTT
0.1
C46
2SC4081
Q10
RTXDA
27k
R51
1k
R56
5V
0.01
C45
0.027
C42
2SK1069
Q9
S-80928ANMP
IC7
5
CD
4
NC
3
VSS
2
VDD
1
OUT
100k
R50
PTT
VCC
AF/MIC
AF5V
from/to MAIN unit J2
or LOGIC board J1
RMUTE
BEEP
RESET
VCCSW
0.1
C44
100k
R53
PTT
PWR
100k
R18
DOWN
UP
CONT3
CONT2
100k
R15
100k
R14
100k
R17
100k
R16
RMUTE
BEEP
100k
R10
5V 5V
5V
5V
100k
R13
100k
R12
100k
R11
0.01
C4
22
C3
SEG27
SEG26
SEG25
SEG24
SEG23
SEG22
SEG21
SEG20
CONT1
RESET
VPP
CONT1
CONT2
CONT3
DIM1
DIM2
VCCSW
DIM3
DIM4
1M
R19
SQL
IC
VOL
HL
39k
R61
10k
R60
10k
R29
10k
R31
10k
R33
20k
R32
18k
R30
20k
R28
15k
R59
2SC4116
Q3
PWR
2SC4116
Q12
3.9k
R64
10k
R63
47k
R62
0.1
C38
1k
R34
100
C39
330
C41
39k
R52
DAN202U
D2
0.1
C40
8V
CP18
CP16
CP14
100
R69
47p
C52
47p
C51
CP17
PWRC
RRXDA
RTXDA
MICG
AF/MIC
J1
PTTC
GND
VCC
100
R68
CP12
CP15
1
C54
1SS355
D3
TC4W53FU
IC9
8
7
6
5 4
3
2
1
1M
R67
0.001
C50
470P
C47
22
R77
22
R76
22
R75
CP11
VCC
0.1
C36
0.1
C34
TA78L05F
IC5
TA7808F
IC6
VCC5V
0.01
C9
2SB1132
Q2
10k
R27
NTCCM16084BH
R26
10k
R23
20k
R22
39k
R21
2SK1069
Q1
0.1
C7
1.2k
R24
PTT
VRDAT
VRCK
5V
8V
BEEP
RMUTE
5V
PTT
PWRSW
10k
R25
VCCSW
VRDAT
VRCK
0.01
C5
CSTCC4.91MG
X1
0.01
C6
DIM3
DIM2
DIM1
µPD789405AGK-A30-9EU
IC1
79
P41/KR1
78
P42/KR2
77
P43/KR3
76
P44/KR4
75
P45/KR5
74
IC
73
XT1
72
XT2
71
VDD0
70
VSS0
69
X1
68
X2
67
RESET
66
P46
65
P47
64
P00
63
P01
62
P02
39
AVDD
38
P80/S27
37
P81/S26
36
P82/S25
35
P83/S24
34
P84/S23
33
P85/S22
32
P86/S21
31
P87/S20
30
P90/S19
29
P91/S18
28
P92/S17
27
P93/S16
26
S15
25
S14
24
S13
23
S12
22
S11
61
P03
P66/ANI6
P65/ANI5
P64/ANI4
P63/ANI3
P62/ANI2
P61/ANI1/CMPREF
P60/ANI0/CMPIN0
AVSS
WDSW
SCAN
CHWX
CH16
PWR
PTT
MODE
DOWN
UP
BEEP
STXD
SRXD
BPLVL
P27/INTP3/CPT5
P26/INTP2/TO5
P25/INTP1/TI1
P24/INTP0/TI0
P23/CMPTOUT0/TO
P22/SI/RXD
P21/SO/TXD
P20/SCK/ASCK
P53
P52
P51
P50
40
AVREF
21
S10
80
P40/KR0
SEG10
SEG19
SEG18
SEG17
SEG16
SEG15
SEG14
SEG13
SEG12
SEG11
10k
R7
10k
R6
10
C1
SKQLLC
S4
CP7
10k
R8
PTT
10k
R9
CH16
6.8k
R20
10KEY
S7
PTT
22
C37
0.1
C28
10
C30
AF5V
22
C35
5V
0.001
C29
DTC144EU
Q5
DTB123EK
Q6
100k
R45
0.01
C53
1M
R65
1M
R66
47p
C32
100k
R44
NJM2125F
IC4
5
4
2
1
3
MIC
CP6
MICG
SKB-2746 LPC
MC1
CP5
CP4
470k
R47
1
C33
1
C26
470p
C27
12k
R42
33k
R46
100k
R41
33
R70
22
C23
1
C24
2SJ144
Q4
0.01
C25
0.22
C31
0.01
C22
470k
R40
100k
R39
2.7K ERJ3GE
R43
M62429FP
IC3
8
VIN2
7
VOUT2
6
VCC
5
CLK
4
DATA
3
GND
2
VOUT1
1
VIN1
VOL
VRCK
PWRSW
VRDAT
15k
R38
DA204U
D1
DOWN
CHWX
IC
150
R3
SML-311YT
DS10
SML-311YT
DS9
10KEY
S11
10KEY
S8
10KEY
S9
10KEY
S6
SKQLLC
S3
SKQLLC
S2
120
R2
SKQLLC
S1
SEG21
SEG17
SEG13
COM3
COM2
COM1
COM0
SEG0
SEG1
SEG2
SEG3
SEG4
SEG5
SEG6
SEG7
SEG8
SEG9
SEG10
SEG11
SEG15
SEG19
MAIN UNIT
120
R1
FY1101F-TR
DS6
FY1101F-TR
DS5
A0119
DS1
SEG25
SEG23
SEG24
SEG20
SEG16
SEG12
SEG13
SEG14
SEG15
SEG17
SEG18
SEG19
SEG21
SEG22
SEG23
SEG25
SEG26
SEG27
SEG24
SEG20
SEG16
SEG12
SEG13
SEG14
SEG15
SEG17
SEG18
SEG19
SEG21
SEG22
SEG23
SEG25
SEG9
SEG8
SEG7
SEG6
SEG5
SEG4
SEG3
SEG2
SEG1
SEG0
COM3
COM2
COM1
COM0
S9
S8
S7
S6
S5
S4
S3
S2
S1
S0
COM3
COM2
COM1
COM0
VSS1
VLC2
VLC1
VLC0
BIAS
VDD1
SEG26
SEG27
SEG21
SEG17
SEG13
COM3
COM2
COM1
COM0
SEG0
SEG1
SEG2
SEG3
SEG4
SEG5
SEG6
SEG7
SEG8
SEG9
SEG10
SEG11
SEG15
SEG19
4
5
6
7
8
9
10
11
12
13
14
15
16
17
18
19
20
39
38
37
36
35
34
33
32
31
30
29
28
27
26
25
24
23
22
20
19
18
17
16
15
14
13
12
11
10
9
8
7
6
5
4
3
2
1
41
42
43
44
45
46
47
48
49
50
51
52
53
54
55
56
57
58
59
60
21
3
2
1
FY1101F-TR
DS3
FY1101F-TR
DS2
SML-311YT
DS4
PWRSW
SCAN
HL
SML-311YT
DS7
SML-311YT
DS8
10KEY
S10
10KEY
S5
0.1
C11
1
C12
SQL
0.1
C10
10k
R36
22k
R37
1k
R35
UP
100
C16
TA7368F
IC2
10
POUT
9
PWGND
8
PREGND
7
PHASE
6
NF
5
RIPPLE
4
VIN
3
NC
2
VCC
1
NC
100
C15
0.1
C14
0.047
C13
100
C17
SP
-
SP+
+
-
SP1
036D0801
CHASSIS
CP2
CP3
330
C18
8
7
6
5
4
3
2
1

Other manuals for Icom IC-M402

Related product manuals