EasyManua.ls Logo

Icom IC-M423 - Page 98

Icom IC-M423
108 pages
Print Icon
To Next Page IconTo Next Page
To Next Page IconTo Next Page
To Previous Page IconTo Previous Page
To Previous Page IconTo Previous Page
Loading...
89
10
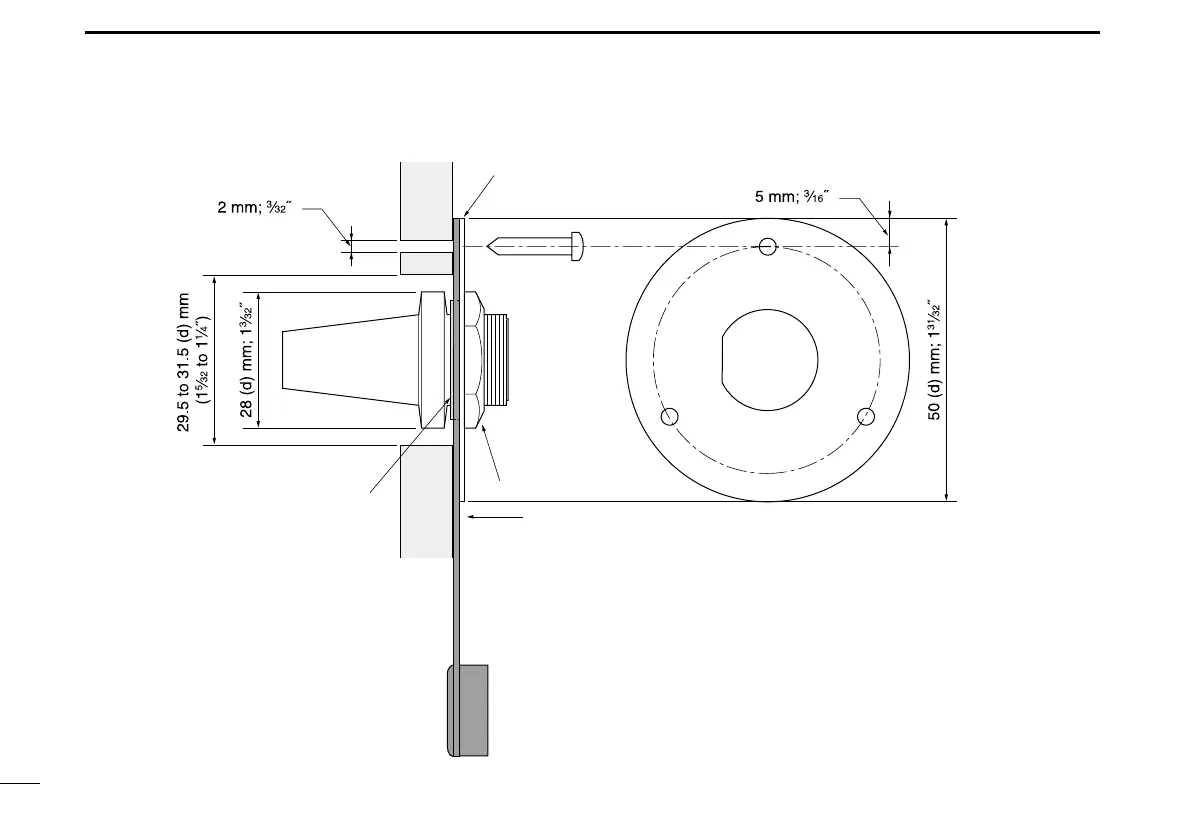
CONNECTIONS AND MAINTENANCE
Gasket
Mounting base
Cap
Nut

Table of Contents

Related product manuals