EasyManua.ls Logo

Immergas Hydro 3 - 1.2 INSTALLATION; General Installation Safety and Requirements

Immergas Hydro 3
Print Icon
To Next Page IconTo Next Page
To Next Page IconTo Next Page
To Previous Page IconTo Previous Page
To Previous Page IconTo Previous Page
Loading...
37
Use the accessories provided and the specied parts for
installation.
Otherwise this could cause a water leak, an electric shock
or a re.
Install the unit on a steady, strong support that can with-
stand the weight of the device.
Otherwise the unit could fall and cause damage and injury.
e unit must not be installed in the laundry room.
Before opening the terminals, disconnect all supply volt-
age circuits.
When installation is complete, make sure there are no
water leaks.
e temperature of the cold water in the unit must not be
less than 3°C, while that of the hot water must not exceed
70°C. e water in the unit must be clean and the water
quality must comply with the PH standard=6.5~7.5.
As the circuit temperature is high, install the connection
cable away from copper pipes.
Take all necessary precautions during installation in the
event of strong winds or any weather or earthquakes.
Improper installation can cause the unit to fall and damage
property or injure people.
Strictly follow these instructions to install the indoor unit
or its pipes.
If the fan coil is to be installed on a metal part of the
building, it needs to be electrically isolated in compliance
with the applicable regulations on electrical appliances.
When all installation operations have been completed,
carefully check and connect the supply voltage.
If the product is improved or modied, this manual will
be subject to variations without forewarning.
e fan coil must be installed in compliance with national
wiring regulations to avoid the risk of death.
Make sure the device is installed, repaired or serviced
only by experienced and qualied sta.
Incorrect installation, repairs or maintenance can cause
electric shock, short circuit, water leaks, res or otherwise
damage the device.
Strictly follow the instructions in this manual to install
the appliance.
Incorrect installation of the device can cause water leaks,
electric shocks or res.
1.2 INSTALLATION.
1
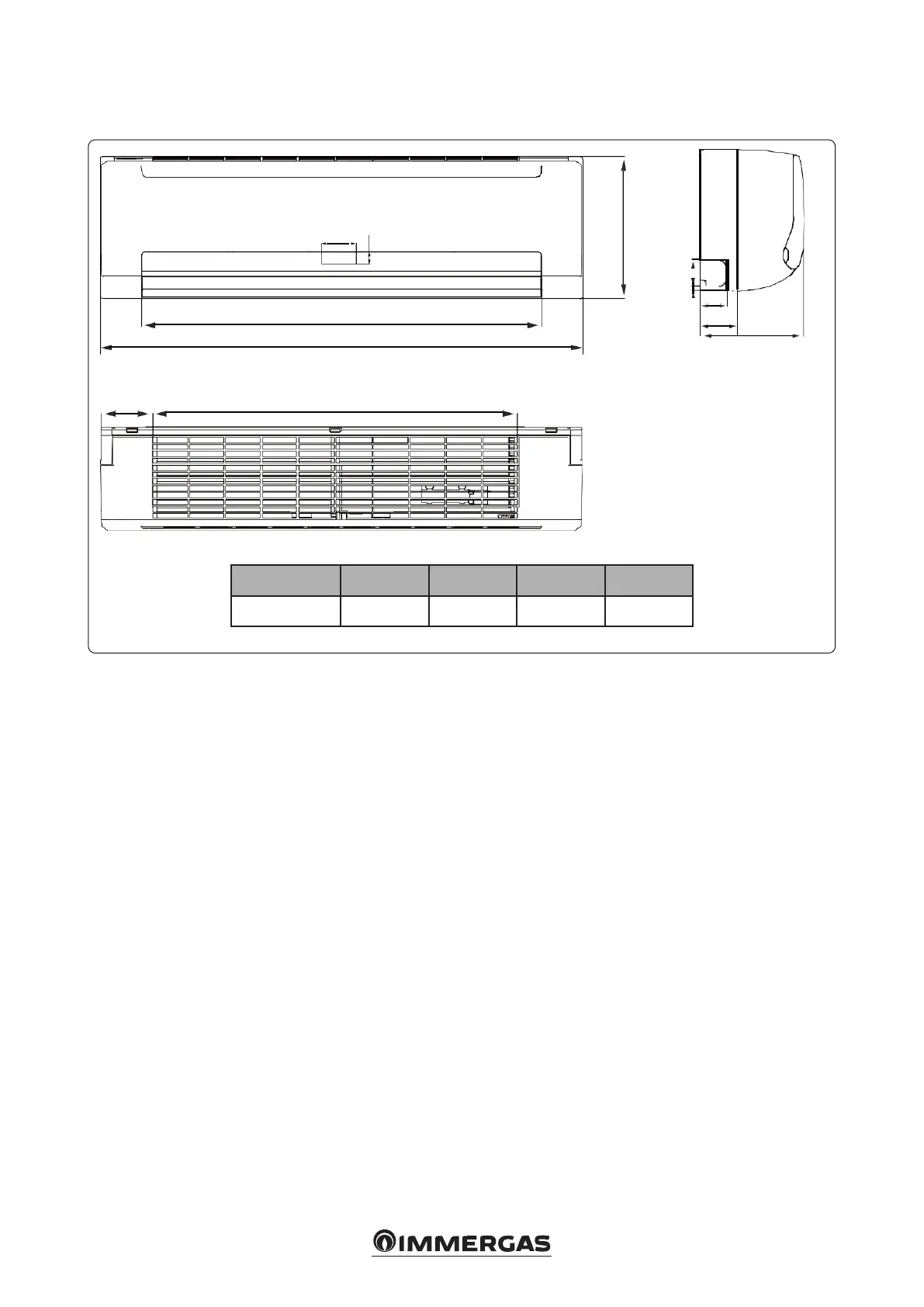
Model A B C D
HYDRO 3 - 4 732 mm 915 mm 290 mm 663 mm
230
82
114
D
75
A
B
25
C
8
60
Dimensional drawing

Related product manuals