EasyManua.ls Logo

Immergas Hydro 3 - Installazione

Immergas Hydro 3
Print Icon
To Next Page IconTo Next Page
To Next Page IconTo Next Page
To Previous Page IconTo Previous Page
To Previous Page IconTo Previous Page
Loading...
7
1
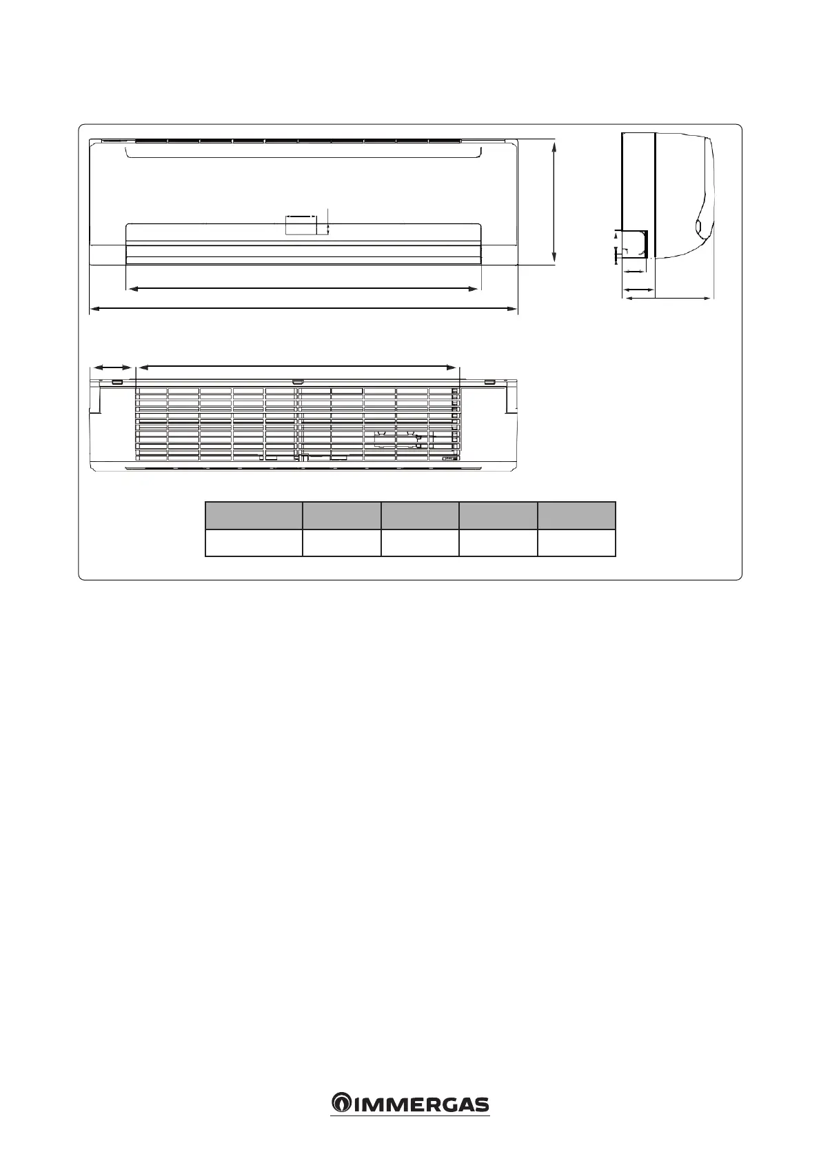
Modello A B C D
HYDRO 3 - 4 732 mm 915 mm 290 mm 663 mm
Per l’installazione dell’unità interna o dei relativi condotti,
seguire rigorosamente le istruzioni riportate nel presente
manuale.
In caso di installazione del ventilconvettore su una parte
metallica dell’edicio, provvedere a isolarlo elettricamente
nel rispetto delle norme vigenti in materia di elettrodo-
mestici.
Al termine di tutte le operazioni di installazione, control-
lare accuratamente e collegare l’alimentazione.
In caso di miglioramento o modifica del prodotto, il
presente manuale sarà soggetto a variazioni, senza previa
comunicazione.
Il ventilconvettore deve essere installato rispettando le nor-
me di cablaggio nazionale per evitare il rischio di pericolo
di morte.
Assicurarsi che le operazioni di installazione, riparazio-
ne o servizio dell’apparecchiatura siano eseguite esclusi-
vamente da personale esperto e qualicato.
Unerrata installazione, riparazione e manutenzione po-
trebbe causare shock elettrici, cortocircuiti, perdite d’ac-
qua, incendi o danneggiare altrimenti lapparecchio.
Procedere all’installazione seguendo rigorosamente le
istruzioni riportate nel presente manuale.
Lerrata installazione dellapparecchio può causare perdite
dacqua, shock elettrici e incendi.
230
82
114
D
75
A
B
25
C
8
60
1.2 INSTALLAZIONE.
Diisegno dimensionale
Per l’installazione, utilizzare gli accessori in dotazione e
le parti specicate.
In caso contrario, potrebbero vericarsi perdite dacqua,
shock elettrici e incendi.
Installare l’unità su un supporto stabile, robusto e capace
di sopportare il peso dell’apparecchio.
In caso contrario, l’unità potrebbe cadere e causare danni
e ferite.
L’unità non deve essere installata nel locale lavanderia.
Prima di accedere ai terminali, scollegare tutti i circuiti
di alimentazione.
Al termine dellinstallazione, vericare che non ci siano
perdite dacqua.
Lacqua fredda nellunità non deve avere una temperatura
inferiore a 3°C, mentre quella dellacqua calda non deve
superare 70°C. Lacqua all’interno dell’unità deve essere
pulita e la qualità dellacqua deve rispettare lo standard di
PH=6,5~7,5.
Essendo la temperatura del circuito alta, installare il
cavo di connessione lontano da tubi di rame.

Related product manuals