EasyManua.ls Logo

Immergas MINI NIKE 3 E - Page 127

Immergas MINI NIKE 3 E
Print Icon
To Next Page IconTo Next Page
To Next Page IconTo Next Page
To Previous Page IconTo Previous Page
To Previous Page IconTo Previous Page
Loading...
125
TR
SI
CZ
HU
PL
IE
RU
UA
SK
ES
RO
1
INSTALARE
CENTRALĂ
1.1 AVERTISMENTE PRIVIND
INSTALAREA.
Centrala Mini Nike 24 3 E a fost proiectată
exclusiv pentru instalare pe perete; trebuie să
e folosită pentru încălzirea încăperilor și pro-
ducerea de apă calsanitară pentru utilizări
casnice și similare.
Peretele trebuie e neted, adică nu prezinte
proeminenţe sau denivelări pentru a putea per-
mite accesul din partea posterioară. Nu au fost
proiectate nicidecum pentru instalări pe batiuri
sau podele (Fig. 1-1).
Doar un instalator termohidraulic calicat din
punct de vedere profesional este autorizat
instaleze aparate pe gaz Immergas. Instalarea
trebuie să e făcută în conformitate cu prevede-
rile normelor, legislaţiei în vigoare și respectând
normativa tehni locală, în conformitate cu
indicaţiile tehnice de bună credinţă. Instalarea
centralei Mini Nike 24 3 E în caz de alimentare
cu GPL trebuie respecte regulile pentru gazele
care au densitate mai mare decât aerul (se amin-
tește, ca titlu exemplicativ și nu exhaustiv,
este interzisă montarea instalaţiilor alimentate cu
gazele mai sus numite în spaţii care au podeaua la
o cotă inferioară celei externe medii de la ţară).
Înainte de a instala aparatul este necesar să veri-
caţi integritatea acestuia; dacă acest lucru nu e
sigur, adresaţi-vă imediat furnizorului. Elemen-
tele ambalajului (agrafe, cuie, săculeţe de plastic,
polistirol expandat etc.) nu trebuie e lăsate
la îndemâna copiilor pentru că reprezintă surse
de pericol. În cazul în care aparatul este închis
în interiorul sau între mobilă trebuie existe
sucient spaţiu pentru întreţinerea obișnuită; se
recomandă așadar lăsaţi cel puţin 3 cm între
carcasa centralei și pereţii verticali ai mobilei.
Deasupra și dedesubtul centralei trebuie să se
lase spaţiu sucient pentru a permite efectuarea
racordurilor hidraulice și pentru sistemul de
evacuare fum. Este la fel de important ca grătarele
de aspirare nu e înfundate. Nici un obiect
inamabil nu trebuie se ae în apropierea
aparatului (hârtie, cârpe, plastic, polistirol, etc.).
Este recomandabil nu poziţionaţi aparate elec-
trocasnice sub centrală pentru că ar putea suferi
daune în caz de intervenţia la supapa de siguranţă
(dacă nu este corect orientată spre o pâlnie de
evacuare), sau în caz de pierderi prin racordurile
hidraulice; în caz contrar constructorul nu va
putea considerat responsabil pentru eventualele
daune cauzate aparatelor electrocasnice.
În caz de anomalie, defecţiune sau funcţionare
necorespunzătoare, aparatul trebuie e dezac-
tivat și trebuie chemaţi un tehnician abilitat (de
exemplu centrul de Asistenţă Tehnică Immergas,
care dispune pregătirea tehnică specică și piese
de schimb originale). Așadar, nu executaţi nicio
lucrare de intervenţie sau încercări de reparaţie.
Nerespectarea celor de mai sus determină res-
ponsabilităţi personale și inecienţa garanţiei.
Norme de instalare:
- aceste centrale nu pot instalate în dormitoa-
re sau în încăperile cu destinaţie de baie sau
duș. Nu pot  montate nici în încăperi unde
sunt prezente hornuri deschise (șemineuri)
aux de aer propriu. De asemenea trebuie
să e instalate într-un mediu în care tempe-
ratura nu poate coborî sub 0° C. Nu lăsaţi să
e expuse centralele la agenţii atmosferici.
- Centralele cu cameră deschisă de tip B nu
trebuie e instalate în încăperi unde se
desfășoară activităţi comerciale, artizanale
sau industriale în care se utilizează produse
care pot produce vapori sau substanţe volatile
(de exemplu vapori de acizi, adezivi, vopsele,
solvenţi, combustibili), dar și pulberi (de
exemplu pulbere derivată din prelucrarea
lemnului, pulbere de carbon, de ciment etc.)
ce se pot dovedi dăunătoare pentru com-
ponentele aparatului și îi pot compromite
funcţionarea.
Atenţie: instalarea centralei pe perete, trebuie
garanteze o susţinere stabilă și ecace gene-
ratorului însuși.
Diblurile (furnizate în serie) în cazul în care
există o bridă de susţinere sau șablon de xare din
dotarea centralei trebuie e utilizate exclusiv
pentru fixarea acesteia pe perete; pot asigura
o suinere adecvată doar dacă sunt inserate
corect (în conformitate cu regulile tehnice de
bună credinţă) în pereţi construiţi din cărămidă
plină sau semiplină. În cazul în care pereţi sunt
realizaţi din cărămizi sau blocuri forate, pereţi
despărţitori cu caracter static limitat, sau oricum
din zidării diferite de cele indicate, este necesar
efectui o vericare stati prelimina a
sistemului de susţinere.
N.B.: șuruburile pentru diblul cu cap hexago-
nal prezente în blister, trebuie e utilizate
exclusiv pentru xarea respectivei bride de
susţinere pe perete.
Aceste centrale au rol de încălzire a apei la o
temperatură mai mică celei de erbere la presiune
atmosferică.
Trebuie să e branșate la o instalaţie de încălzire
și la o reţea de distribuţie a apei menajere adec-
vată prestaţiilor și puterii lor.
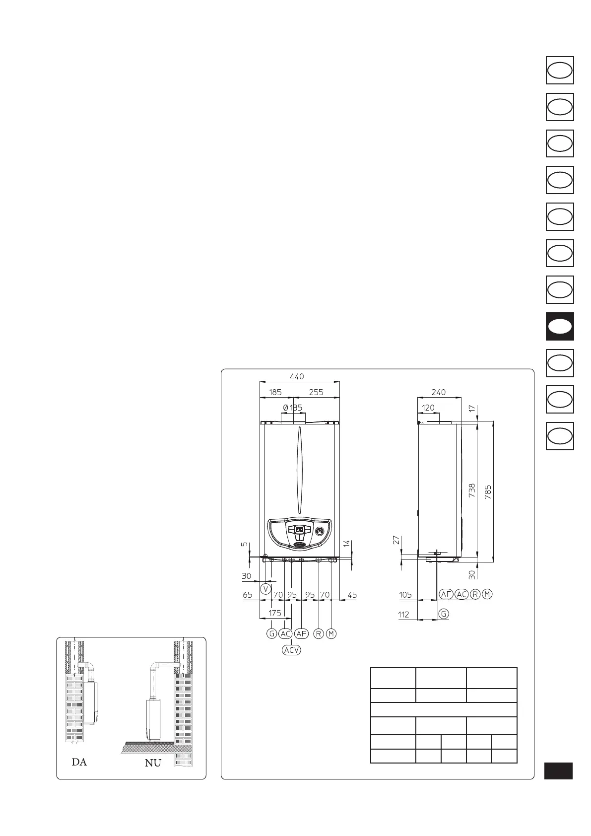
1.2 DIMENSIUNI PRINCIPALE.
Fig. 1-2
Fig. 1-1
Legendă:
G - Alimentare gaz
AC - Ieșire apă caldă menajeră
ACV - Intrare apă caldă menajeră kit
supapă solară (Opţional)
AF - Intrare apă rece menajeră
R - Retur instalaţie
M - Tur instalaţie
V - Racord electric
N.B.: grup racord (opţional)
Înălţime
(mm)
Lăţime
(mm)
Adâncime
(mm)
785 440 240
Prinderi
Gaz Apă menajeră Instalaţie
G AC AF R M
3/4” 1/2” 1/2” 3/4” 3/4”

Other manuals for Immergas MINI NIKE 3 E

Related product manuals