EasyManua.ls Logo

Immergas MINI NIKE 3 E - Page 180

Immergas MINI NIKE 3 E
Print Icon
To Next Page IconTo Next Page
To Next Page IconTo Next Page
To Previous Page IconTo Previous Page
To Previous Page IconTo Previous Page
Loading...
178
TR
SI
CZ
HU
RO
IE
RU
PL
SK
ES
UA
1


1.1    
.
 Mini Nike 24 3 E  -
   ; 
   
    
, .
    
   ,  -
     .
    -
  (. 1-1).
    -
   
 Immergas.   -
   ,
  -
 .   MiniNike243E,
 
 – ,  (GPL),  
     ’,  -
 ’  (  ,
   -
, ,  
   ,
    
    ).
  , 
  ; 
   . -
 (, , 
, , .)
 ,    
,   .  
    ,
    
 ;
  3  
    . 
      
  -
  ’ . 
  ,  
   .  
   
(, , , , ).
   
  ,  
     
   ( 
 ’     ), 
  ; 
    ,
- 
,  
.
  ,  -
      -
    (,
   Immergas,  
    
  ).   
   -  
 .   -
    
      .
 :
-   
   
.     
   
  . 
   
   0°C.  
    .
-      B  -
  , 
 ,   -
 ,   
   (., 
, , , , ,
),   (.,  
, , ,
),     -
     .
:     
    .
 ( ) -
    
     
  ;  
   ,  -
  (  )
      .
     
,   ,
, - ,  
 , 
    -
 .
:     -
 ,   
 ,  
  
  .
    
   ,  
   .
 
    , 
    -
.
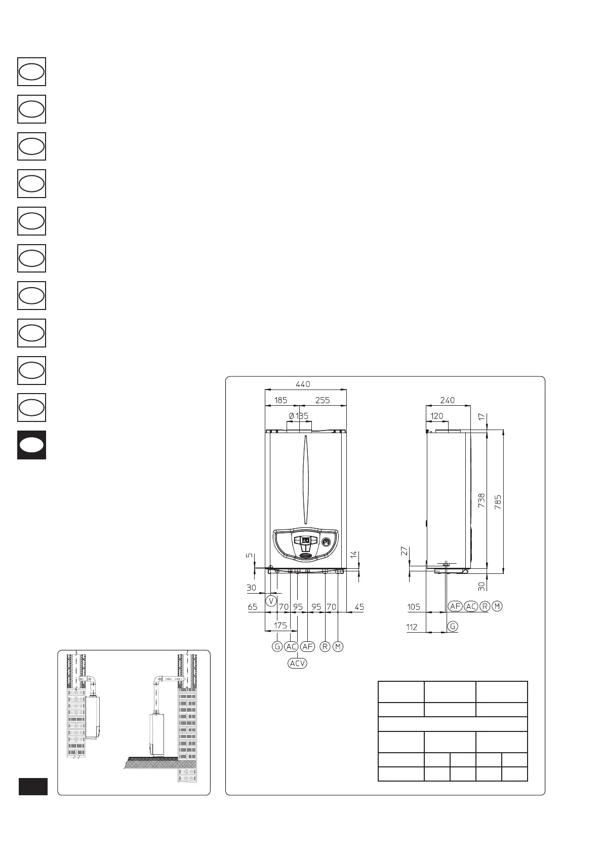
1.2  .
. 1-2
. 1-1
 :
G -  
AC -    
ACV -     -
     (
 )
AF -     -
 
R -     
M -
  ()  
V -  
:  
(  ).

()

()

()
785 440 240
’
 




G AC AF R M
3/4” 1/2” 1/2” 3/4” 3/4”
ПРАВИЛЬНО
НЕПРАВИЛЬНО

Other manuals for Immergas MINI NIKE 3 E

Related product manuals