EasyManua.ls Logo

Immergas VICTRIX PRO V2 EU - Page 41

Immergas VICTRIX PRO V2 EU
144 pages
Print Icon
To Next Page IconTo Next Page
To Next Page IconTo Next Page
To Previous Page IconTo Previous Page
To Previous Page IconTo Previous Page
Loading...
VICTRIX PRO V2 EU
41
Technical note:
Having the flue exhaust separated and a
INAIL safety devices kit for each generator,
you can also make mixed sets with VICTRIX
PRO V2 Eu generators having different
power outputs.
It is not possible to use ue manifolds for
boilers in set conguration.
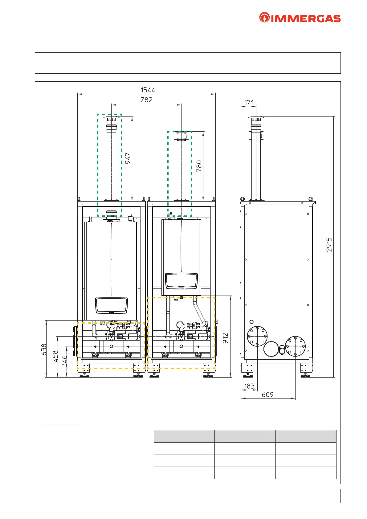
14.4 DIMENSIONS 2 CABINET KIT ALONGSIDE VICTRIX PRO V2 EU
IN MIXED OR HOMOGENEOUS SET
A
B
A
C
Ref. Position Code KIT Quantity
A 3.033681 N° 2
B 3.032714 N° 1
C 3.024295 N° 1

Related product manuals