EasyManua.ls Logo

Immergas VICTRIX PRO V2 EU - Page 9

Immergas VICTRIX PRO V2 EU
144 pages
Print Icon
To Next Page IconTo Next Page
To Next Page IconTo Next Page
To Previous Page IconTo Previous Page
To Previous Page IconTo Previous Page
Loading...
VICTRIX PRO V2 100 - 120 - 150 EU
9
Model
VICTRIX PRO V2 150 EU
System ow
M
1" 1/2
System return
R
1" 1/2
Gas Supply
G
1"
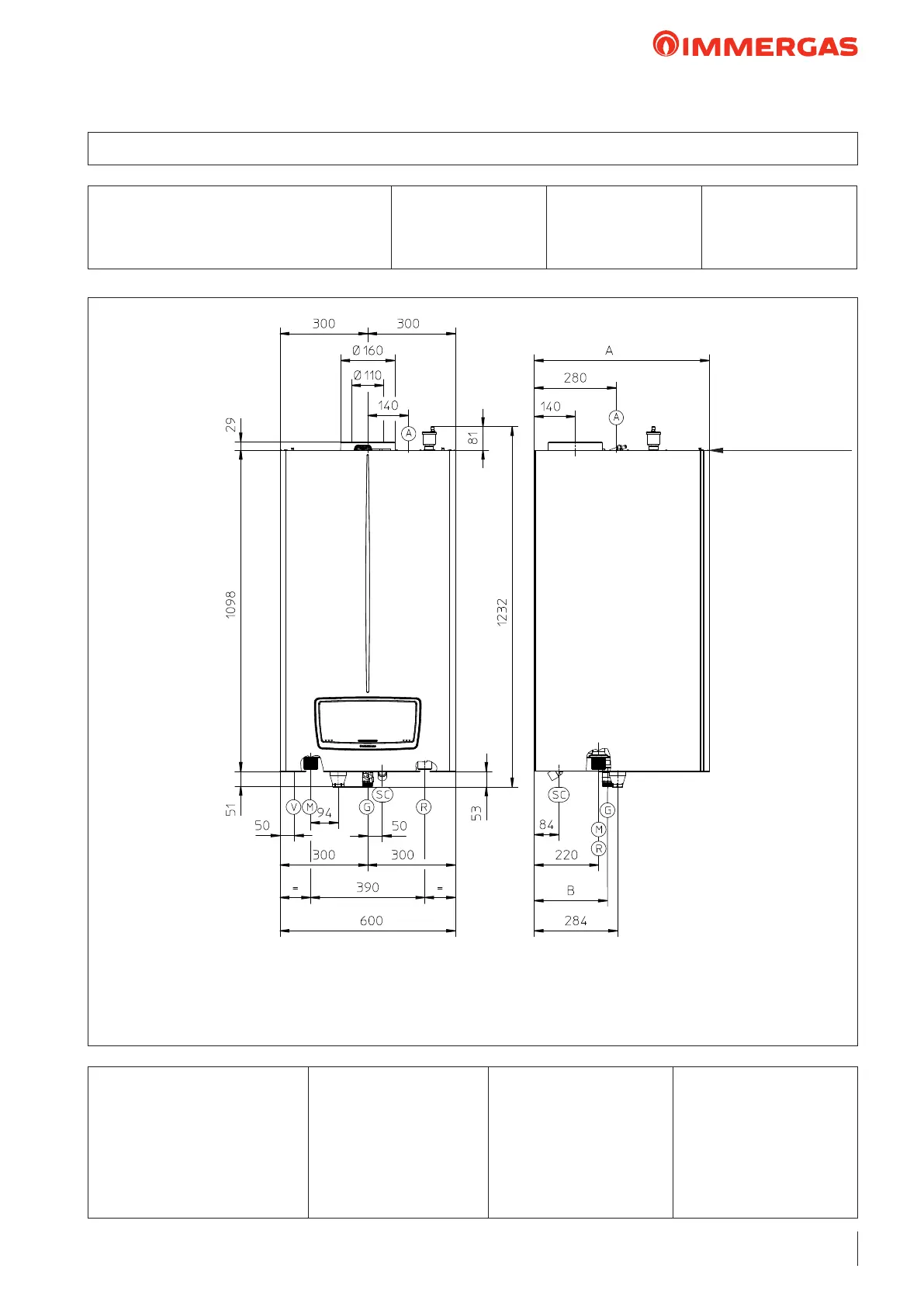
3.2 VICTRIX PRO V2 150 EU MAIN DIMENSIONS
Cover upper line
Model
VICTRIX PRO V2 150 EU
Height mm
1098 (1232)
Width mm
600
Depth mm
627
SC = Condensate drain Ø 25 mm

Related product manuals