EasyManua.ls Logo

Immergas VICTRIX PRO V2 EU - Page 8

Immergas VICTRIX PRO V2 EU
144 pages
Print Icon
To Next Page IconTo Next Page
To Next Page IconTo Next Page
To Previous Page IconTo Previous Page
To Previous Page IconTo Previous Page
Loading...
VICTRIX PRO V2 100 - 120 - 150 EU
8
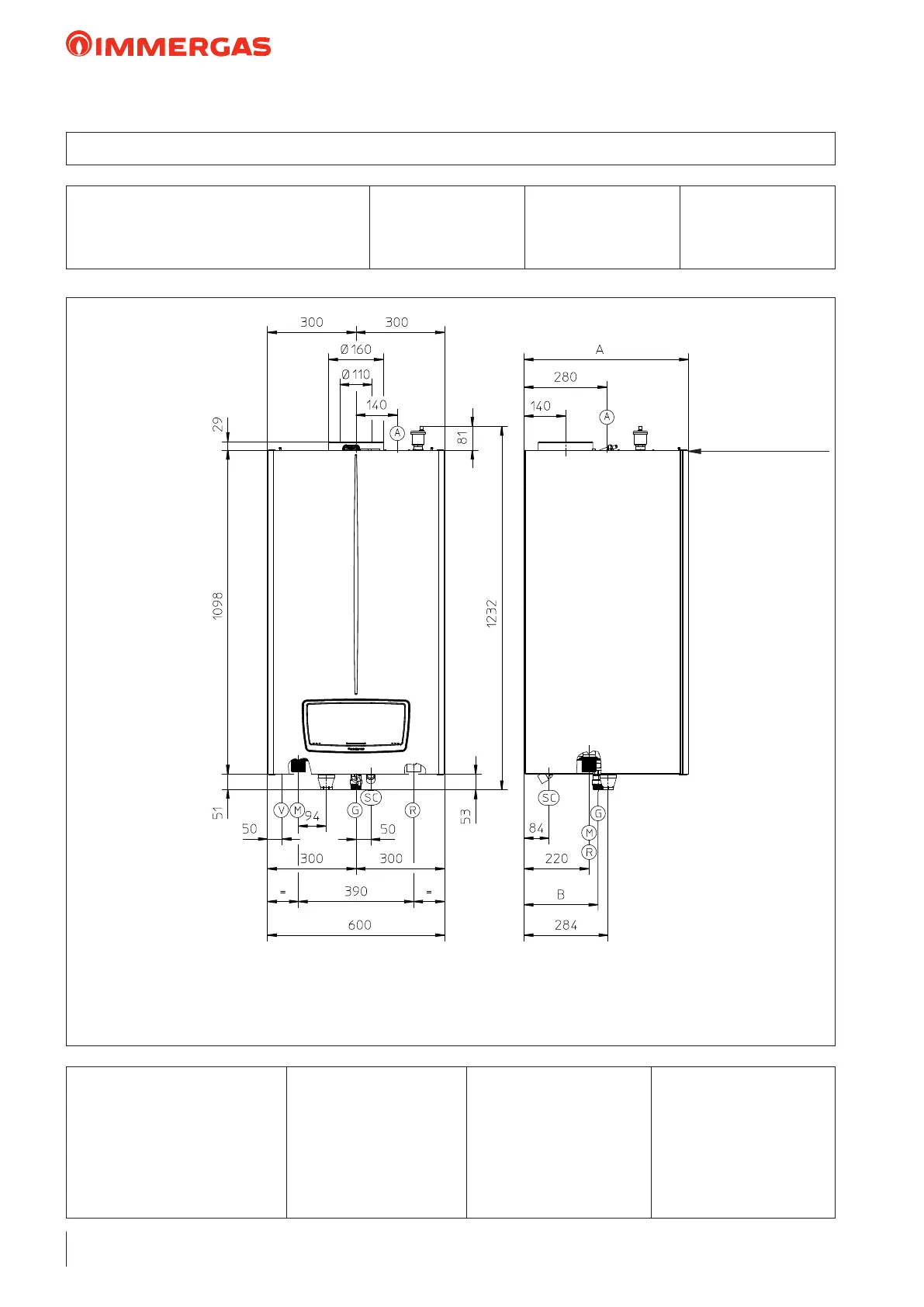
3.1 VICTRIX PRO V2 100  120 EU MAIN DIMENSIONS
Model
VICTRIX PRO V2 100 EU
VICTRIX PRO V2 120 EU
System ow
M
1" 1/2
1" 1/2
System return
R
1" 1/2
1" 1/2
Gas Supply
G
1"
1"
SC = Condensate drain Ø 25 mm
Cover upper line
Model
VICTRIX PRO V2 100 - 120 EU
Height mm
1098 (1232)
Width mm
600
Depth mm
557

Related product manuals