EasyManua.ls Logo

Immergas ZEUS Mini - Page 14

Immergas ZEUS Mini
88 pages
Print Icon
To Next Page IconTo Next Page
To Next Page IconTo Next Page
To Previous Page IconTo Previous Page
To Previous Page IconTo Previous Page
Loading...







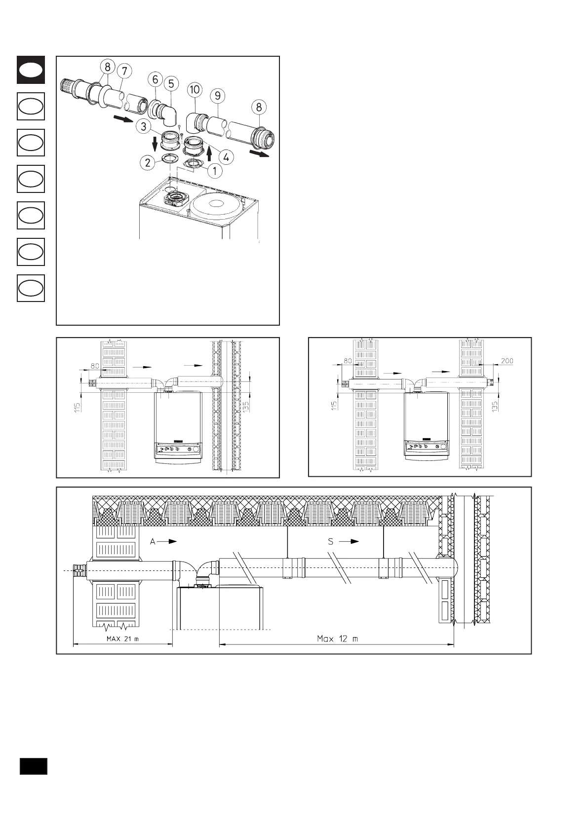
El Kit comprende:
1 - Junta de expulsión (1)
1 - Junta hermética de la brida (2)
1 - Brida hembra de aspiración (3)
1 - Brida hembra de expulsión (4)
1 - Codo 90° Ø 80 (5)
1 - Tapón de cierre del tubo (6)
1 - Terminal de aspiración Ø 80 aislado (7)
3 - Caperuzas (8)
1 - Tubo de expulsión Ø 80 aislado (9)
1 - Codo 90° concéntrico Ø 80/125 (10)



 





 



















 

limitar la longitud del conducto a 12 metros.


















    



Related product manuals