EasyManua.ls Logo

Immergas ZEUS Mini - Page 13

Immergas ZEUS Mini
88 pages
Print Icon
To Next Page IconTo Next Page
To Next Page IconTo Next Page
To Previous Page IconTo Previous Page
To Previous Page IconTo Previous Page
Loading...








 




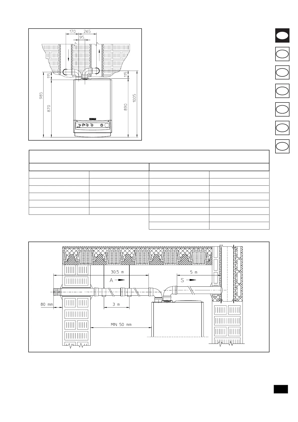
accesorios
o componentes mixtos

longitud equivalente

 

limitar la longitud del conducto a 5 metros.









 








 




* El conducto de aspiración puede alargarse 2,5 metros si se elimina el
codo de expulsión, 2 metros si se elimina el codo de aspiración y 4,5
metros si se eliminan ambos codos.

















Related product manuals