EasyManua.ls Logo

Immergas ZEUS Mini - Page 17

Immergas ZEUS Mini
88 pages
Print Icon
To Next Page IconTo Next Page
To Next Page IconTo Next Page
To Previous Page IconTo Previous Page
To Previous Page IconTo Previous Page
Loading...
๎˜ด๎˜ช
๎˜ค๎˜ป
๎˜ฑ๎˜ญ
๎˜ฆ๎˜ด
๎˜’๎˜–
๎˜ช๎˜ฆ
๎˜ณ๎˜ฐ
๎˜ฉ๎˜ถ
๎˜ถ๎˜ด๎˜ถ๎˜ข๎˜ณ๎˜ช๎˜ฐ
๎Ÿฉ๎˜๎˜ช๎˜ฏ๎˜ด๎˜ต๎˜ณ๎˜ถ๎˜ค๎˜ค๎˜ช๎˜ฐ๎˜ฏ๎˜ฆ๎˜ด๎˜๎˜ฅ๎˜ฆ๎˜๎˜ถ๎˜ด๎˜ฐ๎˜๎˜บ๎˜๎˜ฎ๎˜ข๎˜ฏ๎˜ต๎˜ฆ๎˜ฏ๎˜ช๎˜ฎ๎˜ช๎˜ฆ
๎˜ญ๎™Š๎™Ž๎™‘๎™Š๎™†๎™›๎™‚๎˜๎™š๎˜๎™Ž๎™‚๎™๎™•๎™†๎™๎™Š๎™Ž๎™Š๎™†๎™๎™•๎™๎˜
๎˜ข๎™•๎™†๎™๎™„๎™Š๎›˜๎™๎˜๎˜๎˜ฆ๎™๎˜๎™–๎™”๎™–๎™‚๎™“๎™Š๎™๎˜๎™…๎™†๎™ƒ๎™†๎˜๎™‘๎™๎™“๎˜๎™๎™†๎™š๎˜๎™„๎™๎™๎™•๎™“๎™‚๎™•๎™‚๎™“๎˜๎™‚๎˜๎™–๎™๎˜๎™”๎™†๎™“๎™—๎™Š๎™„๎™Š๎™๎˜๎™•๎›๎™„๎™๎™Š๎™„๎™๎˜๎™„๎™–๎™‚๎™๎™Š๎™ญ๎™„๎™‚๎™…๎™๎˜๎™‘๎™‚๎™“๎™‚๎˜
๎™’๎™–๎™†๎˜๎™“๎™†๎™‚๎™๎™Š๎™„๎™†๎˜๎™–๎™๎™‚๎˜๎™Š๎™๎™•๎™†๎™“๎™—๎™†๎™๎™„๎™Š๎›˜๎™๎˜๎™‚๎™๎™–๎™‚๎™๎˜๎™…๎™†๎˜๎™Ž๎™‚๎™๎™•๎™†๎™๎™Š๎™Ž๎™Š๎™†๎™๎™•๎™๎˜๎™…๎™†๎™๎˜๎™”๎™Š๎™”๎™•๎™†๎™Ž๎™‚๎˜๎™•๎›๎™“๎™Ž๎™Š๎™„๎™๎˜๎™š๎˜๎™–๎™๎™‚๎˜
๎™—๎™†๎™“๎™Š๎™ญ๎™„๎™‚๎™„๎™Š๎›˜๎™๎˜๎™ƒ๎™Š๎™†๎™๎™‚๎™๎˜๎™…๎™†๎˜๎™๎™‚๎˜๎™„๎™๎™Ž๎™ƒ๎™–๎™”๎™•๎™Š๎›˜๎™๎˜๎˜‰๎™ฉ๎™‘๎™“๎™–๎™†๎™ƒ๎™‚๎˜๎™…๎™†๎˜๎™‰๎™–๎™Ž๎™๎™”๎™ท๎˜Š๎˜
๎˜ฆ๎™”๎™•๎™๎˜๎™‘๎™†๎™“๎™Ž๎™Š๎™•๎™†๎˜๎™Ž๎™‚๎™๎™•๎™†๎™๎™†๎™“๎˜๎™๎™๎™”๎˜๎™๎™Š๎™—๎™†๎™๎™†๎™”๎˜๎™…๎™†๎˜๎™”๎™†๎™ˆ๎™–๎™“๎™Š๎™…๎™‚๎™…๎˜๎˜๎™“๎™†๎™๎™…๎™Š๎™Ž๎™Š๎™†๎™๎™•๎™๎˜๎™š๎˜๎™‡๎™–๎™๎™„๎™Š๎™๎™๎™‚๎™Ž๎™Š๎™†๎™๎™•๎™๎˜
๎™‘๎™“๎™๎™‘๎™Š๎™๎™”๎˜๎™…๎™†๎˜๎™๎™‚๎˜๎™„๎™‚๎™๎™…๎™†๎™“๎™‚๎˜
๎˜ด๎™–๎™ˆ๎™†๎™“๎™Š๎™Ž๎™๎™”๎˜๎™†๎™”๎™•๎™Š๎™‘๎™–๎™๎™‚๎™“๎˜ ๎™„๎™๎™๎™•๎™“๎™‚๎™•๎™๎™”๎˜ ๎™‚๎™๎™–๎™‚๎™๎™†๎™”๎˜ ๎™…๎™†๎˜๎™๎™Š๎™Ž๎™‘๎™Š๎™†๎™›๎™‚๎˜๎™š๎˜๎™Ž๎™‚๎™๎™•๎™†๎™๎™Š๎™Ž๎™Š๎™†๎™๎™•๎™๎˜ ๎™„๎™๎™๎˜๎™–๎™๎˜
๎™•๎›๎™„๎™๎™Š๎™„๎™๎˜๎™…๎™†๎˜๎™๎™‚๎˜๎™›๎™๎™๎™‚๎˜
๎˜ข๎™…๎™—๎™†๎™“๎™•๎™†๎™๎™„๎™Š๎™‚๎™”๎˜๎™ˆ๎™†๎™๎™†๎™“๎™‚๎™๎™†๎™”๎˜
๎˜ฏ๎™๎˜๎™†๎™™๎™‘๎™๎™๎™†๎™“๎˜๎™๎™‚๎˜ ๎™„๎™‚๎™๎™…๎™†๎™“๎™‚๎˜๎™„๎™๎™๎™ˆ๎™‚๎™๎™•๎™†๎˜ ๎™‚๎™๎˜๎™—๎™‚๎™‘๎™๎™“๎˜๎™…๎™Š๎™“๎™†๎™„๎™•๎™๎˜๎™…๎™†๎™๎˜๎™‘๎™๎™‚๎™๎™๎˜๎™…๎™†๎˜๎™„๎™๎™„๎™„๎™Š๎›˜๎™๎˜ ๎™…๎™†๎˜๎™๎™‚๎˜
๎™„๎™๎™„๎™Š๎™๎™‚๎˜
๎˜ช๎™Ž๎™‘๎™†๎™…๎™Š๎™“๎˜๎™†๎™๎˜๎™–๎™”๎™๎˜๎™…๎™†๎˜๎™๎™‚๎˜๎™„๎™‚๎™๎™…๎™†๎™“๎™‚๎˜๎™‚๎˜๎™๎™Š๎›—๎™๎™”๎˜๎™š๎˜๎™‚๎˜๎™‚๎™…๎™–๎™๎™•๎™๎™”๎˜๎™Š๎™๎™†๎™™๎™‘๎™†๎™“๎™•๎™๎™”๎˜
๎˜ฏ๎™๎˜๎™•๎™๎™„๎™‚๎™“๎˜๎™†๎™๎˜๎™•๎™†๎™“๎™Ž๎™Š๎™๎™‚๎™๎˜๎™…๎™†๎˜๎™†๎™—๎™‚๎™„๎™–๎™‚๎™„๎™Š๎›˜๎™๎˜๎™‰๎™–๎™Ž๎™๎™”๎˜๎˜‰๎™”๎™Š๎˜๎™†๎™™๎™Š๎™”๎™•๎™†๎˜Š๎˜๎™‘๎™๎™“๎™’๎™–๎™†๎˜๎™‘๎™–๎™†๎™…๎™†๎˜๎™‚๎™๎™„๎™‚๎™๎™›๎™‚๎™“๎˜
๎™•๎™†๎™Ž๎™‘๎™†๎™“๎™‚๎™•๎™–๎™“๎™‚๎™”๎˜๎™†๎™๎™†๎™—๎™‚๎™…๎™‚๎™”๎˜œ
๎˜ฑ๎™๎™“๎˜๎™Ž๎™๎™•๎™Š๎™—๎™๎™”๎˜๎™…๎™†๎˜๎™”๎™†๎™ˆ๎™–๎™“๎™Š๎™…๎™‚๎™…๎˜๎™‰๎™‚๎™š๎˜๎™’๎™–๎™†๎˜๎™—๎™†๎™“๎™Š๎™ญ๎™„๎™‚๎™“๎˜๎™”๎™Š๎˜๎™†๎™๎˜๎™•๎™†๎™“๎™Ž๎™Š๎™๎™‚๎™๎˜๎™„๎™๎™๎™„๎›๎™๎™•๎™“๎™Š๎™„๎™๎˜๎™…๎™†๎˜๎™‚๎™”๎™‘๎™Š๎™“๎™‚๎™„๎™Š๎›˜๎™๎˜
๎™…๎™†๎˜๎™‚๎™Š๎™“๎™†๎˜๎™†๎™™๎™‘๎™–๎™๎™”๎™Š๎›˜๎™๎˜๎™…๎™†๎˜๎™‰๎™–๎™Ž๎™๎™”๎˜๎˜‰๎™”๎™Š๎˜๎™†๎™™๎™Š๎™”๎™•๎™†๎˜Š๎˜๎™†๎™”๎™•๎›ˆ๎˜๎™๎™ƒ๎™”๎™•๎™“๎™–๎™Š๎™…๎™๎˜๎˜‰๎™‚๎™–๎™๎˜๎™•๎™†๎™Ž๎™‘๎™๎™“๎™‚๎™๎™Ž๎™†๎™๎™•๎™†๎˜Š๎˜
๎˜ด๎™Š๎˜๎™”๎™†๎˜๎™๎™‘๎™•๎™‚๎˜๎™‘๎™๎™“๎˜๎™๎™‚๎˜๎™…๎™†๎™”๎™‚๎™„๎™•๎™Š๎™—๎™‚๎™„๎™Š๎›˜๎™๎˜๎™‘๎™“๎™๎™—๎™Š๎™”๎™Š๎™๎™๎™‚๎™๎˜๎™…๎™†๎˜๎™๎™‚๎˜๎™„๎™‚๎™๎™…๎™†๎™“๎™‚๎˜๎™†๎™”๎˜๎™๎™†๎™„๎™†๎™”๎™‚๎™“๎™Š๎™๎˜›
๎˜ ๎™‚๎˜Š๎˜ ๎™—๎™‚๎™„๎™Š๎™‚๎™“๎˜๎™†๎™๎˜๎™„๎™Š๎™“๎™„๎™–๎™Š๎™•๎™๎˜๎™…๎™†๎™๎˜๎™‚๎™ˆ๎™–๎™‚๎˜๎˜๎™”๎™‚๎™๎™—๎™๎˜๎™”๎™Š๎˜๎™„๎™๎™๎™•๎™Š๎™†๎™๎™†๎˜๎™‚๎™๎™•๎™Š๎™„๎™๎™๎™ˆ๎™†๎™๎™‚๎™๎™•๎™†๎˜œ
๎˜ ๎™ƒ๎˜Š๎˜๎™…๎™†๎™”๎™„๎™๎™๎™†๎™„๎™•๎™‚๎™“๎˜๎™๎™‚๎˜๎™„๎™‚๎™๎™…๎™†๎™“๎™‚๎˜๎™…๎™†๎˜๎™๎™‚๎˜๎™†๎™๎™†๎™„๎™•๎™“๎™Š๎™„๎™Š๎™…๎™‚๎™…๎˜๎˜๎™†๎™๎˜๎™‚๎™ˆ๎™–๎™‚๎˜๎™š๎˜๎™†๎™๎˜๎™ˆ๎™‚๎™”๎˜
๎˜ด๎™Š๎˜๎™”๎™†๎˜๎™†๎™‡๎™†๎™„๎™•๎›ž๎™‚๎™๎˜๎™๎™ƒ๎™“๎™‚๎™”๎˜๎™๎˜๎™•๎™‚๎™“๎™†๎™‚๎™”๎˜๎™…๎™†๎˜๎™Ž๎™‚๎™๎™•๎™†๎™๎™Š๎™Ž๎™Š๎™†๎™๎™•๎™๎˜๎™„๎™†๎™“๎™„๎™‚๎˜๎™…๎™†๎˜๎™๎™๎™”๎˜๎™„๎™๎™๎™…๎™–๎™„๎™•๎™๎™”๎˜๎™๎˜๎™†๎™๎˜๎™๎™๎™”๎˜
๎™…๎™Š๎™”๎™‘๎™๎™”๎™Š๎™•๎™Š๎™—๎™๎™”๎˜๎™…๎™†๎˜๎™†๎™™๎™‘๎™–๎™๎™”๎™Š๎›˜๎™๎˜๎™…๎™†๎˜๎™‰๎™–๎™Ž๎™๎™”๎˜๎™š๎˜๎™”๎™–๎™”๎˜๎™‚๎™„๎™„๎™†๎™”๎™๎™“๎™Š๎™๎™”๎˜๎˜๎™”๎™†๎˜๎™…๎™†๎™ƒ๎™†๎˜๎™‚๎™‘๎™‚๎™ˆ๎™‚๎™“๎˜๎™๎™‚๎˜๎™„๎™‚๎™๎™…๎™†๎™“๎™‚๎˜๎˜
๎˜ถ๎™๎™‚๎˜๎™—๎™†๎™›๎˜๎™•๎™†๎™“๎™Ž๎™Š๎™๎™‚๎™…๎™๎™”๎˜๎™๎™๎™”๎˜๎™•๎™“๎™‚๎™ƒ๎™‚๎™‹๎™๎™”๎˜๎™‰๎™‚๎™š๎˜๎™’๎™–๎™†๎˜๎™๎™๎™‚๎™Ž๎™‚๎™“๎˜๎™‚๎˜๎™–๎™๎˜๎™•๎›๎™„๎™๎™Š๎™„๎™๎˜๎™„๎™‚๎™๎™Š๎™ญ๎™„๎™‚๎™…๎™๎˜๎™‘๎™‚๎™“๎™‚๎˜๎™’๎™–๎™†๎˜
๎™Š๎™๎™”๎™‘๎™†๎™„๎™„๎™Š๎™๎™๎™†๎˜๎™…๎™Š๎™„๎™‰๎™๎™”๎˜๎™„๎™๎™๎™…๎™–๎™„๎™•๎™๎™”๎˜๎™š๎˜๎™…๎™Š๎™”๎™‘๎™๎™”๎™Š๎™•๎™Š๎™—๎™๎™”๎˜
๎˜ฏ๎™๎˜๎™๎™Š๎™Ž๎™‘๎™Š๎™‚๎™“๎˜๎™†๎™๎˜๎™‚๎™‘๎™‚๎™“๎™‚๎™•๎™๎˜๎™๎˜๎™”๎™–๎™”๎˜๎™„๎™๎™Ž๎™‘๎™๎™๎™†๎™๎™•๎™†๎™”๎˜๎™„๎™๎™๎˜๎™”๎™–๎™”๎™•๎™‚๎™๎™„๎™Š๎™‚๎™”๎˜๎™‡๎›ˆ๎™„๎™Š๎™๎™Ž๎™†๎™๎™•๎™†๎˜๎™Š๎™๎™ฎ๎™‚๎™Ž๎™‚
๎˜Ž
๎™ƒ๎™๎™†๎™”๎˜
๎˜ฏ๎™๎˜๎™…๎™†๎™‹๎™‚๎™“๎˜๎™”๎™–๎™”๎™•๎™‚๎™๎™„๎™Š๎™‚๎™”๎˜๎™Š๎™๎™ฎ๎™‚๎™Ž๎™‚๎™ƒ๎™๎™†๎™”๎˜๎™๎™Š๎˜๎™†๎™๎™—๎™‚๎™”๎™†๎™”๎˜๎™—๎™‚๎™„๎›“๎™๎™”๎˜๎™…๎™†๎˜๎™”๎™–๎™”๎™•๎™‚๎™๎™„๎™Š๎™‚๎™”๎˜๎™Š๎™๎™ฎ๎™‚๎™Ž๎™‚๎™ƒ๎™๎™†๎™”๎˜๎™†๎™๎˜๎™†๎™๎˜
๎™๎™๎™„๎™‚๎™๎˜๎™†๎™๎˜๎™’๎™–๎™†๎˜๎™†๎™”๎™•๎›ˆ๎˜๎™Š๎™๎™”๎™•๎™‚๎™๎™‚๎™…๎™‚๎˜๎™๎™‚๎˜๎™„๎™‚๎™๎™…๎™†๎™“๎™‚๎˜
๎™ด๎˜ ๎˜ข๎™•๎™†๎™๎™„๎™Š๎›˜๎™๎˜๎˜๎˜ฑ๎™‚๎™“๎™‚๎˜๎™Ž๎™‚๎™๎™†๎™‹๎™‚๎™“๎˜ ๎™–๎™๎˜ ๎™‚๎™‘๎™‚๎™“๎™‚๎™•๎™๎˜ ๎™’๎™–๎™†๎˜ ๎™–๎™•๎™Š๎™๎™Š๎™›๎™‚๎˜๎™†๎™๎™†๎™“๎™ˆ๎›“๎™‚๎˜ ๎™†๎™๎›๎™„๎™•๎™“๎™Š๎™„๎™‚๎˜ ๎™‰๎™‚๎™š๎˜๎™’๎™–๎™†๎˜
๎™„๎™–๎™Ž๎™‘๎™๎™Š๎™“๎˜๎™„๎™๎™๎˜๎™‚๎™๎™ˆ๎™–๎™๎™‚๎™”๎˜๎™“๎™†๎™ˆ๎™๎™‚๎™”๎˜๎™‡๎™–๎™๎™…๎™‚๎™Ž๎™†๎™๎™•๎™‚๎™๎™†๎™”๎˜›
๎˜Ž๎˜ ๎™๎™๎˜๎™•๎™๎™„๎™‚๎™“๎˜๎™†๎™๎˜๎™‚๎™‘๎™‚๎™“๎™‚๎™•๎™๎˜๎™„๎™๎™๎˜๎™‘๎™‚๎™“๎™•๎™†๎™”๎˜๎™…๎™†๎™๎˜๎™„๎™–๎™†๎™“๎™‘๎™๎˜๎™Ž๎™๎™‹๎™‚๎™…๎™‚๎™”๎˜๎™๎˜๎™‰๎›ž๎™Ž๎™†๎™…๎™‚๎™”๎˜๎™๎˜๎™”๎™Š๎˜๎™”๎™†๎˜๎™•๎™Š๎™†๎™๎™†๎™๎˜
๎™๎™๎™”๎˜๎™‘๎™Š๎™†๎™”๎˜๎™…๎™†๎™”๎™๎™–๎™…๎™๎™”๎˜œ
๎˜Ž๎˜ ๎™๎™๎˜๎™•๎™Š๎™“๎™‚๎™“๎˜๎™…๎™†๎˜๎™๎™๎™”๎˜ ๎™„๎™‚๎™ƒ๎™๎™†๎™”๎˜ ๎™†๎™๎›๎™„๎™•๎™“๎™Š๎™„๎™๎™”๎˜ ๎™๎™Š๎˜ ๎™…๎™†๎™‹๎™‚๎™“๎˜๎™๎™‚๎˜๎™„๎™‚๎™๎™…๎™†๎™“๎™‚๎˜๎™†๎™™๎™‘๎™–๎™†๎™”๎™•๎™‚๎˜ ๎™‚๎˜๎™๎™๎™”๎˜ ๎™‚๎™ˆ๎™†๎™๎™•๎™†๎™”๎˜
๎™‚๎™•๎™Ž๎™๎™”๎™‡๎›๎™“๎™Š๎™„๎™๎™”๎˜๎˜‰๎™๎™๎™–๎™—๎™Š๎™‚๎˜๎˜๎™”๎™๎™๎˜๎˜๎™†๎™•๎™„๎˜๎˜Š๎˜œ๎˜
๎˜Ž๎˜ ๎™†๎™๎˜๎™„๎™‚๎™ƒ๎™๎™†๎˜๎™…๎™†๎˜๎™‚๎™๎™Š๎™Ž๎™†๎™๎™•๎™‚๎™„๎™Š๎›˜๎™๎˜๎™…๎™†๎™๎˜๎™‚๎™‘๎™‚๎™“๎™‚๎™•๎™๎˜๎™๎™๎˜๎™…๎™†๎™ƒ๎™†๎˜๎™”๎™†๎™“๎˜๎™”๎™–๎™”๎™•๎™Š๎™•๎™–๎™Š๎™…๎™๎˜๎™‘๎™๎™“๎˜๎™†๎™๎˜๎™–๎™”๎™–๎™‚๎™“๎™Š๎™๎˜œ
๎˜Ž๎˜ ๎™†๎™๎˜๎™„๎™‚๎™”๎™๎˜๎™…๎™†๎˜๎™…๎™‚๎›—๎™‚๎™“๎™”๎™†๎˜ ๎™†๎™๎˜๎™„๎™‚๎™ƒ๎™๎™†๎˜๎˜๎™‚๎™‘๎™‚๎™ˆ๎™‚๎™“๎˜๎™๎™‚๎˜๎™„๎™‚๎™๎™…๎™†๎™“๎™‚๎˜๎™š๎˜๎™…๎™Š๎™“๎™Š๎™ˆ๎™Š๎™“๎™”๎™†๎˜๎™†๎™™๎™„๎™๎™–๎™”๎™Š๎™—๎™‚๎™Ž๎™†๎™๎™•๎™†๎˜๎™‚๎˜
๎™‘๎™†๎™“๎™”๎™๎™๎™‚๎™๎˜๎™‘๎™“๎™๎™‡๎™†๎™”๎™Š๎™๎™๎™‚๎™๎™Ž๎™†๎™๎™•๎™†๎˜๎™„๎™‚๎™๎™Š๎™ญ๎™„๎™‚๎™…๎™๎˜๎™‘๎™‚๎™“๎™‚๎˜๎™†๎™‡๎™†๎™„๎™•๎™–๎™‚๎™“๎˜๎™”๎™–๎˜๎™”๎™–๎™”๎™•๎™Š๎™•๎™–๎™„๎™Š๎›˜๎™๎˜œ
๎˜Ž๎˜ ๎™”๎™Š๎˜๎™”๎™†๎˜๎™…๎™†๎™„๎™Š๎™…๎™†๎˜๎™๎™๎˜๎™–๎™•๎™Š๎™๎™Š๎™›๎™‚๎™“๎˜๎™๎™‚๎˜๎™„๎™‚๎™๎™…๎™†๎™“๎™‚๎˜๎™…๎™–๎™“๎™‚๎™๎™•๎™†๎˜๎™–๎™๎˜๎™•๎™Š๎™†๎™Ž๎™‘๎™๎˜๎˜๎™†๎™”๎˜๎™„๎™๎™๎™—๎™†๎™๎™Š๎™†๎™๎™•๎™†๎˜๎™‘๎™๎™๎™†๎™“๎˜๎™†๎™๎˜
๎˜ฐ๎˜ง๎˜ง๎˜๎™†๎™๎˜๎™Š๎™๎™•๎™†๎™“๎™“๎™–๎™‘๎™•๎™๎™“๎˜๎™…๎™†๎˜๎™๎™‚๎˜๎™†๎™๎™†๎™„๎™•๎™“๎™Š๎™„๎™Š๎™…๎™‚๎™…๎˜
๎˜ป๎™†๎™–๎™”๎˜๎˜ฎ๎™Š๎™๎™Š๎˜๎˜Ž๎˜๎˜ต๎™‚๎™ƒ๎™๎™†๎™“๎™๎˜๎™…๎™†๎˜๎™Ž๎™‚๎™๎™…๎™๎™”๎˜
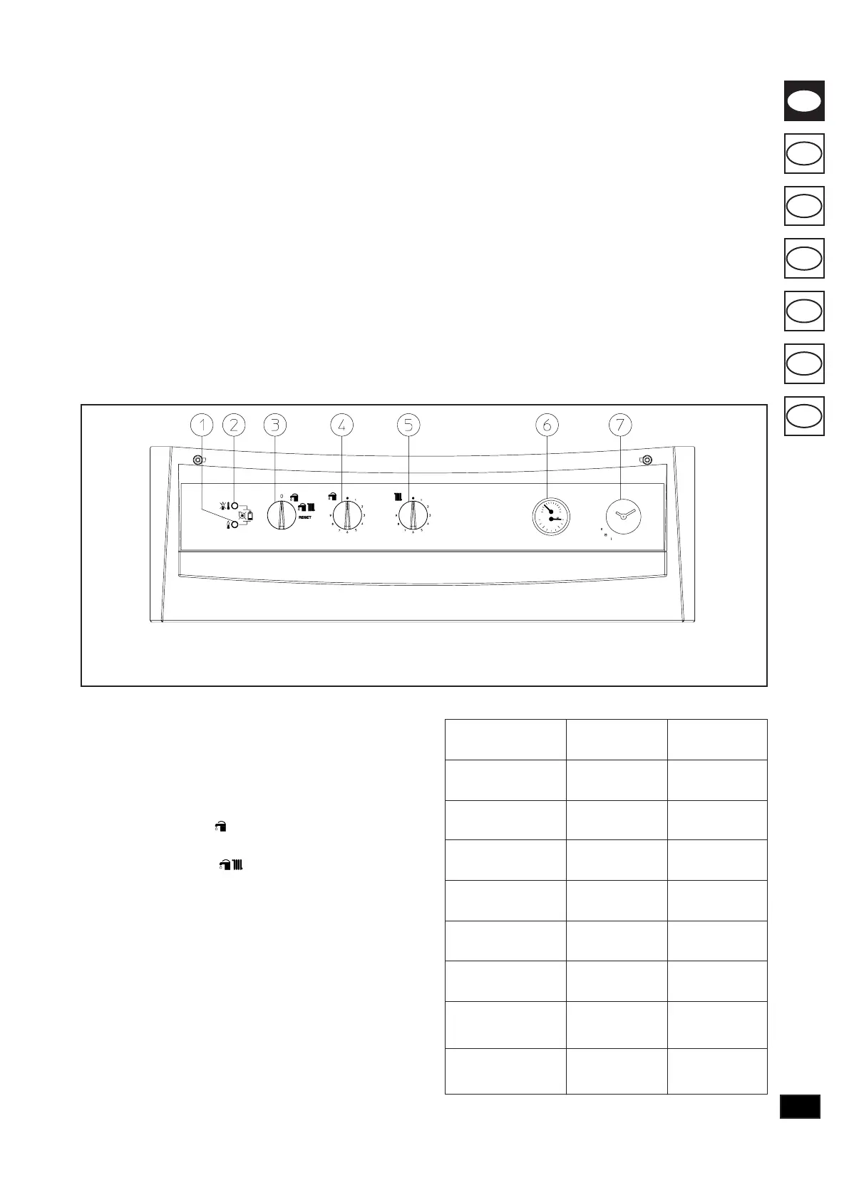
Leyenda:
1 - Testigo amarillo de presencia de llama
2 - Testigo rojo de indicaciรณn de fallos
3 - Interruptor 0-Sanitario-Sanitario y calefacciรณn-Reinicializaciรณn
4 - Selector temperatura agua caliente sanitaria
5 - Selector temperatura calefacciรณn
6 - Termo-manรณmetro caldera
7 - Reloj programador (opcional)
๎˜ฆ๎™๎™„๎™†๎™๎™…๎™Š๎™…๎™๎˜๎™…๎™†๎˜๎™๎™‚๎˜๎™„๎™‚๎™๎™…๎™†๎™“๎™‚๎˜๎˜๎˜ข๎™๎™•๎™†๎™”๎˜๎™…๎™†๎˜๎™†๎™๎™„๎™†๎™๎™…๎™†๎™“๎˜๎™๎™‚๎˜๎™„๎™‚๎™๎™…๎™†๎™“๎™‚๎˜๎™”๎™†๎˜๎™…๎™†๎™ƒ๎™†๎˜๎™„๎™๎™๎™•๎™“๎™๎™๎™‚๎™“๎˜๎™”๎™Š๎˜๎™†๎™๎˜
๎™”๎™Š๎™”๎™•๎™†๎™Ž๎™‚๎˜๎™†๎™”๎™•๎›ˆ๎˜๎™๎™๎™†๎™๎™๎˜๎™…๎™†๎˜๎™‚๎™ˆ๎™–๎™‚๎˜๎™š๎˜๎™๎™‚๎˜๎™‚๎™ˆ๎™–๎™‹๎™‚๎˜๎™…๎™†๎™๎˜๎™Ž๎™‚๎™๎›˜๎™Ž๎™†๎™•๎™“๎™๎˜๎˜‰๎˜’๎˜Š๎˜๎™Ž๎™‚๎™“๎™„๎™‚๎˜๎™–๎™๎™‚๎˜๎™‘๎™“๎™†๎™”๎™Š๎›˜๎™๎˜๎™…๎™†๎˜
๎˜’๎˜๎™‚๎˜๎˜’๎˜๎˜“๎˜๎™ƒ๎™‚๎™“๎˜
๎˜Ž๎˜๎˜ข๎™ƒ๎™“๎™Š๎™“๎˜๎™๎™‚๎˜๎™๎™๎™‚๎™—๎™†๎˜๎™…๎™†๎™๎˜๎™ˆ๎™‚๎™”๎˜๎™”๎™Š๎™•๎™–๎™‚๎™…๎™‚๎˜๎™‚๎™ˆ๎™–๎™‚๎™”๎˜๎™‚๎™“๎™“๎™Š๎™ƒ๎™‚๎˜๎™…๎™†๎˜๎™๎™‚๎˜๎™„๎™‚๎™๎™…๎™†๎™“๎™‚๎˜
๎˜Ž๎˜๎˜ค๎™๎™๎™๎™„๎™‚๎™“๎˜๎™†๎™๎˜๎™Š๎™๎™•๎™†๎™“๎™“๎™–๎™‘๎™•๎™๎™“๎˜๎™ˆ๎™†๎™๎™†๎™“๎™‚๎™๎˜๎˜‰๎˜”๎˜Š๎˜๎™†๎™๎˜๎˜ด๎™‚๎™๎™Š๎™•๎™‚๎™“๎™Š๎™๎˜๎™๎˜๎˜ด๎™‚๎™๎™Š๎™•๎™‚๎™“๎™Š๎™๎˜๎™š๎˜๎˜ค๎™‚๎™๎™†๎™‡๎™‚๎™„๎™„๎™Š๎›˜๎™๎˜
๎˜ฏ๎˜ฐ๎˜ต๎˜ข๎˜›๎˜๎™–๎™๎™‚๎˜๎™—๎™†๎™›๎˜๎™”๎™Š๎™•๎™–๎™‚๎™…๎™๎˜๎™†๎™๎˜๎™Š๎™๎™•๎™†๎™“๎™“๎™–๎™‘๎™•๎™๎™“๎˜๎™ˆ๎™†๎™๎™†๎™“๎™‚๎™๎˜๎˜‰๎˜”๎˜Š๎˜๎™†๎™๎˜๎™–๎™๎™‚๎˜๎™…๎™†๎˜๎™†๎™”๎™•๎™‚๎™”๎˜๎™‘๎™๎™”๎™Š๎™„๎™Š๎™๎™๎™†๎™”๎˜๎˜
๎™๎™‚๎˜๎™๎›ˆ๎™Ž๎™‘๎™‚๎™“๎™‚๎˜๎™•๎™†๎™”๎™•๎™Š๎™ˆ๎™๎˜๎™‚๎™Ž๎™‚๎™“๎™Š๎™๎™๎™‚๎˜๎˜‰๎˜’๎˜Š๎˜๎™’๎™–๎™†๎˜๎™Š๎™๎™…๎™Š๎™„๎™‚๎˜๎™๎™‚๎˜๎™‘๎™“๎™†๎™”๎™†๎™๎™„๎™Š๎™‚๎˜๎™…๎™†๎˜๎™•๎™†๎™๎™”๎™Š๎›˜๎™๎˜๎™†๎™๎˜๎™๎™‚๎˜๎™„๎™‚๎™๎™…๎™†๎™“๎™‚๎˜
๎™„๎™๎™Ž๎™Š๎™†๎™๎™›๎™‚๎˜๎™‚๎˜๎™‘๎™‚๎™“๎™‘๎™‚๎™…๎™†๎™‚๎™“๎˜๎™๎™†๎™๎™•๎™‚๎™Ž๎™†๎™๎™•๎™†๎˜
๎˜ค๎™๎™๎˜๎™†๎™๎˜๎™Š๎™๎™•๎™†๎™“๎™“๎™–๎™‘๎™•๎™๎™“๎˜๎™†๎™๎˜๎™‘๎™๎™”๎™Š๎™„๎™Š๎›˜๎™๎˜๎˜‰
๎˜๎˜Š๎˜๎™†๎™๎˜๎™”๎™†๎™๎™†๎™„๎™•๎™๎™“๎˜๎™…๎™†๎˜๎™“๎™†๎™ˆ๎™–๎™๎™‚๎™„๎™Š๎›˜๎™๎˜๎™…๎™†๎˜๎™๎™‚๎˜๎™„๎™‚๎™๎™†๎™‡๎™‚๎™„๎™„๎™Š๎›˜๎™๎˜
๎˜‰๎˜๎˜–๎˜๎˜Š๎˜ ๎™’๎™–๎™†๎™…๎™‚๎˜๎™Š๎™๎™‰๎™‚๎™ƒ๎™Š๎™๎™Š๎™•๎™‚๎™…๎™๎˜๎™š๎˜๎™๎™‚๎˜๎™•๎™†๎™Ž๎™‘๎™†๎™“๎™‚๎™•๎™–๎™“๎™‚๎˜๎™…๎™†๎™๎˜๎™‚๎™ˆ๎™–๎™‚๎˜๎™”๎™‚๎™๎™Š๎™•๎™‚๎™“๎™Š๎™‚๎˜๎™”๎™†๎˜๎™“๎™†๎™ˆ๎™–๎™๎™‚๎˜๎™„๎™๎™๎˜๎™†๎™๎˜
๎™”๎™†๎™๎™†๎™„๎™•๎™๎™“๎˜๎˜‰๎˜๎˜•๎˜๎˜Š๎˜
๎˜ค๎™๎™๎˜๎™†๎™๎˜๎™Š๎™๎™•๎™†๎™“๎™“๎™–๎™‘๎™•๎™๎™“๎˜๎™†๎™๎˜๎™‘๎™๎™”๎™Š๎™„๎™Š๎›˜๎™๎˜๎˜‰ ๎˜๎˜Š๎˜๎™†๎™๎˜๎™”๎™†๎™๎™†๎™„๎™•๎™๎™“๎˜๎™…๎™†๎˜๎™“๎™†๎™ˆ๎™–๎™๎™‚๎™„๎™Š๎›˜๎™๎˜๎™„๎™‚๎™๎™†๎™‡๎™‚๎™„๎™„๎™Š๎›˜๎™๎˜
๎˜‰๎˜–๎˜Š๎˜๎™‘๎™†๎™“๎™Ž๎™Š๎™•๎™†๎˜๎™“๎™†๎™ˆ๎™–๎™๎™‚๎™“๎˜๎™๎™‚๎˜๎™•๎™†๎™Ž๎™‘๎™†๎™“๎™‚๎™•๎™–๎™“๎™‚๎˜๎™…๎™†๎˜๎™๎™๎™”๎˜๎™“๎™‚๎™…๎™Š๎™‚๎™…๎™๎™“๎™†๎™”๎˜๎˜๎™Ž๎™Š๎™†๎™๎™•๎™“๎™‚๎™”๎˜๎™’๎™–๎™†๎˜๎™‘๎™‚๎™“๎™‚๎˜๎™†๎™๎˜๎™‚๎™ˆ๎™–๎™‚๎˜
๎™”๎™‚๎™๎™Š๎™•๎™‚๎™“๎™Š๎™‚๎˜๎™”๎™†๎˜๎™–๎™”๎™‚๎˜๎™”๎™Š๎™†๎™Ž๎™‘๎™“๎™†๎˜๎™†๎™๎˜๎™”๎™†๎™๎™†๎™„๎™•๎™๎™“๎˜๎˜‰๎˜•๎˜Š๎˜œ๎˜๎™ˆ๎™Š๎™“๎™‚๎™๎™…๎™๎˜๎™๎™๎™”๎˜๎™”๎™†๎™๎™†๎™„๎™•๎™๎™“๎™†๎™”๎˜๎™‰๎™‚๎™„๎™Š๎™‚๎˜๎™๎™‚๎˜๎™…๎™†๎™“๎™†๎™„๎™‰๎™‚๎˜๎™๎™‚๎˜
๎™•๎™†๎™Ž๎™‘๎™†๎™“๎™‚๎™•๎™–๎™“๎™‚๎˜๎™‚๎™–๎™Ž๎™†๎™๎™•๎™‚๎˜๎™š๎˜๎™‰๎™‚๎™„๎™Š๎™‚๎˜๎™๎™‚๎˜๎™Š๎™›๎™’๎™–๎™Š๎™†๎™“๎™…๎™‚๎˜๎™…๎™Š๎™”๎™Ž๎™Š๎™๎™–๎™š๎™†๎˜
๎˜ข๎˜๎™‘๎™‚๎™“๎™•๎™Š๎™“๎˜๎™…๎™†๎˜๎™†๎™”๎™•๎™†๎˜๎™Ž๎™๎™Ž๎™†๎™๎™•๎™๎˜๎™๎™‚๎˜๎™„๎™‚๎™๎™…๎™†๎™“๎™‚๎˜๎™‡๎™–๎™๎™„๎™Š๎™๎™๎™‚๎™“๎›ˆ๎˜๎™…๎™†๎˜๎™‡๎™๎™“๎™Ž๎™‚๎˜๎™‚๎™–๎™•๎™๎™Ž๎›ˆ๎™•๎™Š๎™„๎™‚๎˜๎˜๎˜ด๎™‚๎™๎™—๎™๎˜๎™Š๎™๎™…๎™Š๎˜Ž
๎™„๎™‚๎™„๎™Š๎™๎™๎™†๎™”๎˜๎™†๎™”๎™‘๎™†๎™„๎›“๎™ญ๎™„๎™‚๎™”๎˜๎˜๎™”๎™†๎˜๎™‚๎™„๎™๎™๎™”๎™†๎™‹๎™‚๎˜๎™…๎™†๎™‹๎™‚๎™“๎˜๎™†๎™๎˜๎™”๎™†๎™๎™†๎™„๎™•๎™๎™“๎˜๎™…๎™†๎˜๎™“๎™†๎™ˆ๎™–๎™๎™‚๎™„๎™Š๎›˜๎™๎˜๎™…๎™†๎™๎˜๎™‚๎™ˆ๎™–๎™‚๎˜๎™”๎™‚๎™๎™Š๎™•๎™‚๎™“๎™Š๎™‚๎˜
๎˜‰๎˜•๎˜Š๎˜๎™†๎™๎™•๎™“๎™†๎˜๎™๎™๎™”๎˜๎™—๎™‚๎™๎™๎™“๎™†๎™”๎˜๎˜”๎˜๎™š๎˜๎˜—๎˜๎˜๎™š๎™‚๎˜๎™’๎™–๎™†๎˜๎™†๎™”๎™•๎™‚๎˜๎™‘๎™๎™”๎™Š๎™„๎™Š๎›˜๎™๎˜๎™‚๎™”๎™†๎™ˆ๎™–๎™“๎™‚๎˜๎™–๎™๎™‚๎˜๎™•๎™†๎™Ž๎™‘๎™†๎™“๎™‚๎™•๎™–๎™“๎™‚๎˜๎™Š๎™…๎™†๎™‚๎™๎˜
๎™…๎™†๎™๎˜๎™‚๎™ˆ๎™–๎™‚๎˜๎™”๎™Š๎™๎˜๎™‘๎™“๎™๎™—๎™๎™„๎™‚๎™“๎˜๎™†๎™๎˜๎™…๎™†๎™‘๎›˜๎™”๎™Š๎™•๎™๎˜๎™…๎™†๎˜๎™”๎™‚๎™๎™†๎™”๎˜๎™…๎™†๎˜๎™„๎™‚๎™๎™„๎™Š๎™๎˜
๎˜ญ๎™†๎™…๎˜๎™‚๎™Ž๎™‚๎™“๎™Š๎™๎™๎™๎˜ญ๎™†๎™…๎˜๎™“๎™๎™‹๎™
๎˜ค๎™‚๎™๎™…๎™†๎™“๎™‚๎˜๎™‚๎™‘๎™‚๎™ˆ๎™‚๎™…๎™‚ ๎˜ข๎™‘๎™‚๎™ˆ๎™‚๎™…๎™
๎˜ค๎™‚๎™๎™…๎™†๎™“๎™‚๎˜๎™†๎™๎˜
๎˜ด๎™•๎™‚๎™๎™…๎˜Ž๎™ƒ๎™š
๎˜ข๎™‘๎™‚๎™ˆ๎™‚๎™…๎™
๎˜ข๎™‘๎™‚๎™ˆ๎™‚๎™…๎™
๎˜ฃ๎™“๎™†๎™—๎™†๎™”๎˜๎™…๎™†๎™”๎™•๎™†๎™๎™๎™๎™”
๎˜ฑ๎™“๎™†๎™”๎™†๎™๎™„๎™Š๎™‚๎˜๎™…๎™†๎˜๎™๎™๎™‚๎™Ž๎™‚ ๎˜ข๎™‘๎™‚๎™ˆ๎™‚๎™…๎™ ๎˜ฆ๎™๎™„๎™†๎™๎™…๎™Š๎™…๎™
๎˜ฃ๎™๎™๎™’๎™–๎™†๎™๎˜๎™‡๎™‚๎™๎™•๎™‚๎˜๎™†๎™๎™„๎™†๎™๎™…๎™Š๎™…๎™ ๎˜ฆ๎™๎™„๎™†๎™๎™…๎™Š๎™…๎™ ๎˜ข๎™‘๎™‚๎™ˆ๎™‚๎™…๎™
๎˜ฃ๎™๎™๎™’๎™–๎™†๎™๎˜๎™•๎™†๎™“๎™Ž๎™๎™”๎™•๎™‚๎™•๎™๎˜๎™”๎™๎™ƒ๎™“๎™†๎˜Ž
๎™•๎™†๎™Ž๎™‘๎™†๎™“๎™‚๎™•๎™–๎™“๎™‚
๎˜ฑ๎™‚๎™“๎™‘๎™‚๎™…๎™†๎™‚
๎˜ข๎™‘๎™‚๎™ˆ๎™‚๎™…๎™
๎˜ข๎™—๎™†๎™“๎›“๎™‚๎˜
๎™‘๎™“๎™†๎™”๎™๎™”๎™•๎™‚๎™•๎™๎˜๎™…๎™†๎˜๎™‚๎™Š๎™“๎™†
๎˜ฑ๎™‚๎™“๎™‘๎™‚๎™…๎™†๎™‚
๎˜ฑ๎™‚๎™“๎™‘๎™‚๎™…๎™†๎™‚
๎˜ข๎™๎™๎™Ž๎™‚๎™๎›“๎™‚๎˜๎™”๎™๎™๎™…๎™‚๎˜๎˜ฏ๎˜ต๎˜ค๎˜๎™…๎™†๎˜
๎™†๎™๎™—๎›“๎™๎˜๎™๎˜๎™”๎™๎™๎™…๎™‚๎˜๎˜ฏ๎˜ต๎˜ค๎˜
๎™”๎™‚๎™๎™Š๎™•๎™‚๎™“๎™Š๎™
๎˜ข๎™‘๎™‚๎™ˆ๎™‚๎™…๎™
๎˜ฑ๎™‚๎™“๎™‘๎™‚๎™…๎™†๎™‚
๎˜ง๎™‚๎™๎™•๎™‚๎˜๎™‚๎™ˆ๎™–๎™‚๎˜๎™๎˜๎™๎™๎˜
๎™„๎™Š๎™“๎™„๎™–๎™๎™‚
๎˜ฆ๎™๎™„๎™†๎™๎™…๎™Š๎™…๎™ ๎˜ฑ๎™‚๎™“๎™‘๎™‚๎™…๎™†๎™‚
๎˜ช๎™๎™…๎™Š๎™„๎™‚๎™„๎™Š๎™๎™๎™†๎™”๎˜๎™…๎™†๎˜๎™‡๎™‚๎™๎™๎™๎™”๎˜๎™š๎˜๎™‚๎™๎™๎™Ž๎™‚๎™๎›“๎™‚๎™”

Related product manuals