EasyManua.ls Logo

Infinite Peripherals 216 - Page 101

Default Icon
102 pages
Print Icon
To Next Page IconTo Next Page
To Next Page IconTo Next Page
To Previous Page IconTo Previous Page
To Previous Page IconTo Previous Page
Loading...
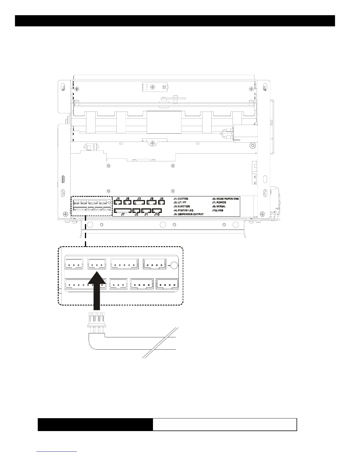
APPENDIX A - ACCESSORIES AND SPARE PARTS
KPM210/216
4A-
J6
Sensor wiring
(Fig.A.4)
View from below
www.ipcprint.com