EasyManua.ls Logo

Intermatic RC2263BE - Wiring Diagram; Wiring Notes for Pump and Blower; Low Voltage Board Connections; Heater Wiring Configurations

Intermatic RC2263BE
4 pages
Print Icon
To Previous Page IconTo Previous Page
To Previous Page IconTo Previous Page
Loading...
4
Because of our commitment to continuing research and improvements, Intermatic Incorporated reserves the right to make changes, without notice, in the specifications and material
contained herein and shall not be responsible for any damages, direct or consequential, caused by reliance on the material presented.
INTERMATIC INCORPORATED, SPRING GROVE, IL 60081-9698
http://www.intermatic.com
158AS11073
ONE YEAR LIMITED WARRANTY
If within the warranty period specified, this product fails due to a defect in material or workmanship, Intermatic Incorporated will repair or replace
it, at its sole option, the unit free of charge. This warranty applies only to the original purchaser and is not transferable. This warranty does not apply
to: (a) damage caused by accident, abuse, mishandling, dropping, acts of God, or any negligent use; (b) units which have been subject to unautho-
rized repair, opened, taken apart, or otherwise modified; (c) units not used in accordance with instructions; (d) damages exceeding the cost of the
product. Some states do not allow a limitation of damages, so the foregoing limitation may not apply to you. This warranty gives you specific legal
rights and you may have other rights that vary from state to state.
INTERMATIC INCORPORATED WILL NOT BE LIABLE FOR INCIDENTAL OR CONSEQUENTIAL DAMAGES. THIS WARRANTY IS IN LIEU OF ALL OTHER
EXPRESS OR IMPLIED WARRANTIES. ALL IMPLIED WARRANTIES, INCLUDING THE WARRANTY OF MERCHANTABILITY AND THE WARRANTY OF
FITNESS FOR A PARTICULAR PURPOSE, ARE HEREBY MODIFIED TO EXIST ONLY AS CONTAINED IN THIS LIMITED WARRANTY, AND SHALL BE
OF THE SAME DURATION AS THE WARRANTY PERIOD STATED ABOVE.
This warranty service is available by either (a) returning the product to the dealer from whom the unit was purchased, or (b) mailing postage prepaid
to the nearest authorized service center listed. Please be sure to wrap the product securely when mailing to avoid shipping damage. This warranty is
made by: Intermatic Incorporated/After Sales Service, 7777 Winn Rd., Spring Grove, IL 60081-9698/815-675-7000 http://www/intermatic.com
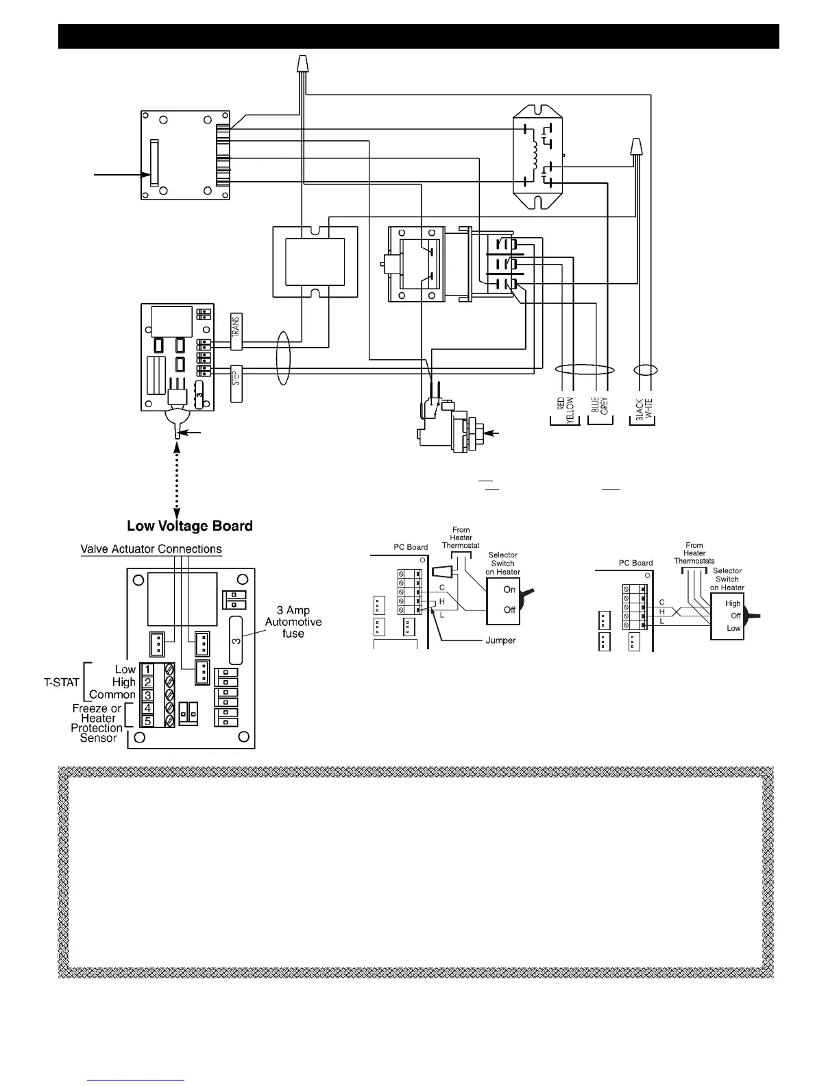
WIRING DIAGRAM
Single Thermostat Heater
1. Connect two 18 gauge wires in
SERIES with Heater Switch.
2. Connect one of the wires to
ter
minal “C” and the other to
ter
minal “L”.
INST
ALL JUMPER
BETWEEN TERMINALS
“L” AND “H”.
3. Leave heater switch in ON position.
1. Connect three 18 gauge wires in
PARALLEL with Heater Switch.
2.
Connect the wir
e fr
om central post
(Common) of heater switch to
ter
minal “C”, High to “H” and
Low to “L”.
3. Leave heater switch in
OFF position.
Dual Thermostat Heater
TIMER
NEUT
.
LINE
120/24V
.
TRANSFORMER
HEATER
SELECTOR
SWITCH
PULSE
SWITCH
AIR
HOSE
RELAY
240V.
BLOWER
120V.
SUPPLY
MEMOR
Y
HOLD-UP
BATTERY
STEPPER RELAY
240V.
2-SPEED
PUMP
For single speed pump and/or 120 Volt equipment, follow wiring above except:
240 V. Single Speed Pump - Connect both BLUE and GRAY leads to LOAD 1 of pump.
120 V. Two Speed Pump - Connect NEUTRAL to WHITE lead and COMMON of pump.
120 V. Single Speed Pump - Connect NEUTRAL to WHITE lead and pump NEUTRAL. Connect both
BLUE and GRAY leads to pump LOAD terminal.
120 V. Blower - Connect NEUTRAL to blower NEUTRAL.

Related product manuals