EasyManua.ls Logo

Interpack USA 2024-SB - Section 6 Specifications

Interpack USA 2024-SB
94 pages
Print Icon
To Next Page IconTo Next Page
To Next Page IconTo Next Page
To Previous Page IconTo Previous Page
To Previous Page IconTo Previous Page
Loading...
UM094TW / UM594TW UDM094-04
16
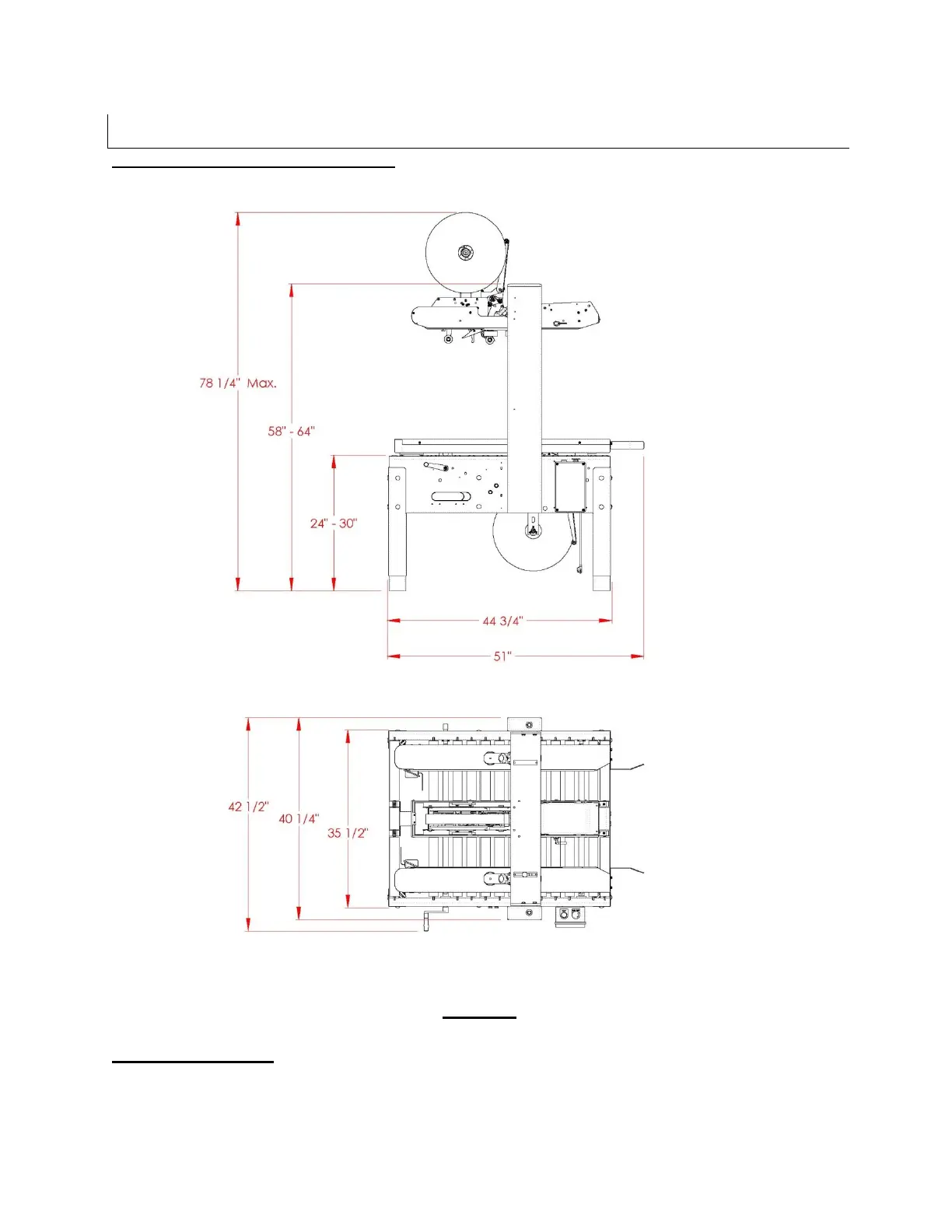
SPECIFICATIONS
USA 2024-SB Machine Dimensions
Figure-3
Machine Weight: 560 lbs. (254 kg) crated