EasyManua.ls Logo

INVT GD20-015G-4-EU

INVT GD20-015G-4-EU
168 pages
To Next Page IconTo Next Page
To Next Page IconTo Next Page
To Previous Page IconTo Previous Page
To Previous Page IconTo Previous Page
Loading...
Goodrive20-EU series VFD Function parameters
37
Function
code
Name
Detailed instruction of parameters
Default
value
Modify
acceleration/deceleration time of the VFD is the
first group.
Setting range of P00.11 and P00.12: 0.0
3600.0s
P00.13
Running
direction
selection
0: Runs at the default direction, the VFD runs in
the forward direction. FWD/REV indicator is off.
1: Runs at the opposite direction, the VFD runs in
the reverse direction. FWD/REV indicator is on.
Modify the function code to shift the rotation
direction of the motor. This effect equals to the
shifting the rotation direction by adjusting either
two of the motor lines (U, V and W). The motor
rotation direction can be changed by
QUICK/JOG on the keypad. Refer to parameter
P07.02.
Note: When the function parameter comes back
to the default value, the motor's running direction
will come back to the factory default state, too. In
some cases it should be used with caution after
commissioning if the change of rotation direction
is disabled.
2: Forbid to run in reverse direction: It can be
used in some special cases if the reverse
running is disabled.
0
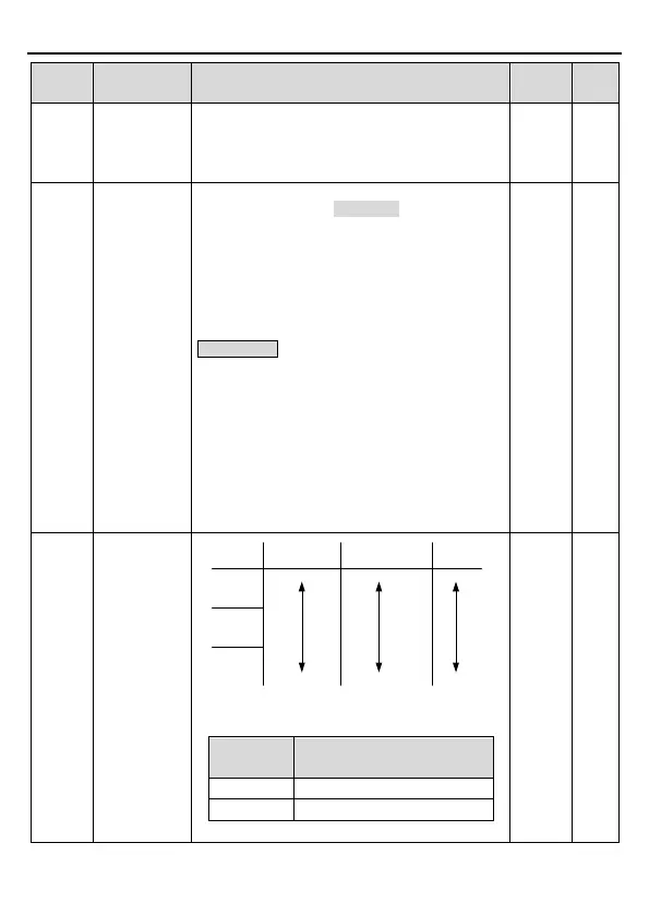
P00.14
Carrier
frequency
setting
Carrier
frequency
Electro magnetic
noise
Noise and leakage
current
Heating
eliminating
High
LowHigh
Low
High
Low
1kHz
10kHz
15kHz
Relationship between motor types and carrier
frequencies:
Motor type
Factory setting of carrier
frequency
0.4 11kW
8kHz
15 110kW
4kHz
Depend
on
model

Table of Contents

Related product manuals