EasyManua.ls Logo

INVT GD20-0R7G-4-EU - Page 64

INVT GD20-0R7G-4-EU
168 pages
Print Icon
To Next Page IconTo Next Page
To Next Page IconTo Next Page
To Previous Page IconTo Previous Page
To Previous Page IconTo Previous Page
Loading...
Goodrive20-EU series VFD Function parameters
60
Function
code
Name
Detailed instruction of parameters
Default
value
Modify
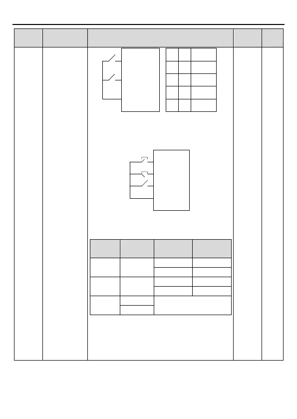
FWD
REV
COM
K1
K2
Running
command
FWD REV
OFF OFF
OFF
OFF
ON
ON
ON ON
Stopping
Stopping
Forward
running
Reverse
running
2: 3-wire control 1; Sin is the enabling terminal in
this mode, and the running command is caused
by FWD and the direction is controlled by REV.
Sin is natural closed.
COM
K
SB2
SB1
FWD
REV
SIn
The direction control is as follows during
operation:
Sln
REV
Previous
direction
Current
direction
ON
OFF→ON
Forward
Reverse
Reverse
Forward
ON
ON→OFF
Reverse
Forward
Forward
Reverse
ON→
OFF
ON
Decelerate to stop
OFF
3: 3-wire control 2; Sin is the enabling terminal in
this mode, and the running command is caused
by SB1 or SB3 and both of them control the
running direction. NC SB2 generates the stop
command.

Table of Contents

Related product manuals