EasyManua.ls Logo

INVT GD20-7R5G-4

INVT GD20-7R5G-4
140 pages
To Next Page IconTo Next Page
To Next Page IconTo Next Page
To Previous Page IconTo Previous Page
To Previous Page IconTo Previous Page
Loading...
Goodrive20 inverters Function Parameters
67
Function
code
Name Detailed instruction of parameters
Default
value
Modify
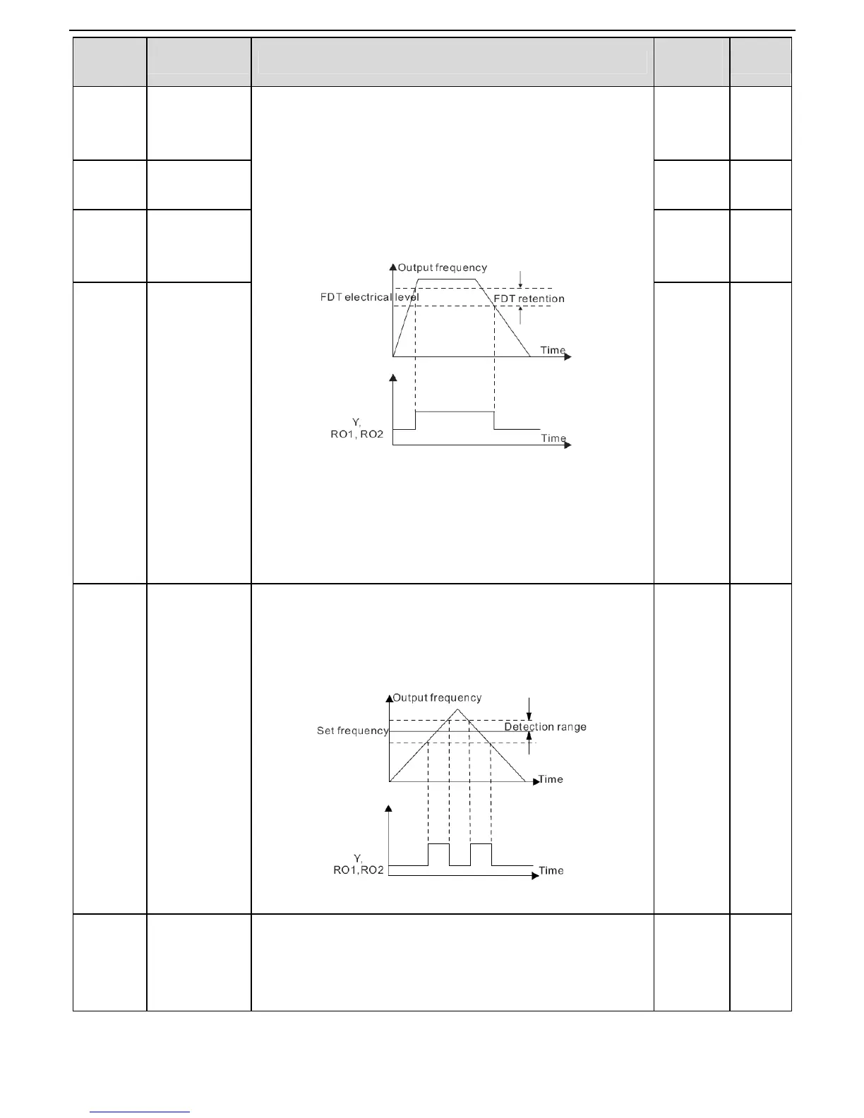
P08.32
FDT1 electrical
level detection
value
When the output frequency exceeds the corresponding
frequency of FDT electrical level, the multi-function digital
output terminals will output the signal of “frequency level
detect FDT” until the output frequency decreases to a value
lower than (FDT electrical level—FDT retention detection
value) the corresponding frequency, the signal is invalid.
Below is the waveform diagram:
Setting range of P08.32: 0.00Hz~P00.03
(the Max. frequency)
Setting range of P08.33 and P08.35: 0.0~100.0%
Setting range of P08.34: 0.00Hz~P00.03
(the Max. frequency)
50.00Hz
P08.33
FDT1 retention
detection value
5.0%
P08.34
FDT2 electrical
level detection
value
50.00Hz
P08.35
FDT2 retention
detection value
5.0%
P08.36
Frequency
arrival
detection value
When the output frequency is among the below or above
range of the set frequency, the multi-function digital output
terminal will output the signal of “frequency arrival”, see the
diagram below for detailed information:
The setting range:0.00Hz~P00.03(the Max. frequency)
0.00Hz
P08.37
Energy Braking
enable
This parameter is used to control the internal braking unit.
0:Disabled
1:Enabled
Note: Only applied to internal braking unit.
0

Table of Contents

Related product manuals