EasyManua.ls Logo

INVT Goodrive GD300-19-015G-4

INVT Goodrive GD300-19-015G-4
255 pages
To Next Page IconTo Next Page
To Next Page IconTo Next Page
To Previous Page IconTo Previous Page
To Previous Page IconTo Previous Page
Loading...
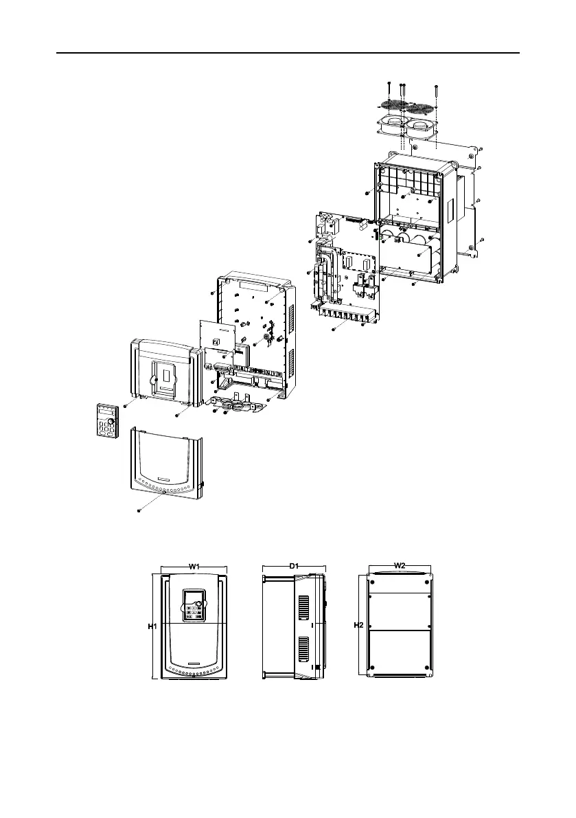
Goodrive300-19 series open loop vector inverter special for hosit Dimension drawings
-235-
B.3 Inverter structure
B.4 Dimensions of AC 3PH 380V(-15%)~440V(+10%) inverters
B.4.1 Wall installation
Wall installation of 380V 1.5-30kW inverters

Table of Contents

Related product manuals