EasyManua.ls Logo

IPSO T30 - Steam Connection Locations

IPSO T30
21 pages
Print Icon
To Next Page IconTo Next Page
To Next Page IconTo Next Page
To Previous Page IconTo Previous Page
To Previous Page IconTo Previous Page
Loading...
© Copyright, Alliance Laundry Systems LLC – DO NOT COPY or TRANSMIT
Tumblers – T30 and T45
4-08-43
9
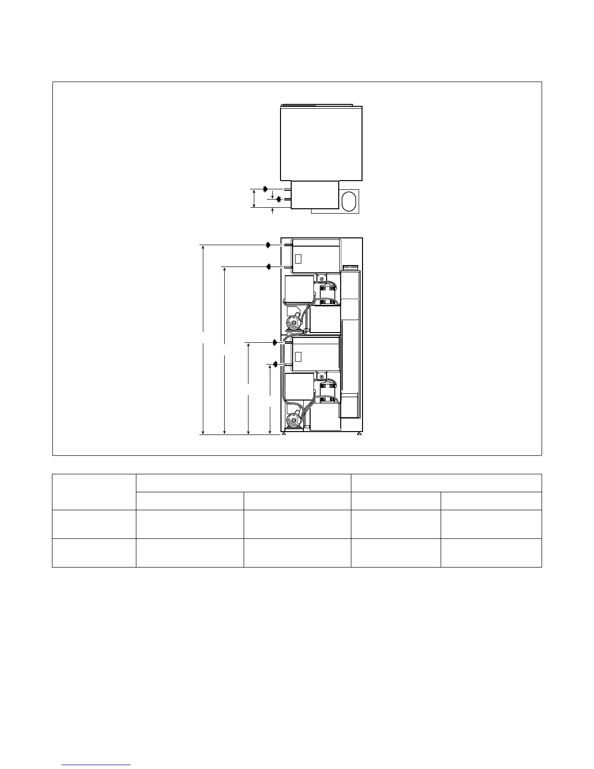
Steam Connection Locations
NOTE: All connections use 3/4 inch NPT pipe.
TMB1972N
C
D
A
B
A
B
Models
Inlet Outlet
ACBD
T30
(Upper)
73.93 in.
(1877 mm)
6.29 in.
(160 mm)
62.71 in.
(1592 mm)
2.39 in.
(61 mm)
T30
(Lower)
36.35 in.
(923 mm)
6.29 in.
(160 mm)
25.13 in.
(638 mm)
2.39 in.
(61 mm)

Related product manuals