EasyManua.ls Logo

IPSO T30 - Gas Connection Locations

IPSO T30
21 pages
Print Icon
To Next Page IconTo Next Page
To Next Page IconTo Next Page
To Previous Page IconTo Previous Page
To Previous Page IconTo Previous Page
Loading...
© Copyright, Alliance Laundry Systems LLC – DO NOT COPY or TRANSMIT
Tumblers – T30 and T45
4-08-43
7
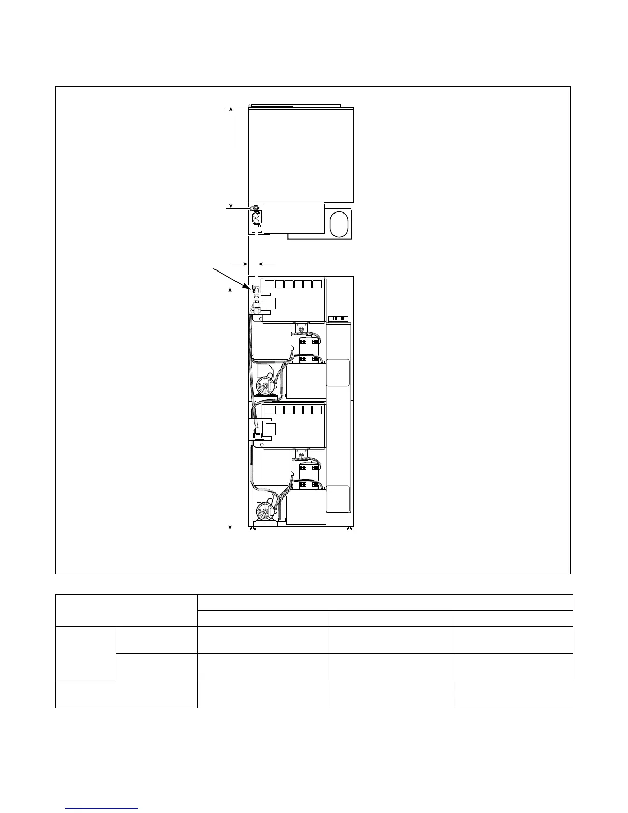
Gas Connection Locations
TMB1970N
1 1/2 in. NPT
TMB1970N
Models
Gas Connection
ABC
T30
Non-CE and
Non-Australian
75.20 in.
(1910 mm)
1.74 in.
(44 mm)
36.84 in.
(936 mm)
CE and
Australian
75.28 in.
(1912 mm)
2.5 in.
(64 mm)
30.60 in.
(777 mm)
T45
78.75 in.
(2000 mm)
4.12 in.
(105 mm)
42.88 in.
(1089 mm)

Related product manuals