EasyManua.ls Logo

Jackle MIG 325 - Drahtvorschub

Jackle MIG 325
Print Icon
To Next Page IconTo Next Page
To Next Page IconTo Next Page
To Previous Page IconTo Previous Page
To Previous Page IconTo Previous Page
Loading...
MIG 325,405,505
Betriebsanleitung Seite 14
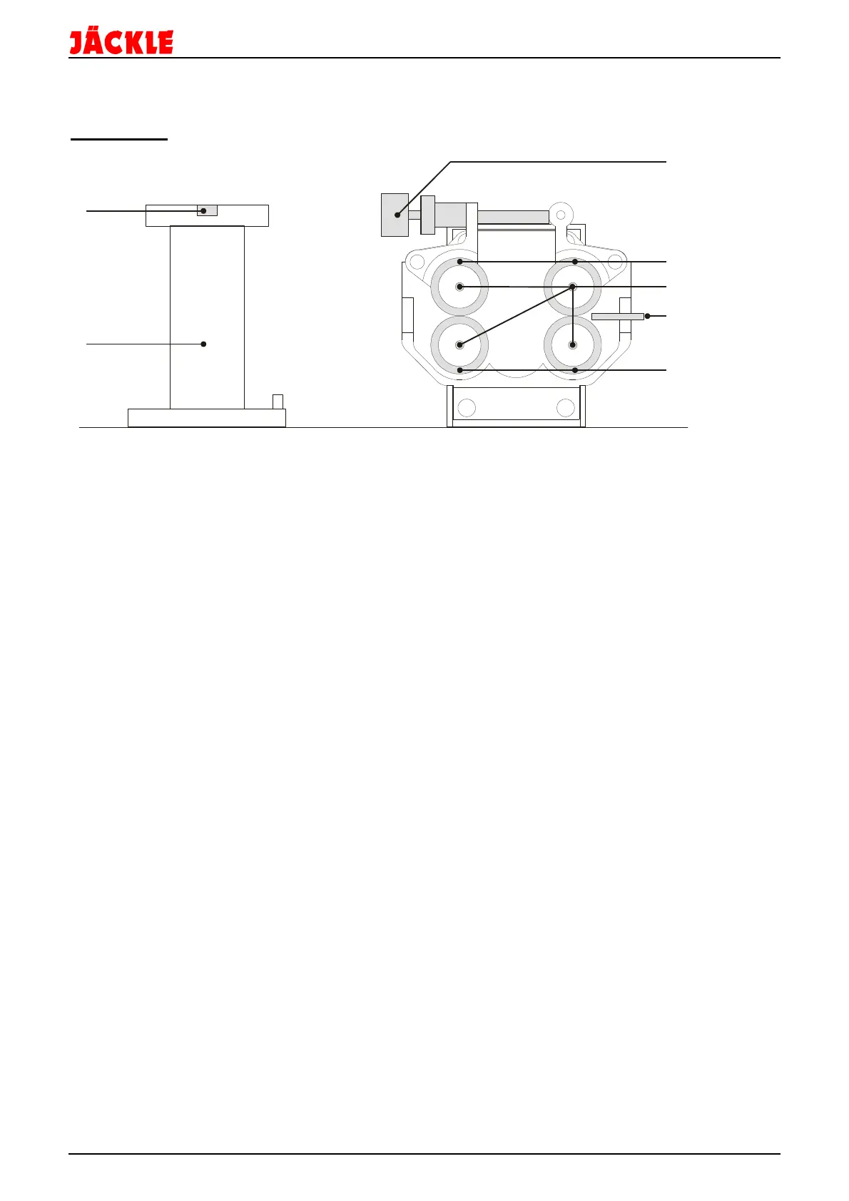
12. Drahtvorschub
140W Motor
Vierrollenantrieb
Vier untereinander verzahnte Drahtvorschubrollen sorgen für einen sicheren Transport des Schweißdrahts. Für
den verwendeten Draht muss jeweils die Drahtvorschubrolle mit der entsprechenden Nut eingesetzt werden.
Jede Drahtvorschubrolle ist zweiseitig nutzbar. Zum Drehen bzw. Austauschen der Drahtvorschubrollen sind die
Inbusschrauben (4) herauszudrehen. Es ist darauf zu achten, dass die Nut der Drahtvorschubrollen (5,6) mit
dem Drahtführungsrohr (7) eine Flucht bildet.
Für die Verarbeitung von Massivdraht sind die Drahtvorschubrollen folgendermaßen einzusetzen:
- Die oberen Drahtvorschubrollen (5) mit glatter Oberfläche
- Die unteren Drahtvorschubrollen (6) mit V-förmiger Nut entsprechend dem zu verarbeitenden
Drahtdurchmesser (0,8/1,0/1,2/1,6 mm ).
Die gerändelte Nut ist für die Verarbeitung von Fülldraht bzw. Röhrchendraht vorgesehen.
Der Anpresspunkt der Drahtvorschubrollen ist mit dem Drehgriff (3) so einzustellen, dass der Draht bei
gestrecktem Schlauchpaket einerseits gleichmäßig gefördert wird und andererseits nicht ausknickt, sondern
durchrutscht, wenn der Draht am Stromdüsenaustritt festgehalten wird.
Drahtförderung im Brennerschlauchpaket
Der Reibungswiderstand des Schweißdrahts in der Drahtführungsspirale vergrößert sich mit der Länge des
Schlauchpakets. Das Brennerschlauchpaket sollte deshalb nicht länger als nötig gewählt werden.
Bei der Verarbeitung von Aluminium-Schweißdraht empfiehlt es sich, die Drahtführungsspirale durch eine
Teflon-Drahtführungs-Seele zu ersetzen. Die Länge des Brennerschlauchpakets sollte nicht mehr als 3 m
betragen.
Es ist zu empfehlen, die Drahtführungsspirale und das Drahtführungsrohr nach dem Verschweißen einer Rolle
Draht mit Pressluft auszublasen.
Die Gleitfähigkeit der Drahtführungsspirale verschlechtert sich in Abhängigkeit von der geförderten Drahtmenge
und den Drahteigenschaften. Bei einer merkbar schlechteren Drahtförderung ist die Drahtführungsspirale
auszuwechseln.
2
5
1
7
6
4
3

Related product manuals