EasyManua.ls Logo

Jackson ECOLAB ES-2000-CS - Dimensions (ES-2000;ES-2000 XSP;ES-2000 XSP-PH)

Jackson ECOLAB ES-2000-CS
91 pages
Print Icon
To Next Page IconTo Next Page
To Next Page IconTo Next Page
To Previous Page IconTo Previous Page
To Previous Page IconTo Previous Page
Loading...
ES-2000 & ES-4000 Series Installation/Operation Manual 7610-011-35-10
Issued: 10-29-2007 Revised: N/A
SECTION 1: SPECIFICATION INFORMATION
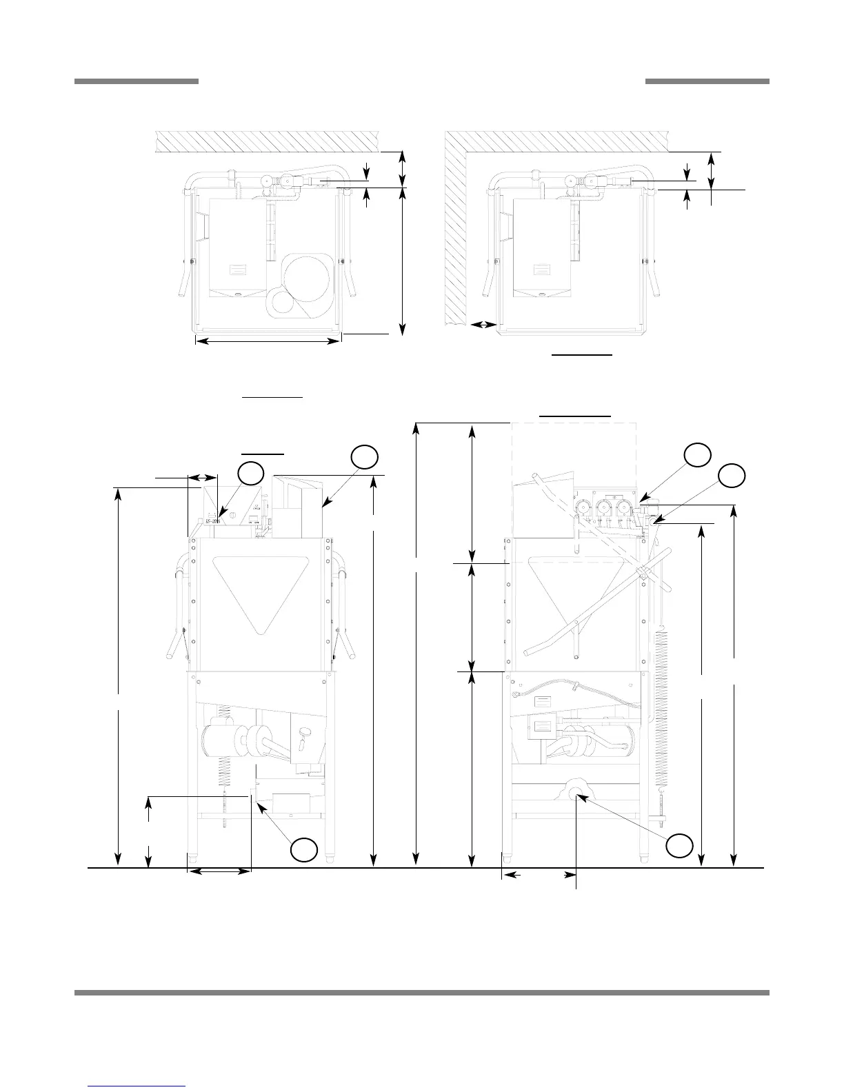
DIMENSIONS ES-2000/ES-2000XSP-PH
4
4” MIN.
ES-2000/XSP 25 1/4”
ES-2000XSP-PH 25 3/4”
TOP VIEW
RACK GUIDES IN STRAIGHT
THROUGH CONFIGURATION
5” MIN
TOP VIEW
RACK GUIDES IN CORNER
CONFIGURATION
12”
6”
24 1/4”
DOORS
19” MAX
CLEARANCE
34”
TABLE HEIGHT
1”
1”
11 1/2”
FRONT
RIGHT SIDE
NOTE: DRAIN IS ON FAR
SIDE OF ACCUMULATOR
4” MIN.
ES-2000/XSP 25 1/4”
ES-2000XSP-PH 30 3/4”
12 1/2”
A
B
D
B
A
C
61”
62”
A- DRAIN CONNECTION 2” NPT
B- ELECTRICAL CONNECTION 3/4” CONDUIT
C- WATER INLET 3/4” NPT
D- XSP DISPENSER
ALL DIMENSION FROM FLOOR ARE ADJUSTABLE +/-
1/2” DUE TO BULLET FEET.
64 1/4”
66 1/4”
77 1/4”

Table of Contents

Related product manuals