EasyManua.ls Logo

Jackson ECOLAB ES-2000-CS - Dimensions Es-4000;Es-4000 Xsp

Jackson ECOLAB ES-2000-CS
91 pages
Print Icon
To Next Page IconTo Next Page
To Next Page IconTo Next Page
To Previous Page IconTo Previous Page
To Previous Page IconTo Previous Page
Loading...
ES-2000 & ES-4000 Series Installation/Operation Manual 7610-011-35-10
Issued: 10-29-2007 Revised: N/A
SECTION 1: SPECIFICATION INFORMATION
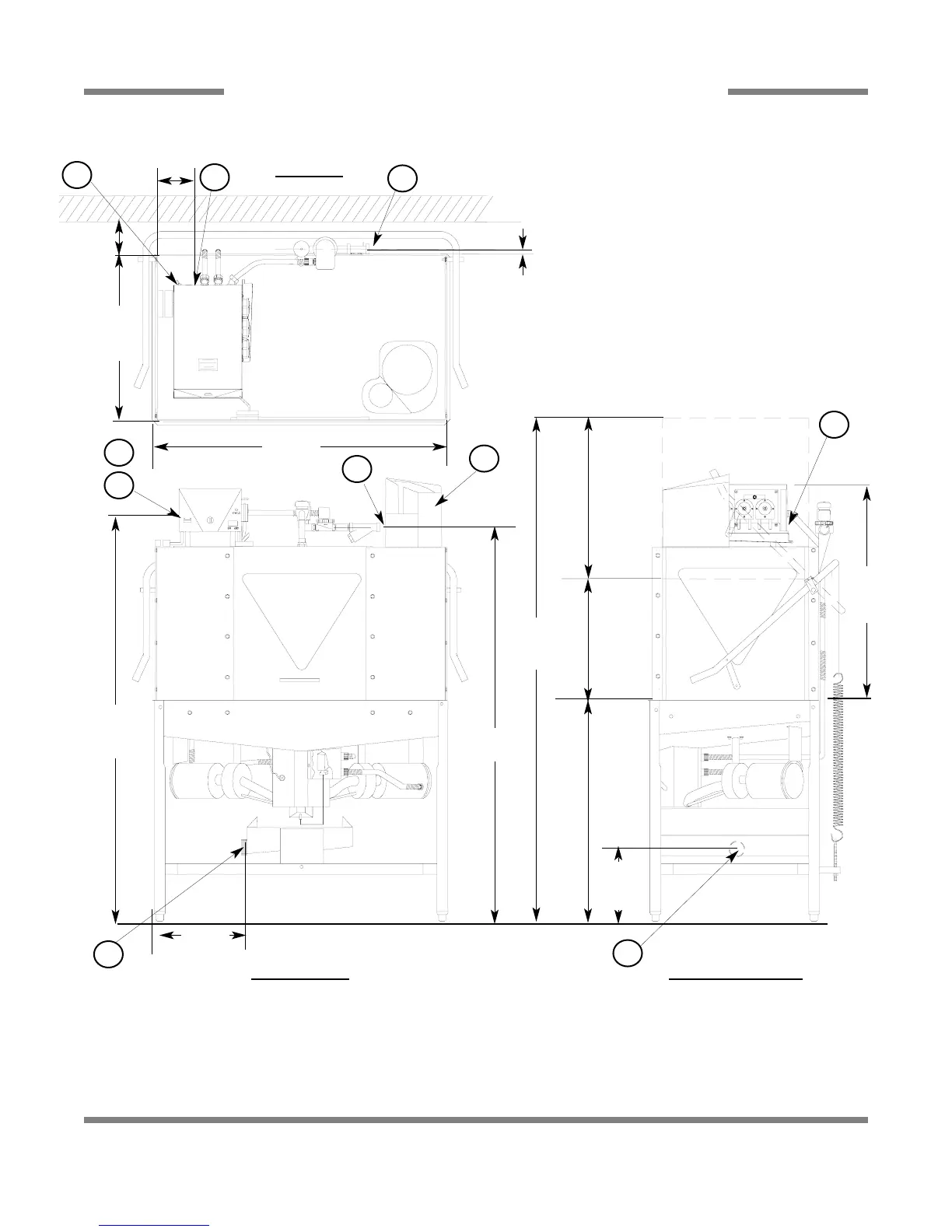
DIMENSIONS ES-4000/ES-4000XSP
7
TOP VIEW
FRONT VIEW RIGHT SIDE VIEW
A - DRAIN CONNECTION - 2” NPT
B - ELECTRICAL CONNECTION
C - WATER INLET - 3/4” NPT
D - SERVICE DISCONNECT SWITCH
E - XSP DISPENSER
ALL DIMENSION FROM FLOOR ARE ADJUSTABLE +/- 1/2”
DUE TO BULLET FEET.
25 7/8”
1”
60 1/2”
61”
10 1/2”
24 1/2”
DOORS
19” MAX
CLEARANCE
34”
TABLE HEIGHT
32 1/4”
44 1/8”
4” min.
4 3/4”
15 3/4”
C
C
E
B
D
B
A
A
D
D
75 3/4”

Table of Contents

Related product manuals