EasyManua.ls Logo

Jackson ECOLAB ES-2000-CS - Dimensions Es-4000 Cdl

Jackson ECOLAB ES-2000-CS
91 pages
Print Icon
To Next Page IconTo Next Page
To Next Page IconTo Next Page
To Previous Page IconTo Previous Page
To Previous Page IconTo Previous Page
Loading...
ES-2000 & ES-4000 Series Installation/Operation Manual 7610-011-35-10
Issued: 10-29-2007 Revised: N/A
SECTION 1: SPECIFICATION INFORMATION
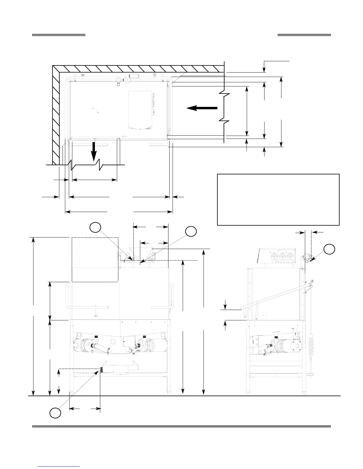
DIMENSIONS ES-4000CDL
8
20 3/4”
OPENING
4 1/2”
MINIMUM
2 1/2”
1 1/2”
5”
19”
OPENING
20 3/4”
OPENING
2 1/2”
3 1/2”
4”
MINIMUM
2 1/2 “
A - DRAIN-GRAVITY 2” NPT
B - WATER INLET 3/4” NPT
C - ELECTRICAL CONNECTION 3/4”
ALL DIMENSION FROM FLOOR ARE
ADJUSTABLE +/- 1/2” DUE TO BULLET FEET.
32 3/4”
25 3/4”
43 1/2 “
46 1/2”
C
B
A
B
16”
13”
66 1/4”
60 3/4”
12”
34”
77”
14”

Table of Contents

Related product manuals