EasyManua.ls Logo

Jackson ECOLAB ES-2000-CS - Dimensions Es-2000-Cs

Jackson ECOLAB ES-2000-CS
91 pages
Print Icon
To Next Page IconTo Next Page
To Next Page IconTo Next Page
To Previous Page IconTo Previous Page
To Previous Page IconTo Previous Page
Loading...
ES-2000 & ES-4000 Series Installation/Operation Manual 7610-011-35-10
Issued: 10-29-2007 Revised: N/A
SECTION 1: SPECIFICATION INFORMATION
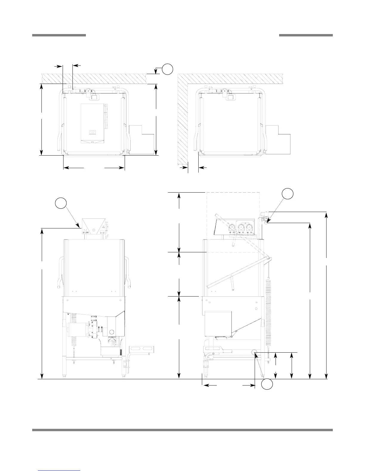
DIMENSIONS ES-2000-CS
5
LEGEND
A - WATER INLET (1/2”NPT)
B - ELECTRICAL CONNECTION POINT
C - DRAIN (2” NPT)
D - STANDARD CLEARANCE BETWEEN MACHINE AND
WALL (WITH DISHTABLE) IS 4”.
NOTE: All vertical dimensions are +/- 1/2” due to
adjustable feet.
5” Min.
4 11/16”
25 1/4”
25 1/4”
33 1/4”
Table
10 3/8”
11 3/4” with
Accumulator
Lift Kit
Ecolab No.:
96582202
64 11/16”
67 3/4”
22 1/2”
18”
Opening
62”
24 1/2”
Door
26 1/4”
A
B
C
D

Table of Contents

Related product manuals