EasyManua.ls Logo

Jasic MIG250 - Appendixes; Appendix 1: Wiring Diagram

Jasic MIG250
79 pages
Print Icon
To Next Page IconTo Next Page
To Next Page IconTo Next Page
To Previous Page IconTo Previous Page
To Previous Page IconTo Previous Page
Loading...
Page 74
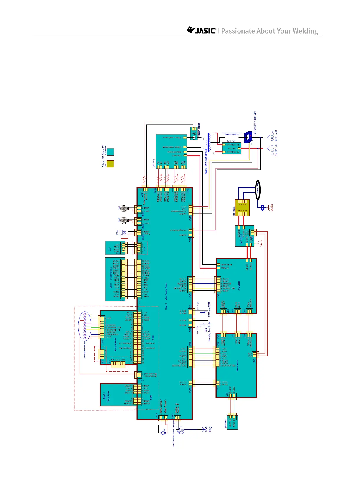
Appendixes
Appendix 1: Wiring diagram
Wiring diagram 1 - MIG200PFC/MIG250PFC

Related product manuals