EasyManua.ls Logo

jcb 210SU - Page 153

jcb 210SU
414 pages
Print Icon
To Next Page IconTo Next Page
To Next Page IconTo Next Page
To Previous Page IconTo Previous Page
To Previous Page IconTo Previous Page
Loading...
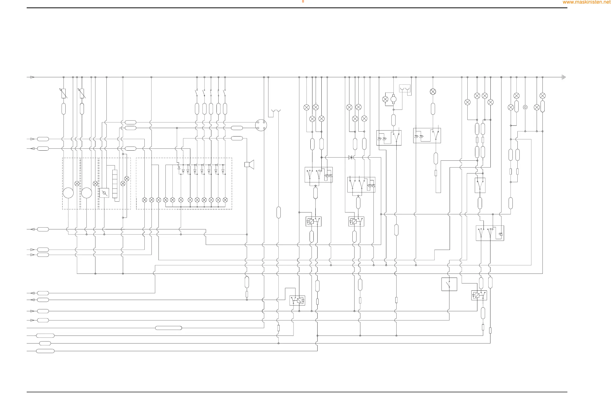
Electrics
Basic System Operation
Section C Section C
9803/7130 Issue 1
4 - 6 4 - 6
1810
1810
106
106
LH TAIL LIGHT
U
4
1821
1821
BATTERY FEED
FRONT CONSOLE
INSTRUMENTS
829
829
312
312
14
829
829
RADIO SOCKET
4
RH TAIL LIGHT
76
-
M
403
2
OUTER FRONT WORK LIGHT
SOUTER FRONT WORK LIGHTS
011
011
9
5
007
007
FUSE
FUSE
B1
B1
832
832
5
6
RH SIDE LIGHT
1
2
4
314
FUSE C1
FUSE C1
8
7
FUSE C2
FUSE C2
3
8
310
310
834
834
7
FUSE A10
FUSE A10
LIGHTS RELAY
BEACON SWIT
BEACON SWIT
CH
CH
ENGINE OIL PRESS SWITCH
6
FUSE C10
FUSE C10
RH DIP BEAM
DIPPER SOCKET
TRANS OIL TEMP SWITCH
OUTER REAR WORK LIGHTS
LH MAIN BEAM
408
127
127
BEACON
LH DIP BEAM
11
011
011
3
2
8
1
10
5
7
830
830
1
2
7
-
806
806
2
804
804
407
407
406
836
836
2
FUSE
FUSE
B7
B7
110
110
9
1820
1820
6
402
117
117
9
401
5
FUSE A9
FUSE A9
409
805
805
FUSE
B10
1811
1811
411
411
17
6
13
W
12
116
116
833
833
407
AIR FILTER VAC. SWITCH
FUSE
FUSE
C6
C6
8
2
828
828
3
ALTERNATOR
835
835
5
ILLUMINATION
200E/200R
8
8
+
4
+
828
828
309
309
412
TACHOMETER
868
868
011
011
1
2
6
5
LH SIDE LIGHT
401
401
829
829
200G
WATER TEMP SENDER
FUSE B8
FUSE B8
IGNITION RELAY 2
RH MAIN BEAM
3
405
TRANS OIL PRESS SWITCH
U
9
2
FUEL SENDER
200D/200M
WATER TEMP SWITCH
304
304
3
5
1
FOG LIGHT
404
5
9 9
FUSE
FUSE
B9
B9
7
4
894
894
3
6
FUSE
FUSE
C3
C3
311
311
8
2
830
830
3
4
8
837
837
9
AUXILLARY BEACON
SOCKET
INNER FRONT WORK LIGHT
SINNER FRONT WORK LIGHTS
INNER REAR WORK LIGHTS
49 52
66 68 70 72 74
77
78
79
82
84
87
89
88
90
91
92
94
98 99
100
101
102
103
104
105
95
96
97
93
81
83 86
85
80
76
757371696765646362616059
58
57
56
55
54
53
51
50
A395390
www.WorkshopManuals.co.uk
Purchased from www.WorkshopManuals.co.uk
www.maskinisten.net

Table of Contents

Related product manuals