EasyManua.ls Logo

Jenn-Air JES9800AAS - Installation Instructions (Models JES9750 A**, JES9800 A**, JES9860 A**) - DOWNDRAFT INSTALLATION; INSTRUCTIONS; a. Through the rear wall.; b. Through the floor.

Jenn-Air JES9800AAS
55 pages
Print Icon
To Next Page IconTo Next Page
To Next Page IconTo Next Page
To Previous Page IconTo Previous Page
To Previous Page IconTo Previous Page
Loading...
A – 14 16025927 ©2005 Maytag Services
Installation Instructions (Models JES9750A**, JES9800A**, JES9860A**)
S
Determine where you will be locating the electrical
outlet. It must be in the floor or on the wall within the
area shown in figure 2 or 3.
S
Determine how you will be venting your downdraft
blower. You may vent through the rear wall, the floor,
or the sides. When locating the downdraft vent
opening make sure it will not interfere with your
electrical outlet.
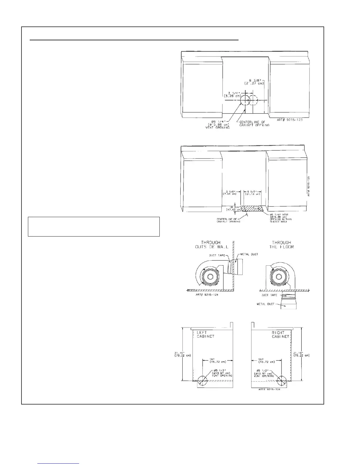
a.
Through the rear wall.
(See figure 10) Mark the
centerline of the cabinet opening on the rear wall.
The 6 1/4 vent opening must be located on a
centerline 8 3/8 above the floor and within 3 1/4
to the right (when facing the cabinet opening) of
the centerline of the cabinet opening as shown in
figure 10.
Cut a 6 1/4 diameter hole on the marked
centerline making sure to miss any wall studs.
Install the blower as shown in figure 12.
b.
Through the floor .
(See figure 11) Making sure to
miss any floor joists cut a 6 1/4 diameter hole in
the shaded area as shown in figure 11. Install the
blower as shown in figure 12.
NOTE: If the floor is a concrete slab, see
the enclosed ducting instructions.
c.
Through the Left or Right side cabinet.
(See figure 13).
1. Additional materials required:
1 pc 5 diameter x 19 long (12.7 cm x 48.26
cm).
Flex duct (P/N 702935).
1 pc 6 (15.25 cm) 90
_
elbow.
2 Hose Clamps (P/N 702331).
1pc5 to31/4 x10 (12.7cmto8.26cmx
25.4 cm) Transition.
2 pcs Wood spacers (right side vent only)
1 1/2 thick x 9 long (3.81 cm x 22.68 cm).
(See your local dealer for these accessories).
2. Cut hole in either the left or right side of the
cabinet wall as shown in figure 13.
Figure 10
DOWNDRAFT INSTALLATIO
N
INSTRUCTIONS
Figure 11
Figure 12
Figure 13

Table of Contents

Other manuals for Jenn-Air JES9800AAS

Related product manuals