EasyManua.ls Logo

JLA D3030 - Dryer Enclosure Requirements

Default Icon
60 pages
Print Icon
To Next Page IconTo Next Page
To Next Page IconTo Next Page
To Previous Page IconTo Previous Page
To Previous Page IconTo Previous Page
Loading...
10
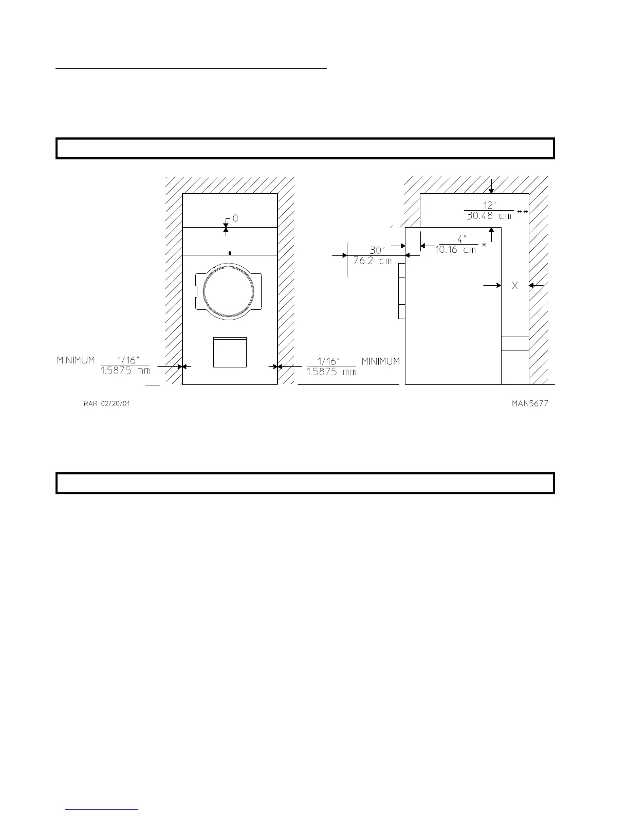
C. DRYER ENCLOSURE REQUIREMENTS
Bulkheads and partitions should be made of noncombustible materials and must be located a minimum of
12-inches (30.48 cm) above the dryer’s outer top; 18-inches (45.72 cm) for steam dryers, except along the front
of the dryer which may be closed if desired.
NOTE: Allowances must be made for opening the control door.
X = 12-inch (30.48 cm) minimum, 24-inches (60.96 cm) is suggested for ease of maintenance.
* 1-inch (2.54 cm) maximum for electric dryers.
** 18-inch (45.72 cm) minimum for steam dryers.
NOTE: Air considerations are important for proper and efficient operation.
Dryers may be positioned sidewall to sidewall. However, a 1/16” (1.5875 mm) minimum allowance must be
made for the opening and closing of the control door. It is suggested that the dryer be positioned about 2 feet
(0.61 meters) away from the nearest obstruction for ease of installation, maintenance, and service (to be measured
from the back guard). Refer to the illustration above for details.

Related product manuals